
Omschrijving
Karakteristieke eindwoning in de populaire Indische Buurt: een charmante en verrassende ontdekking!
Op een geliefde locatie in de sfeervolle Indische Buurt vindt u deze prachtige eindwoning uit omstreeks 1910, vol karakter en charme! Met juiste mix van woninggrootte, tuintje, authentieke elementen, moderne gemakken en een ideale ligging nabij parken, stadscentrum en NS station kan dit uw perfecte woning zijn.
Wat maakt deze woning zo bijzonder?
Bij binnenkomst valt direct de verrassend ruime woonkamer op, met een heerlijk hoog plafond en zwarte kozijnen die het geheel een stoere, moderne uitstraling geven. De glas-in-loodramen en openslaande deuren naar de tuin brengen de juiste dosis sfeer en charme. Aan de achterzijde bevindt zich de stoere, zwarte keuken in parallelopstelling, uitgerust met alle benodigde inbouwapparatuur. Achter de keuken treft u de volledig vernieuwde badkamer aan, met stijlvolle vloer- en wandtegels, een wastafelmeubel, wandcloset en een luxe inloopdouche.
Op de verdieping vindt u een ruime overloop met dakkapel, twee mooie slaapkamers en handige bergruimte in de nok en aan de zijkanten van het schuine dakvlak– perfect voor extra opslag! En als kers op de taart heeft de woning een gezellige, goed onderhouden tuin met keurige bestrating en een berging. De tuin ligt lekker op het zonnige zuidoosten, ideaal voor lange zomeravonden!
Wat heeft de woning nog meer te bieden?
Deze woning is goed onderhouden en beschikt over een betonvloer met vloerverwarming op de begane grond. De kozijnen op de begane grond zijn van hout, terwijl de verdieping is voorzien van kunststof kozijnen, allemaal met dubbel glas (behalve de glas-in-loodramen). De woning wordt verwarmd via centrale verwarming en het dak is gedekt met betonpannen – echt een woning om zonder zorgen in te trekken!
Perfecte locatie!
De ligging van deze woning is absoluut top! Binnen handbereik vindt u de binnenstad van Dordrecht, met alle voorzieningen die u zich maar kunt wensen: het NS-station, winkels, musea en gezellige uitgaansgelegenheden. En om de hoek kunt u al genieten van de gezellige buurtwinkels aan de Reeweg Oost.
Klinkt dit als uw droomhuis?
Wacht niet langer en plan snel een bezichtiging om deze sfeervolle woning te ontdekken! Perfect voor wie op zoek is naar een karaktervolle woning in een levendige en centrale wijk.
INDELING:
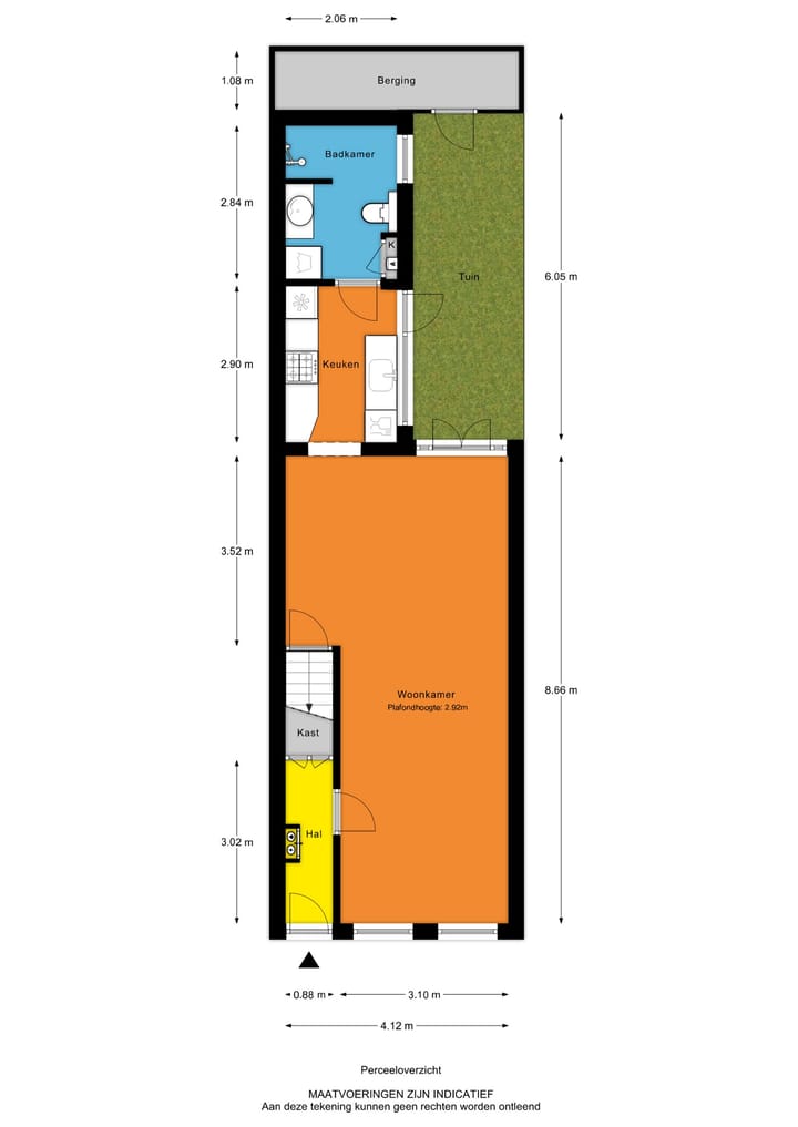
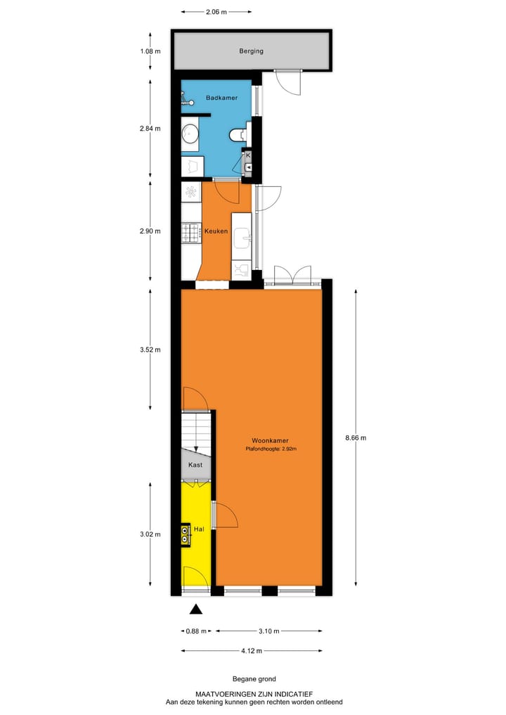
Begane grond
- Hal;
- Meterkast 6 groepen, aardlekschakelaar;
- Trapkast;
- Woonkamer en openslaande deuren naar de tuin. Hoog plafond en grote ramen deels met glas in lood en opslaande deuren naar het binnenplaatsje;
- Keuken in uitbouw. 2-Ledige keukenopstelling met spoel gedeelte aan de raamzijde met vaatwasser. Wandopstelling met gas kookplaat, oven, afzuigkap. Vloerverwarming;
- Badkamer met moderne vloer en wandtegels, inloopdouche, wastafelmeubel, wandcloset. Ventilator op elektriciteit, wasmachine aansluiting.
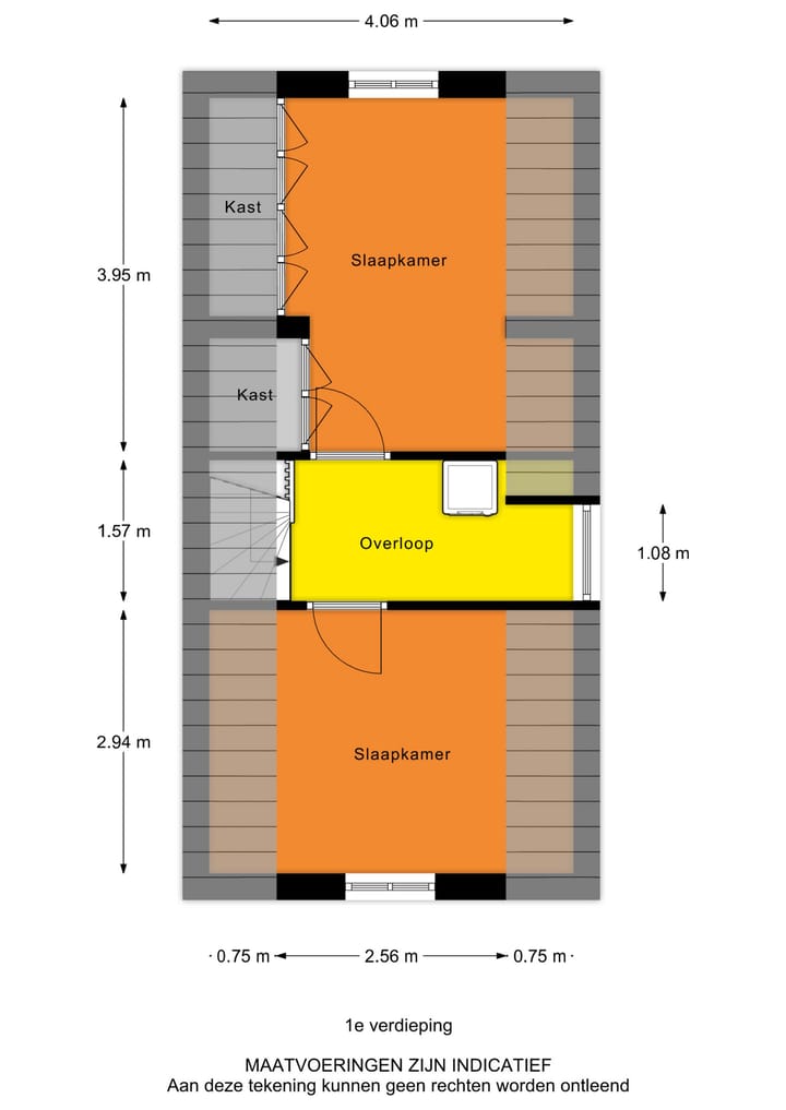
Eerste verdieping
- Overloop met veluxraam en klein dakkapel. Bergzoldertje;
- Slaapkamer, gelegen aan de voorzijde met kunststof kozijn en dubbel glas en kastruimte achter knieschot
- Slaapkamer, gelegen aan de achterzijde. Kunststof kozijn met dubbel glas. Kastruimte.
Buitenshuis
- Achtertuin met keurige bestrating. Een fijne plek om in alle rust even lekker buiten te zitten. Er is tevens een berging aanwezig.
KADASTER
Gemeente Dordrecht, sectie N, nummer 519, groot 76 m².
ALGEMEEN
- Begane grond is van beton en is in de keuken voorzien van vloerisolatie;
- In de keuken is er vloerverwarming aanwezig;
- Begane grond met houten kozijnen en verdieping met kunststof kozijnen;
- Dubbel glas met uitzondering van glas in lood;
- Dak gedekt met betonpannen;
- Hoog plafond in woonkamer zorgt voor een enorme ruimtelijke beleving.
TECHNISCHE INSTALLATIES
- Verdeelinrichting meterkast bestaande uit: 6 groepen, aardlekschakelaar;
- Verwarming en warmwatervoorziening via een gasgestookte cv-combiketel uit 2016;
- Glasvezel aansluiting.
WAND EN VLOERAFWERKINGEN
- Begane grond: wandafwerking met stucwanden. Vloerafwerking met houten vloerdelen;
- Eerste verdieping: wandafwerking met stucwanden. Vloerafwerking met laminaat.
Nadrukkelijk vermelden wij dat deze informatieverstrekking niet als een aanbieding of offerte mag worden beschouwd. Aan deze gegevens kunnen derhalve geen rechten worden ontleend en zijn wijzigingen voorbehouden.
De vermelde afmetingen zijn lengte/ diepte x breedte (bezien vanuit het binnentreden van een ruimte).
De vermelde afmetingen/ oppervlakten in deze informatie zijn gemeten op basis van de BBMI (Branche Brede Meetinstructie). De meetinstructie is bedoeld om een meer eenduidige manier van meten toe te passen voor het geven van een indicatie van de gebruiksoppervlakte. De meetinstructie sluit verschillen in meetuitkomsten niet volledig uit, door bijvoorbeeld interpretatieverschillen, afrondingen of beperkingen bij het uitvoer en van de meting.
Let op! De foto’s in deze verkooppresentatie zijn genomen met een groothoeklens. Voor verkrijging van een reële indruk van de ruimten dient u de foto’s te spiegelen aan de vermelde afmetingen!
Indien er plattegronden aan deze brochure zijn toegevoegd, houdt u er dan rekening mee dat deze plattegronden slechts een indicatie geven van de indeling.
Heeft u als geïnteresseerde deze woning bezichtigd met Zoomer Makelaardij, dan willen wij u graag verzoeken om ons binnen 5 werkdagen een reactie te geven.
Zoomer Makelaardij verlangt bij een verkooptransactie dat de kopende partij t.b.v. de verkopende partij een bankgarantie stelt c.q. waarborgsom stort ter grootte van 10% van de koopsom kosten koper. Dit ter meerdere zekerheid tot nakoming van de verplichtingen die voortvloeien uit de koopakte voor de kopende partij
Besluit u tot aankoop van een woning, denkt u dan aan een NVM aankoopmakelaar voor het behartigen van uw belangen.
Kenmerken
Overdracht
- Laatste vraagprijs
- € 299.000 kosten koper
- Vraagprijs per m²
- € 4.153
- Status
- Verkocht
Bouw
- Soort woonhuis
- Eengezinswoning, eindwoning
- Soort bouw
- Bestaande bouw
- Bouwjaar
- 1910
- Soort dak
- Zadeldak bedekt met bitumineuze dakbedekking en pannen
Oppervlakten en inhoud
- Gebruiksoppervlakten
- Wonen
- 72 m²
- Externe bergruimte
- 5 m²
- Perceel
- 76 m²
- Inhoud
- 230 m³
Indeling
- Aantal kamers
- 3 kamers (2 slaapkamers)
- Aantal badkamers
- 1 badkamer
- Badkamervoorzieningen
- Inloopdouche, toilet, en wastafelmeubel
- Aantal woonlagen
- 2 woonlagen
Energie
- Energielabel
- G
- Isolatie
- Gedeeltelijk dubbel glas en vloerisolatie
- Verwarming
- Cv-ketel
- Warm water
- Cv-ketel
- Cv-ketel
- Gas gestookt combiketel uit 2016, eigendom
Kadastrale gegevens
- DORDRECHT N 519
- Kadastrale kaart
- Oppervlakte
- 76 m²
- Eigendomssituatie
- Volle eigendom
Buitenruimte
- Ligging
- In woonwijk
- Tuin
- Achtertuin
- Achtertuin
- 12 m² (6,05 meter diep en 2,06 meter breed)
- Ligging tuin
- Gelegen op het zuidoosten
Bergruimte
- Schuur/berging
- Aangebouwde stenen berging
- Voorzieningen
- Elektra
Parkeergelegenheid
- Soort parkeergelegenheid
- Betaald parkeren
Foto's 36
© 2001-2025 funda



































