Dit huis op Funda: https://www.funda.nl/detail/koop/dordrecht/huis-hooftstraat-40/43065024/

Omschrijving
Super toffe, sfeervolle tussenwoning met grote woonkamer, prachtige woonkeuken, 3 slaapkamers en tuin op het zuidoosten.
Deze leuke tussenwoning is gelegen in een rustig en geliefd straatje in de wijk Krispijn op loopafstand van buurtwinkels, het Weizigtpark en het Centraal Station van Dordrecht. Deze sfeervolle woning met hoge plafonds beschikt over diverse authentieke details, zoals glas-in-loodramen en paneeldeuren. De gehele woning is in lichte en moderne kleurstellingen afgewerkt met o.a. een fraaie keuken en badkamer en gladde stucwerk wanden. De ruimte van de woning is opvallend met o.a. een zeer grote woonkamer en woonkeuken met luxe inrichting (met werkplek) op de begane grond. Vanuit de woonkamer zijn er openslaande deuren naar de zonnige, gezellige tuin. Op de verdieping zijn 3 slaapkamers, een complete, moderne badkamer en een balkon. De woning verkeert in keurige onderhoudsconditie en is vrijwel geheel voorzien van isolerende beglazing. Elektra en waterleidingen zijn vernieuwd en recent is de gehele dakbedekking vernieuwd!. De woning is voorzien van energielabel C. Uitstekende aansluiting op diverse uitvalswegen op de N3,, A16 en A15.
Kenmerken:
vraagprijs: € 400.000,- kosten koper
type woning: tussenwoning
aantal kamers: 5 kamers, waarvan 3 slaapkamers
inhoud woning: 509 m³
perceel oppervlakte: 99 m²
gebruiksoppervlakte: 129 m²
bouwjaar: 908
ligging: gelegen in de wijk Krispijn
isolatie: vrijwel geheel voorzien van isolerende beglazing
tuin: achtertuin gelegen op het zuidoosten
parkeren: openbaar parkeren in de omgeving
verwarming: verwarming middels cv-combiketel (Remeha 2018)
Indeling begane grond:
- entree/ hal, meterkast, trapopgang naar de 1e verdieping en modern toilet;
- grote woonkamer voorzien van lichte laminaatvloeren en hoge plafonds, fraaie glas-in-loodramen en aan de achterzijde openslaande deuren naar de tuin;
- fraaie, half open (woon) keuken voorzien van mooie, hoogglans witte inrichting met veel kastruimte, koelkast, vriezer, inductie kookplaat, RVS afzuigkap, oven, magnetron en vaatwasmachine. De keuken is voorzien van een fraaie antraciet vloertegel en vanuit de keuken is eveneens toegang tot de achtertuin.
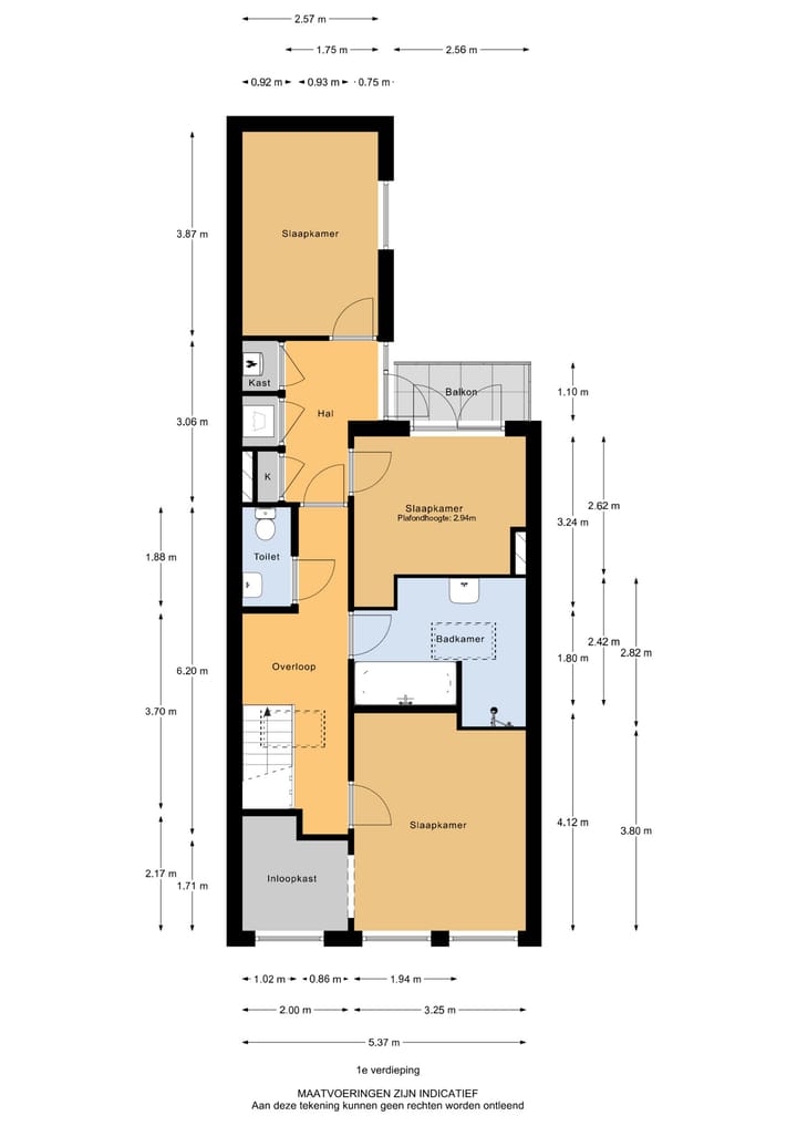
Indeling eerste verdieping:
- ruime overloop met separaat toilet, vaste kasten met aansluiting voor de wasmachine en hangplaats cv-combiketel (Remeha 2018). Vanuit de overloop is een deur naar het balkon aan de achterzijde;
- slaapkamer 1 gelegen aan de voorzijde (voorheen 2 slaapkamers) voorzien van lichte laminaatvloer en inloopkast;
- slaapkamer 2 gelegen aan de achterzijde voorzien van lichte laminaatvloer en openslaande deuren naar het balkon aan de achterzijde;
- slaapkamer 3 gelegen aan de achterzijde voorzien van lichte laminaatvloer;
- moderne badkamer voorzien van gedeeltelijk, lichte betegelden wanden, antraciet vloertegel, wastafel met meubel en grote spiegel, ligbad, separate inloopdouche en design radiator.
Tuin:
- de beschutte en sfeervolle achtertuin is gelegen op het zonnige zuidoosten, is voorzien van bestrating en een eenvoudige schuur.
Algemeen:
- bouwjaar ca. 1908;
- de woning is nagenoeg geheel voorzien van dubbel glas;
- dakbedekking platte dak vernieuwd in 2025;
- energielabel C, geldig tot 13-05-2035.
Kadastrale aanduiding:
- Gemeente Dordrecht, sectie K, nummer 2620, groot 0 are 99 centiare (99 m²) eigen grond.
Oplevering:
- in overleg/ september 2025.
Diversen:
Advema NVM Makelaardij behartigt de belangen van de verkopende partij. Indien u interesse heeft in deze woning is het raadzaam uw eigen onafhankelijke NVM aankoopmakelaar in de arm te nemen.
Er komt heel wat kijken bij het aankopen van een woning en het nemen van tal van financiële beslissingen.
Waarborgsom:
In onze koopovereenkomsten wordt een bankgarantie/waarborgsom van 10% van de koopsom door koper gesteld ter zekerheid na finaal akkoord hypotheek, 1 week na het verlopen van de ontbindende voorwaarden financiering.
Afmetingen:
De vermelde afmetingen/oppervlakten in deze informatie zijn gemeten op basis van NEN-2580.
De meetinstructie sluit verschillen in meetuitkomsten niet volledig uit, door bijvoorbeeld interpretatieverschillen, afrondingen of beperkingen bij het uitvoeren van de meting.
Rechtsgeldige koopovereenkomst pas na ondertekening:
Een mondelinge overeenstemming tussen de particuliere verkoper en de particuliere koper is niet rechtsgeldig. Met andere woorden: er is geen koop. Er is pas sprake van een rechtsgeldige koop als de particuliere verkoper en de particuliere koper de koopovereenkomst hebben ondertekend. Dit vloeit voort uit artikel 7:2 van het Burgerlijk Wetboek. Een bevestiging van de mondelinge overeenstemming per e-mail of een toegestuurd concept van de koopovereenkomst wordt overigens niet gezien als een ondertekende koopovereenkomst.
Deze informatie is door ons met de nodige zorgvuldigheid samengesteld. Onzerzijds wordt echter geen enkele aansprakelijkheid aanvaard voor enige onvolledigheid, onjuistheid of anderszins, dan wel de gevolgen daarvan. Alle opgegeven maten en oppervlakten zijn indicatief.
Kenmerken
Overdracht
- Laatste vraagprijs
- € 400.000 kosten koper
- Vraagprijs per m²
- € 3.101
- Status
- Verkocht
Bouw
- Soort woonhuis
- Eengezinswoning, tussenwoning
- Soort bouw
- Bestaande bouw
- Bouwjaar
- 1908
- Specifiek
- Gestoffeerd
- Soort dak
- Plat dak bedekt met bitumineuze dakbedekking
Oppervlakten en inhoud
- Gebruiksoppervlakten
- Wonen
- 129 m²
- Gebouwgebonden buitenruimte
- 6 m²
- Externe bergruimte
- 3 m²
- Perceel
- 99 m²
- Inhoud
- 509 m³
Indeling
- Aantal kamers
- 5 kamers (3 slaapkamers)
- Aantal badkamers
- 1 badkamer en 1 apart toilet
- Badkamervoorzieningen
- Inloopdouche, ligbad, wastafel, en wastafelmeubel
- Aantal woonlagen
- 2 woonlagen
Energie
- Energielabel
- C
- Isolatie
- Dakisolatie en dubbel glas
- Verwarming
- Cv-ketel
- Warm water
- Cv-ketel
- Cv-ketel
- Remeha (gas gestookt combiketel uit 2018, eigendom)
Kadastrale gegevens
- DORDRECHT K 2620
- Kadastrale kaart
- Oppervlakte
- 99 m²
- Eigendomssituatie
- Volle eigendom
Buitenruimte
- Tuin
- Achtertuin
- Achtertuin
- 25 m² (7,50 meter diep en 3,28 meter breed)
- Ligging tuin
- Gelegen op het zuidoosten
Bergruimte
- Schuur/berging
- Vrijstaand kunststof
Parkeergelegenheid
- Soort parkeergelegenheid
- Openbaar parkeren
Foto's 47
© 2001-2025 funda














































