Dit huis op Funda: https://www.funda.nl/detail/koop/drachten/huis-de-ee-44/43876888/

Omschrijving
In kindvriendelijke woonwijk gelegen, riante tussenwoning met vier slaapkamers, bijkeuken en diepe achtertuin met terras en overkapping op het oosten met vrijstaande houten berging. Parkeren kan in de openbare vakken en langs de openbare weg.
De woning is gelegen op loop- en fietsafstand van openbare voorzieningen zoals basisscholen, voortgezet onderwijs, winkels, supermarkten en openbaar vervoer.
Indeling: voortuin, entree, hal meterkast, toilet met fonteintje, trapkast, ruime moderne woonkamer met pvc vloer en vloerverwarming, luxe open keuken v.v. inbouwapparatuur en kook- en spoeleiland, openslaande tuindeur, aangebouwde bijkeuken alwaar wasmachine aansluiting, loopdeur naar diepe achtertuin op het oosten met overdekt terras en vrijstaand tuinhuis en berging, achterom.
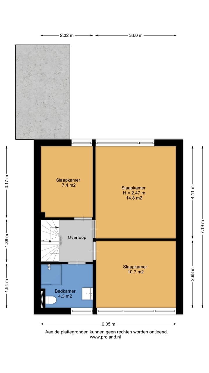
1e verdieping: overloop, drie slaapkamers met laminaatvloer, badkamer met wastafel, designradiator, douche en 2e toilet.
2e verdieping: middels vaste trap naar ruime 2e verdieping alwaar bergruimte en CV opstelling (Remeha HR 2013) en ruime 4e slaapkamer.
Eigen grond: 209 m2. Aanvaarding: in overleg.
Er zijn 9 zonnepanelen in eigendom aanwezig.
De woning is bestemd voor eigen bewoning - dus niet voor doorverkoop - en wordt geleverd via de huisnotaris van Accolade.
De notariskosten voor de overdracht van de woning komen voor rekening van Accolade.
De overdrachtsbelasting en de kosten voor een eventuele hypotheekakte zijn voor de koper.
Kenmerken
Overdracht
- Laatste vraagprijs
- € 275.000 kosten koper
- Vraagprijs per m²
- € 2.412
- Status
- Verkocht
Bouw
- Soort woonhuis
- Eengezinswoning, tussenwoning
- Soort bouw
- Bestaande bouw
- Bouwperiode
- 1971-1980
- Soort dak
- Zadeldak bedekt met pannen
Oppervlakten en inhoud
- Gebruiksoppervlakten
- Wonen
- 114 m²
- Gebouwgebonden buitenruimte
- 21 m²
- Externe bergruimte
- 14 m²
- Perceel
- 209 m²
- Inhoud
- 414 m³
Indeling
- Aantal kamers
- 5 kamers (4 slaapkamers)
- Aantal badkamers
- 1 badkamer en 1 apart toilet
- Badkamervoorzieningen
- Douche, toilet, en wastafel
- Aantal woonlagen
- 3 woonlagen
- Voorzieningen
- Mechanische ventilatie, TV kabel, en zonnepanelen
Energie
- Energielabel
- A
- Isolatie
- Dakisolatie, dubbel glas en muurisolatie
- Verwarming
- Cv-ketel
- Warm water
- Cv-ketel
- Cv-ketel
- Intergas HR (gas gestookt combiketel uit 2013, eigendom)
Kadastrale gegevens
- DRACHTEN A 11375
- Kadastrale kaart
- Oppervlakte
- 209 m²
- Eigendomssituatie
- Volle eigendom
Buitenruimte
- Ligging
- Aan rustige weg, in woonwijk en open ligging
- Tuin
- Achtertuin, voortuin en zonneterras
- Achtertuin
- 108 m² (18,00 meter diep en 6,00 meter breed)
- Ligging tuin
- Gelegen op het oosten bereikbaar via achterom
Bergruimte
- Schuur/berging
- Vrijstaande houten berging
- Voorzieningen
- Elektra
Garage
- Soort garage
- Parkeerplaats
Parkeergelegenheid
- Soort parkeergelegenheid
- Openbaar parkeren
Foto's 40
© 2001-2025 funda







































