Dit huis op Funda: https://www.funda.nl/detail/koop/drachten/huis-hanebalken-5/43998065/

Omschrijving
Starters opgelet! Leuke en verzorgde starterswoning met 4 slaapkamers.
Op een rustige en kindvriendelijke locatie in Drachten staat deze nette tussenwoning met verrassend veel ruimte.
Met vier slaapkamers, een onderhoudsvriendelijke tuin en een gunstige ligging ten opzichte van voorzieningen is dit de ideale starterswoning.
Deze goed onderhouden woning is direct te betrekken. De speelse woonkamer zorgt voor een prettige leefruimte, terwijl de keuken uitkijkt op de zonnige achtertuin.
Pluspunten van deze woning:
• Ideaal voor starters
• 4 slaapkamers
• Netjes onderhouden en instapklaar
• Rustige, kindvriendelijke wijk
• Nabij scholen, winkels en openbaar vervoer
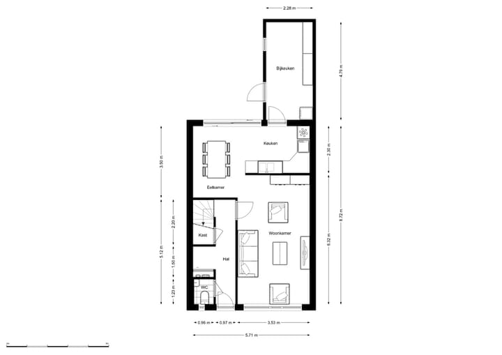
Indeling;
Entree, hal, toilet met fonteintje, handige provisiekast onder de trap, speels ingedeelde woonkamer met een laminaatvloer. Open keuken, de keukenopstelling beschikt over diverse inbouwapparaten. Er is voldoende ruimte voor een grote eettafel.
Toegang tot de bijkeuken met stelplaats voor het witgoed en een achter-entree.
1e verdieping;
Overloop met drie slaapkamers van een mooi formaat, op alle drie kamer ligt een fraaie laminaatvloer. Nette en verzorgde badkamer met een hoek ligbad, toilet, douche en een meubel met wastafel.
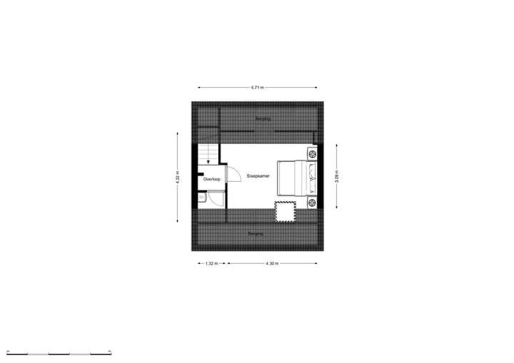
2e verdieping;
Bereikbaar via een vaste trap. Overloop, gesloten CV berging. Een ruime en vierde slaapkamer met een groot dakraam, een laminaatvloer en inbouwspots.
Buitenom;
Achter de woning ligt een onderhoudsarme tuin. In de zonnig gesitueerde tuin kun je snel buiten zitten en is het heerlijk vertoeven onder de terrasoverkapping. Via een gezamenlijke steeg is er een achterom.
Aan de voorzijde is er voldoende parkeerruimte.
Je bent van harte welkom om deze leuke woning te komen bekijken.
Kenmerken
Overdracht
- Laatste vraagprijs
- € 250.000 kosten koper
- Vraagprijs per m²
- € 2.049
- Status
- Verkocht
Bouw
- Soort woonhuis
- Eengezinswoning, tussenwoning
- Soort bouw
- Bestaande bouw
- Bouwjaar
- 1984
- Soort dak
- Samengesteld dak
Oppervlakten en inhoud
- Gebruiksoppervlakten
- Wonen
- 122 m²
- Gebouwgebonden buitenruimte
- 12 m²
- Perceel
- 128 m²
- Inhoud
- 438 m³
Indeling
- Aantal kamers
- 5 kamers (4 slaapkamers)
- Aantal badkamers
- 1 badkamer en 1 apart toilet
- Badkamervoorzieningen
- Douche, ligbad, toilet, wastafel, en wastafelmeubel
- Aantal woonlagen
- 3 woonlagen
- Voorzieningen
- Dakraam
Energie
- Energielabel
- B
- Isolatie
- Dakisolatie, dubbel glas, muurisolatie en vloerisolatie
- Verwarming
- Cv-ketel
- Warm water
- Cv-ketel
- Cv-ketel
- Nefit (gas gestookt combiketel uit 2017, eigendom)
Kadastrale gegevens
- BOORNBERGUM E 1366
- Kadastrale kaart
- Oppervlakte
- 128 m²
- Eigendomssituatie
- Volle eigendom
Buitenruimte
- Ligging
- Aan rustige weg en in woonwijk
- Tuin
- Achtertuin en voortuin
- Achtertuin
- 52 m² (8,00 meter diep en 6,50 meter breed)
- Ligging tuin
- Gelegen op het zuiden bereikbaar via achterom
Parkeergelegenheid
- Soort parkeergelegenheid
- Openbaar parkeren
Foto's 39
© 2001-2025 funda






































