Dit huis op Funda: https://www.funda.nl/detail/koop/drachten/huis-korenmolen-173/43253999/

Korenmolen 1739203 VB DrachtenDe Peppel
€ 335.000 k.k.
Blikvanger2-1-kapwoning met garage en diepe tuin vlakbij het centrum Drachten
Omschrijving
Op een mooie woonstand, dichtbij het centrum van Drachten, tref je deze twee-onder-één-kapwoning met garage aan op de Korenmolen in de rustige wijk De Peppel. Je hebt veel privacy door de diepe achtertuin en aan de straatzijde geen inkijk van andere woningen. Bovendien super centraal gelegen, op loopafstand van het centrum van Drachten en toch ben je ook snel op de uitvalsweg naar de A7. Een heerlijke plek om te wonen voor starters, kleine gezinnen en senioren. Wij nemen je graag mee voor een kennismaking.
Indeling
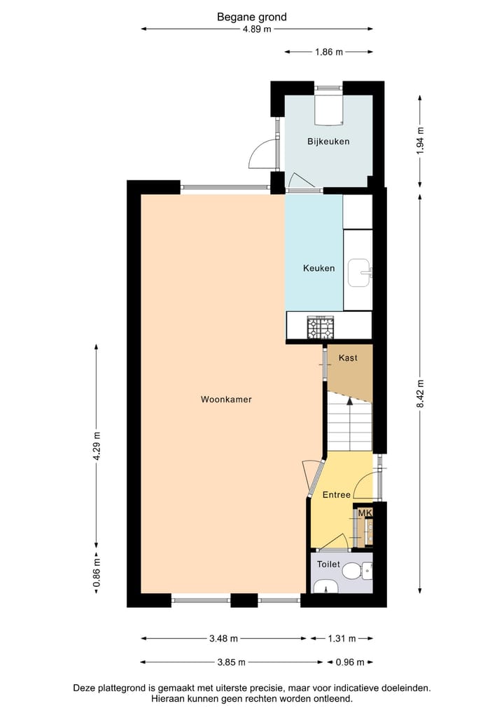
Begane grond
- overdekte zijentree
- hal
- toilet met fonteintje
- meterkast met 4 moderne groepen
- trapopgang
Woonkamer en keuken
In de woonkamer valt het licht goed naar binnen door de "doorzon-stand". Voor in de woonkamer is de plek voor een zithoek met TV, hier heb je een vrije zichtlijn naar de straat zonder inkijk van andere woningen. Veel provisie kun je kwijt in de trapkast. Achter in de woonkamer bij de open keuken is ruimte voor een grote gezinstafel. De keuken heeft een moderne opstelling met een granieten werkblad en kunststof spatwand. De L-keukenopstelling is van alle gemakken voorzien zoals een combi oven/magnetron, een gaskookplaat met afzuigkap, een koelvries-combi en een vaatwasser. De apparaten zijn van de A-merken Liebherr en Siemens. Op de vloer liggen antraciet plavuizen. Vanuit de keuken kom je in de aangebouwde bijkeuken. Praktisch voor de inloop en garderobe.
1e verdieping
- overloop
- een tweepersoonsslaapkamer aan de voorzijde met dakkapel
- een tweepersoonsslaapkamer aan de achterzijde met kantelraam
- een derde slaapkamer aan de achterzijde
- badkamer met douchehoek, wastafel en witgoedaansluiting. De badkamer zit boven de toiletruimte, realisatie voor een toilet boven is hierdoor eenvoudiger te realiseren.
Zolderverdieping
- vlizotrap
- ruime geïsoleerde berging met cv-opstelling (2011) en opstelling mechanische ventilatie
Garage
Een vrijstaande houten garage met sectionale elektrisch bedienbare deur. Ideaal voor je auto en de fietsen maar ook handig voor een creatieve hobby. Achter de garage is een overkapping voor de kliko's. Er is een lange oprit voor de auto, deze deel je met de buren, naar de garage.
Tuin
De achtertuin is verzorgd aangelegd met gazon, sierbestrating, terras, borders en goede beschutting. Door de diepe achtertuin heb je veel privacy. Achter de woning is een sloot en aan de overkant van de sloot staat een loods die in gebruik is voor kleinschalige verkoop van o.a. witgoed. Heerlijk rustig dus. De achtertuin is op het noorden, maar diep genoeg voor veel zon en op hete dagen dus ook een schaduwplekje bij het huis. De voortuin is onderhoudsarm aangelegd met groene border en grindborder.
Overige informatie
- energielabel B geldig tot 17-11-2035
- eigen cv-combiketel AWB HR uit 2011
- begane grond en verdiepingsvloeren in beton uitgevoerd
- geheel geïsoleerde woning – isolatieglas HR, vloer-, gevel- en dakisolatie
- de woning heeft een eigen webiste: korenmolen173.nl
Omgeving
Het woonhuis is centraal in het dorp gelegen, even verderop in de straat is een speelveldje aanwezig, je woont nabij alle voorzieningen van het dorp, het theater en sportfaciliteiten en je bent snel op de uitvalsweg naar de A7 - Groningen/Heerenveen/Leeuwarden.
Interessant? Alleen een bezichtiging geeft de beste indruk. Maak een afspraak voor een bezichtiging en denk aan je eigen NVM aankoopmakelaar.
Uit een overeenkomst vloeien pas verplichtingen voort als koper én verkoper de overeenkomst hebben ondertekend. Een mondelinge overeenkomst tussen een particuliere koper en particuliere verkoper is niet rechtsgeldig. Met andere woorden er is geen koop zolang het koopcontract niet door beide partijen is ondertekend. De Meetinstructie is gebaseerd op de NEN2580. De Meetinstructie is bedoeld om een meer eenduidige manier van meten toe te passen voor het geven van een indicatie van de gebruiksoppervlakte. De Meetinstructie sluit verschillen in meetuitkomsten niet volledig uit, door bijvoorbeeld interpretatieverschillen, afrondingen of beperkingen bij het uitvoeren van de meting. Hoewel deze woningpresentatie met de grootst mogelijke zorg is samengesteld blijft de mogelijkheid bestaan dat er fouten en/of onvolledigheden in de omschrijving aanwezig zijn. Noch de verkoper, noch ons kantoor aanvaarden in dit geval enige aansprakelijkheid.
Kenmerken
Overdracht
- Aangeboden sinds
- Aanvaarding
- In overleg
- Vraagprijs
- € 335.000 kosten koper
- Vraagprijs per m²
- € 4.241
- Status
- Beschikbaar
Bouw
- Soort woonhuis
- Eengezinswoning, 2-onder-1-kapwoning
- Soort bouw
- Bestaande bouw
- Bouwjaar
- 1993
- Soort dak
- Zadeldak bedekt met pannen
Oppervlakten en inhoud
- Gebruiksoppervlakten
- Wonen
- 79 m²
- Overige inpandige ruimte
- 6 m²
- Externe bergruimte
- 20 m²
- Perceel
- 205 m²
- Inhoud
- 309 m³
Indeling
- Aantal kamers
- 4 kamers (3 slaapkamers)
- Aantal badkamers
- 1 badkamer en 1 apart toilet
- Badkamervoorzieningen
- Douche en wastafel
- Aantal woonlagen
- 2 woonlagen en een zolder
- Voorzieningen
- Dakraam, mechanische ventilatie, natuurlijke ventilatie, en TV kabel
Energie
- Energielabel
- B
- Isolatie
- Dakisolatie, grotendeels dubbelglas, muurisolatie en vloerisolatie
- Verwarming
- Cv-ketel
- Warm water
- Cv-ketel
- Cv-ketel
- AWB (gas gestookt combiketel uit 2011, eigendom)
Kadastrale gegevens
- DRACHTEN C 9046
- Kadastrale kaart
- Oppervlakte
- 205 m²
- Eigendomssituatie
- Volle eigendom
Buitenruimte
- Ligging
- Aan rustige weg, in centrum en in woonwijk
- Tuin
- Achtertuin, voortuin en zijtuin
- Achtertuin
- 105 m² (14,00 meter diep en 7,50 meter breed)
- Ligging tuin
- Gelegen op het noorden
Garage
- Soort garage
- Vrijstaande houten garage
- Capaciteit
- 1 auto
- Voorzieningen
- Elektrische deur en elektra
Parkeergelegenheid
- Soort parkeergelegenheid
- Op eigen terrein en parkeervergunningen
Foto's 44
Plattegronden 4
© 2001-2025 funda















































