Dit huis op Funda: https://www.funda.nl/detail/koop/drachten/huis-linde-34/43206902/

Linde 349204 AJ DrachtenDe Drait zuidoost
€ 315.000 k.k.
BlikvangerHoekwoning met moderne keuken en kunststof kozijnen met HR++ glas.
Omschrijving
Een heerlijke plek om te wonen in de gewilde wijk de Drait. Een HOEKWONING in een rustig hofje, veel leefruimte met een moderne keuken en grotendeels kunststof kozijnen met HR++ glas. Zo maar een aantal sterke punten waar je als starter of gezin warm van wordt. Je beschikt ook nog eens over 8 zonnepanelen en de woning is buitenom goed onderhouden met recent vervangen geveldelen. De Linde ligt in het begin van de Drait, de woning is op loopafstand van alle wijkvoorzieningen en met de fiets ben je heel snel in het centrum van Drachten. Wij nemen je graag mee voor een kennismaking.
Indeling
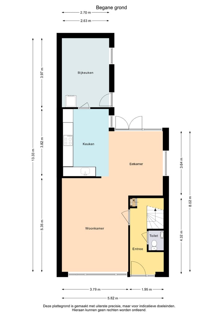
begane grond
- ruime lichte hal met garderobehoek
- toilet met fonteintje
Woonkamer en keuken
Licht en ruim, deze royale woonkamer in Z-vorm met tuindeuren naar de tuin op het zuidwesten. In het oog springt de moderne pvc-vloer en het daglicht in de woning door de raampartijen met extra lichtinval in de zijgevel van deze hoekwoning. Voor in de kamer is plek voor een grote TV/zithoek en eventueel speelhoek voor kinderen en achter bij de tuindeuren en de open keuken is de plek voor een grote familietafel. De open keuken heeft een moderne opstelling met een kunststof werkblad op prettige werkhoogte met spatwand en beschikt over een inductieplaat met schouw, een combi oven/magnetron, een vaatwasser en een koelvriescombi. Met de softclose lades en kastjes heb je alle ruimte voor je bestek, servies en voorraad.
- bijkeuken/berging met witgoedaansluiting
1e verdieping
- overloop
- een ruime slaapkamer aan de voorzijde
- een tweepersoonsslaapkamer aan de achterzijde met vaste kasten
- een grote derde slaapkamer aan de achterzijde met vaste kasten
- badkamer met inloopdouche, wastafelmeubel en mechanische ventilatie
De overloop en de slaapkamers zijn afgewerkt met een moderne pvc-vloer.
2e verdieping
- vaste trap naar de zolderberging
- extra slaapkamer(s) kunnen hier goed worden gerealiseerd, met kantelramen of een dakkapel
- berging met cv-opstelling uit 2016, zonneboiler en mv-box
Tuin
Onderhoudsarme tuin op het zuidwesten met sierbestrating en vlonderplanken. De tuin beschikt over een achterom. De voortuin is aangelegd met grindborder en groene border.
Extra
- energielabel C geldig tot 17-12-2035
- grotendeels voorzien van kunststof kozijnen met HR++ glas - begane grond de voorgevel, de achterdeur met raamkozijn en gehele 1e verdieping!
- de zijgevel is voorzien van spouwmuurisolatie (na-isolatie), de woning heeft vloerisolatie (na-isolatie PUR) en de dakisolatie is van het bouwjaar
- eigen cv-ketel HR geïnstalleerd in 2017, bouwjaar 2016
- de kunststof panelen aan de voor- en achtergevel zijn vervangen in 2023
- 8 eigen zonnepanelen van 2023 (ca 2100 Wattpiek)
- de platte dakbedekking bitumen is in 2017 vervangen
Omgeving
De woning ligt in een kindvriendelijk hofje nabij alle gewenste voorzieningen, scholen, wijkwinkelcentrum en uitvalswegen aan de rand van de groene wijk De Drait en dichtbij het buitengebied van Drachten met veel waterrijke en bosrijke wandelgebieden zoals Smalle Ee en Beetsterzwaag. Er zijn voldoende parkeermogelijkheden direct bij de woning en op korte afstand van de woning bevinden zich ook enkele basisscholen en het wijkwinkelcentrum. Het wijkwinkelcentrum biedt een breed scala aan winkels, waaronder supermarkten, een bakker, een slager, een kapper, kledingwinkel en een drogist. Daarnaast is ook kinderboerderij De Naturij op korte afstand.
Interessant? Wij verwachten van wel. Maak een afspraak voor een bezichtiging en denk aan je NVM aankoopmakelaar.
Uit een overeenkomst vloeien pas verplichtingen voort als koper én verkoper de overeenkomst hebben ondertekend. Een mondelinge overeenkomst tussen een particuliere koper en particuliere verkoper is niet rechtsgeldig. Met andere woorden er is geen koop zolang het koopcontract niet door beide partijen is ondertekend. De Meetinstructie is gebaseerd op de NEN2580. De Meetinstructie is bedoeld om een meer eenduidige manier van meten toe te passen voor het geven van een indicatie van de gebruiksoppervlakte. De Meetinstructie sluit verschillen in meetuitkomsten niet volledig uit, door bijvoorbeeld interpretatieverschillen, afrondingen of beperkingen bij het uitvoeren van de meting. Hoewel deze woningpresentatie met de grootst mogelijke zorg is samengesteld blijft de mogelijkheid bestaan dat er fouten en/of onvolledigheden in de omschrijving aanwezig zijn. Noch de verkoper, noch ons kantoor aanvaarden in dit geval enige aansprakelijkheid.
Kenmerken
Overdracht
- Aangeboden sinds
- Aanvaarding
- In overleg
- Vraagprijs
- € 315.000 kosten koper
- Vraagprijs per m²
- € 2.944
- Status
- Beschikbaar
Bouw
- Soort woonhuis
- Eengezinswoning, eindwoning
- Soort bouw
- Bestaande bouw
- Bouwjaar
- 1973
- Soort dak
- Zadeldak bedekt met pannen
Oppervlakten en inhoud
- Gebruiksoppervlakten
- Wonen
- 107 m²
- Overige inpandige ruimte
- 23 m²
- Perceel
- 130 m²
- Inhoud
- 461 m³
Indeling
- Aantal kamers
- 4 kamers (3 slaapkamers)
- Aantal badkamers
- 1 badkamer en 1 apart toilet
- Badkamervoorzieningen
- Douche, wastafel, en wastafelmeubel
- Aantal woonlagen
- 2 woonlagen en een zolder
- Voorzieningen
- Dakraam, mechanische ventilatie, natuurlijke ventilatie, TV kabel, en zonnepanelen
Energie
- Energielabel
- Isolatie
- Dakisolatie, grotendeels dubbelglas, muurisolatie en vloerisolatie
- Verwarming
- Cv-ketel
- Warm water
- Cv-ketel
- Cv-ketel
- Atag HR (gas gestookt combiketel uit 2016, eigendom)
Kadastrale gegevens
- DRACHTEN D 2909
- Kadastrale kaart
- Oppervlakte
- 130 m²
- Eigendomssituatie
- Volle eigendom
Buitenruimte
- Ligging
- Aan rustige weg en in woonwijk
- Tuin
- Achtertuin en voortuin
- Achtertuin
- 45 m² (8,00 meter diep en 6,50 meter breed)
- Ligging tuin
- Gelegen op het westen bereikbaar via achterom
Bergruimte
- Schuur/berging
- Aangebouwde stenen berging
- Voorzieningen
- Elektra, verwarming en stromend water
Parkeergelegenheid
- Soort parkeergelegenheid
- Openbaar parkeren
Foto's 41
© 2001-2026 funda








































