
Rijwoning | Type A+ (Bouwnr. 14)9207 BK DrachtenDe Folgeren centrum
€ 407.500 v.o.n.
Omschrijving
WENJE FOAR ELKENIEN | NIJ WENWILLE
DE BOUW VAN FASE 1 (DE RIJWONINGEN EN DE VERANDAWONINGEN) GAAT STARTEN IN Q1 2026!!
Kijk voor alle informatie op: nij-wenwille.nl!
TUINLANDSCHAP DAT KLEUR GEEFT AAN ALLE JAARGETIJDEN
Als bewoner van Nij Wenwille geniet je van een tuinlandschap dat in alle seizoenen tot leven komt. Slingerende wandelpaden leiden je langs kleurrijke planten en siergrassen. Op de centrale ontmoetingsplek nodigen comfortabele zitbanken uit tot een praatje met de buren, terwijl kinderen zich vermaken in de natuurlijke speeltuin. Aan de rand van de buurt dient het water aan de Wetterwille als natuurlijke wadi's met oeverplanten, die het regenwater opvangen en aantrekkelijke elementen in het landschap vormen.
HOEK- EN RIJWONINGEN: JOUW GEZINSWONING IN HET GROEN
Zoek je een lichte, royale woning waar je gezin alle ruimte heeft om te groeien? De hoek- en rijwoningen bieden precies wat je zoekt. Vanuit de keuken kijk je uit over het groene binnengebied, terwijl je in je eigen tuin geniet van optimale privacy. De pergola vormt een natuurlijke overgang naar het parklandschap, een perfecte plek voor kinderen om veilig buiten te spelen.
De 34 hoek- en rijwoningen tellen drie woonlagen en zijn voorzien van een langskap, hier en daar afgewisseld door een dwarskap. De woningen hebben een gebruiksoppervlakte vanaf 141 m2.
RIJWONING - BOUWNUMMER 14
- Kleur baksteen: geelbruin
- Gebruiksoppervlakte van 147 m2
- Perceelgrootte van 159 m2
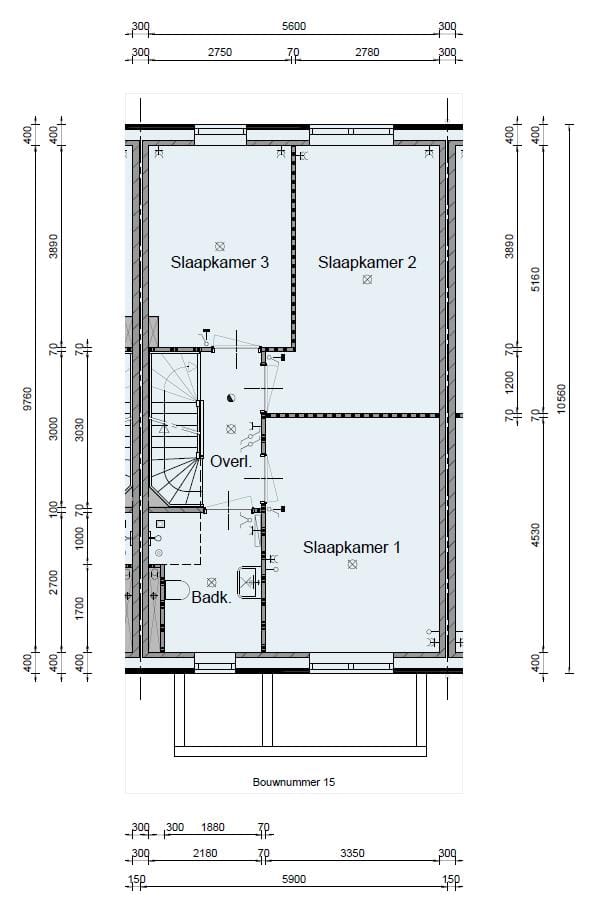
- 3 slaapkamers
- Energielabel A+++
- Warmtepomp en vloerverwarming
- Eigen vrijstaande berging
- Achtertuin op het oosten met 2 eigen parkeerplaatsen
DRACHTEN: EEN BRUISEND DORP ALS JE ACHTERTUIN
Vanuit je woning in Nij Wenwille spring je op de fiets en ben je binnen tien minuten in het gezellige centrum van Drachten. Even snel boodschappen doen, een terrasje pakken met vrienden of winkelen - alles ligt binnen handbereik. In cultureel centrum De Lawei geniet je van theater, muziek en exposities, en in de Bios zie je de nieuwste films in één van de moderne filmzalen. Of breng je met de kinderen een ontspannen bezoekje aan kinderboerderij De Naturij?
Daarmee geniet je in Nij Wenwille van het beste van twee werelden: de rust van wonen in het groen én alle gemakken van de stad binnen handbereik. Het hart van de wijk wordt gevormd door een prachtig tuinlandschap. Of je nu starter bent, een gezin hebt of op zoek bent naar een levensloopgeschikte woning - in Nij Wenwille vind je een thuis dat bij je past.
WOONGEREED
Deze fraaie, duurzame nieuwbouwwoningen worden door de ontwikkelaar zeer compleet opgeleverd. Desgewenst kun je via WoonGereed jouw gloednieuwe huis verhuisklaar afwerken en inrichten, tot en met de erfafscheiding en tuinaanleg aan toe. Kijk voor meer informatie op: woongereed.nl.
Deze online presentatie en eventuele bijlagen zijn samengesteld aan de hand van de ons bekende gegevens en afbeeldingen. Samen met de artist impressies geven zij een indruk van de toekomstige situatie. Zij pretenderen niet een exacte weergave te zijn van het uiteindelijke product. Rechten kunnen dan ook niet aan deze presentatie of bijlagen ontleend worden. Eventueel genoemde of getoonde afmetingen zijn indicatief.
Let op: het door de ontwikkelaar opgegeven gebruiksoppervlak kan afwijken van het daadwerkelijke woonoppervlak! Bij het gebruiksoppervlak kunnen ook bergzolders, bergingen of andere ruimten zijn gerekend, terwijl deze volgens de NEN2580 niet als woonoppervlak zijn aan te merken. Afhankelijk van de mogelijkheden kunt u bijvoorbeeld voor een bergzolder een dakraam toepassen, waardoor deze ruimte eventueel alsnog als woonoppervlak kan worden gerekend. Vraag de makelaar voor meer informatie en eventuele mogelijkheden.
Kenmerken
Overdracht
- Aangeboden sinds
- Aanvaarding
- In overleg
- Vraagprijs
- € 407.500 vrij op naam
- Vraagprijs per m²
- € 2.772
- Status
- Beschikbaar
Bouw
- Soort woonhuis
- Eengezinswoning, tussenwoning
- Soort bouw
- Nieuwbouw
- Bouwjaar
- 2026
- Soort dak
- Zadeldak bedekt met pannen
- Keurmerken
- Woningborg Garantiecertificaat
Oppervlakten en inhoud
- Gebruiksoppervlakten
- Wonen
- 147 m²
- Externe bergruimte
- 6 m²
- Perceel
- 159 m²
- Inhoud
- 562 m³
Indeling
- Aantal kamers
- 5 kamers (3 slaapkamers)
- Aantal badkamers
- 1 apart toilet
- Aantal woonlagen
- 2 woonlagen en een zolder
- Voorzieningen
- Mechanische ventilatie
Energie
- Energielabel
- A+++
- Isolatie
- Volledig geïsoleerd
- Verwarming
- Gedeeltelijke vloerverwarming en warmtepomp
- Warm water
- Centrale voorziening
Buitenruimte
- Ligging
- In woonwijk en open ligging
- Tuin
- Achtertuin en voortuin
- Achtertuin
- 78 m² (14,00 meter diep en 5,60 meter breed)
- Ligging tuin
- Gelegen op het oosten bereikbaar via achterom
Bergruimte
- Schuur/berging
- Vrijstaande houten berging
- Voorzieningen
- Elektra
- Isolatie
- Geen spouw
Parkeergelegenheid
- Soort parkeergelegenheid
- Op eigen terrein
Foto's 11
© 2001-2025 funda










