
Omschrijving
Bent u ouder dan 55 jaar en zoekt u een goed onderhouden en comfortabel appartement?
Kom dan gerust eens kijken!
Op de eerste verdieping en aan de voorzijde van appartementencomplex Parkflat "Beukenhorst" is gelegen dit fijne 2-KAMER HOEKAPPARTEMENT met een overdekt balkon. Het appartement heeft een weids uitzicht op de voortuin en de entree van het appartementencomplex. Het is bovendien gunstig gelegen op korte afstand van de lift. Het unieke van dit appartement is dat het als één van de weinige een zeer royale BERGING (circa 13 m²) op de begane grond heeft.
Het appartementencomplex is uitsluitend bestemd voor 55-PLUSSERS en voorzien van diverse faciliteiten zoals een centrale entree met receptie, een intercominstallatie, 2 liften, fietsenbergingen, parkeerplaatsen op eigen terrein en een schitterende parkachtige tuin met vijverpartij en meerdere zitjes.
Het centrum van Driebergen ligt op ongeveer een kilometer afstand en de bushalte is om de hoek! Het knusse centrum heeft een gevarieerd aanbod van winkels, restaurants en gezellige terrassen.
Driebergen is door de prachtige natuur van het Nationaal Park Utrechtse Heuvelrug, de centrale ligging en vele goede voorzieningen een geliefd dorp om te wonen. De uitgestrekte bossen en het weilandgebied van de Langbroekerwetering bieden talloze fiets- en wandelroutes. Ook het NS-station Driebergen-Zeist met goede verbindingen (binnen circa 15 minuten sta je al in de binnenstad van Utrecht!) en de A12 liggen op korte afstand.
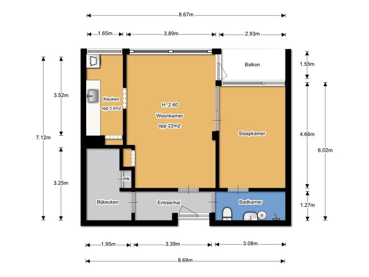
INDELING:
Eerste verdieping:
Hal met garderobe en toegang tot de woonkamer, de toiletruimte met wc en fontein (2023) en de royale bijkeuken c.q. bergruimte. De fijne woonkamer met een oppervlakte van circa 22 m² heeft een groot raam met een prettige lichtinval; er is een inbouwkast en het heeft een weids uitzicht over de voortuin met de entree en de levendige Akkerweg. Vanuit de woonkamer is het overdekte balkon met tegelvloer bereikbaar, welke eveneens aan de voorzijde ligt, waardoor het een gezellige plek is om te zitten. Naast de woonkamer bevindt zich de keuken met inbouwkast en een keukenopstelling voorzien van inbouwapparatuur. Ook de keuken heeft een raam, waardoor het heerlijk licht is. Tevens is er een royale slaapkamer aanwezig met een deur naar de badkamer (2023) voorzien van een comfortabele inloopdouche en wastafelmeubel met spiegel. Dit fraaie appartement is tevens voorzien van fraaie paneeldeuren en laminaat vloeren.
BIJZONDERHEDEN:
• Bouwjaar 1960.
• Woonoppervlakte circa 58 m².
• Inhoud circa 188 m³.
• Balkon circa 5 m².
• Berging circa 13 m².
• Warmwatervoorziening: 2 elektrische boilers.
• De (inbouw)apparatuur in de keuken bestaat uit: oven, inductiekookplaat, koelkast, magnetron en recirculatiekap.
• Isolatie: HR+ glas en dubbel glas.
• De woonkamer heeft een elektrisch bedienbare buitenzonwering.
• Het balkon heeft een met de hand te bedienen buitenzonwering.
• Er is sprake van een Vereniging van Eigenaars.
• Servicekosten € 455,- op basis van bewoning door 1 persoon.
• Toeslag servicekosten voor een 2e persoon € 15,- per maand.
• Voorschot verwarming circa € 80,- per maand.
• Elektrakosten berging circa € 5,- per maand.
• Entreegeld (eenmalig) € 1.750,-.
• Verwarming: blokverwarming.
• Kad. Gemeente Driebergen, sectie C, nummer 4295 A27 (appartement), 4295 A113 (berging).
• Er is ook een video beschikbaar van het appartement.
• Voor meer informatie:
Overige bijzonderheden:
• Recreatiezaal aanwezig. Deze zaal kan ook worden gehuurd.
• Logeerkamers aanwezig.
• Technische hulp en huishoudelijke hulp beschikbaar (tegen betaling).
• Mogelijkheid om zelf te koken. Maaltijden bestellen kan ook (extern).
• Geen huisdieren toegestaan.
Toelichting maandelijkse VvE-bijdrage:
• Personeelskosten interne organisatie t.b.v. receptie, administratie, schoonmaak etc.
• Regulier en planmatig onderhoud gebouw, inclusief eventuele renovatie/upgrading.
• Installatie-onderhoud (lift, E & W, koeling, keukenapparatuur en cv) en inventaris.
• Onderhoud park, tuin en terrein met bestrating, paden en buitenverlichting.
• Verzekeringen: w.o. opstal, collectieve inboedel, WA- en bedrijfsaansprakelijkheid.
• Glasbewassing uitpandige ramen in de gevels (m.a.w. niet op de balkons/loggia’s).
• Energieverbruik (GWL) algemene ruimten en afvalverwerking huisvuil ed.
• Kantoor- en algemene kosten beheer (bestuur, accountant, kantinekosten, advies ed.).
• Achterwacht/telefonische zorgcentrale buiten kantooruren, (brand)veiligheid ed.
• Individueel watergebruik per appartement.
• Organisatie culturele activiteiten (excl. catering).
Alle overige kosten komen voor rekening van eigenaar en/of bewoner, zoals:
• Individueel aandeel verwarmingskosten o.b.v. verrekening voorschotten;
• Telefonie, internet, kabel TV;
• Persoonlijke service inzake schoonmaak, maaltijden, technische hulp etc.;
• Eventueel gebruik kantine faciliteiten en zaalhuur t.b.v. (familie)feestjes ed.;
• Gemeentelijke belastingen WOZ, rioolrecht, waterschapsbelasting, zuiveringsheffing ed.
Kenmerken
Overdracht
- Servicekosten
- € 455 per maand
- Laatste vraagprijs
- € 215.000 kosten koper
- Vraagprijs per m²
- € 3.707
- Status
- Verkocht
Bouw
- Soort appartement
- Galerijflat (service flat)
- Soort bouw
- Bestaande bouw
- Bouwjaar
- 1960
- Soort dak
- Plat dak bedekt met bitumineuze dakbedekking
- Toegankelijkheid
- Toegankelijk voor mensen met een beperking en toegankelijk voor ouderen
Oppervlakten en inhoud
- Gebruiksoppervlakten
- Wonen
- 58 m²
- Gebouwgebonden buitenruimte
- 5 m²
- Externe bergruimte
- 13 m²
- Inhoud
- 188 m³
Indeling
- Aantal kamers
- 2 kamers (1 slaapkamer)
- Aantal badkamers
- 1 badkamer en 1 apart toilet
- Badkamervoorzieningen
- Douche en wastafelmeubel
- Aantal woonlagen
- 5 woonlagen
- Voorzieningen
- Lift en mechanische ventilatie
- Gelegen op
- 2e woonlaag
Energie
- Energielabel
- D
- Isolatie
- Dubbel glas
- Verwarming
- Blokverwarming
- Warm water
- Elektrische boiler (huur)
Kadastrale gegevens
- DRIEBERGEN-RIJSENBURG C 4295
- Kadastrale kaart
- Eigendomssituatie
- Volle eigendom
- DRIEBERGEN-RIJSENBURG C 4295
- Kadastrale kaart
- Eigendomssituatie
- Volle eigendom
Buitenruimte
- Ligging
- Aan rustige weg, in bosrijke omgeving, in woonwijk en vrij uitzicht
- Balkon/dakterras
- Balkon aanwezig
Bergruimte
- Schuur/berging
- Inpandig
Parkeergelegenheid
- Soort parkeergelegenheid
- Openbaar parkeren
VvE checklist
- Inschrijving KvK
- Ja
- Jaarlijkse vergadering
- Ja
- Periodieke bijdrage
- Ja
- Reservefonds aanwezig
- Ja
- Onderhoudsplan
- Ja
- Opstalverzekering
- Ja
Foto's 38
© 2001-2025 funda





































