
Omschrijving
Deze royale MIDDENWONING met BERGING biedt een geweldige kans voor de handige doe-het-zelver of degene die op zoek is naar een woning met veel potentie. De woning beschikt over maar liefst vijf slaap-/werkkamers, een ruime badkamer en veel daglichtinval door de grote raampartijen. De kunststof kozijnen met dubbel glas op de bovenverdieping zorgen voor comfort en isolatie. Deze woning is geheel naar eigen wens te moderniseren zodat je écht een huis hebt wat helemaal naar jouw zin is. Het huis en de ligging is ideaal voor gezinnen die op zoek zijn naar een fijne woonplek in het groene en rustige Driebergen. Met de berging en de ruime indeling heeft deze woning veel te bieden!
Tuin:
Aan de voorkant is de tuin groen en heeft een pad naar de voordeur. De achtertuin heeft ook veel groen en een deel bestrating aan het huis waar je een lounge hoek of tuintafel neer kunt zetten. Achterin de tuin is een handige stenen berging en een achterom. De perceelgrootte bedraagt 172 m².
Ligging:
De woning is gelegen nabij het buitengebied Langbroekerwetering met klompenpaden, weilanden en kastelen; een geweldige wandel- en fietsomgeving. Natuurlijk kan dat ook in de uitgestrekte bossen die Driebergen rijk is.
De basisschool ligt om de hoek en ook het winkelcentrum “de Sluis” met o.a. een grote supermarkt, het Healthcenter Hoenderdaal met fitness, tennis- en padelbanen alsmede een golfbaan ligt op korte afstand. Het station Driebergen-Zeist ligt op circa 10 minuten fietsafstand en het is slechts een paar minuten rijden naar de oprit van de A12. Het centrum van Driebergen-Rijsenburg ligt op circa 5 minuten fietsafstand en heeft een gezellige winkelstraat met veel variatie in winkels en restaurantjes.
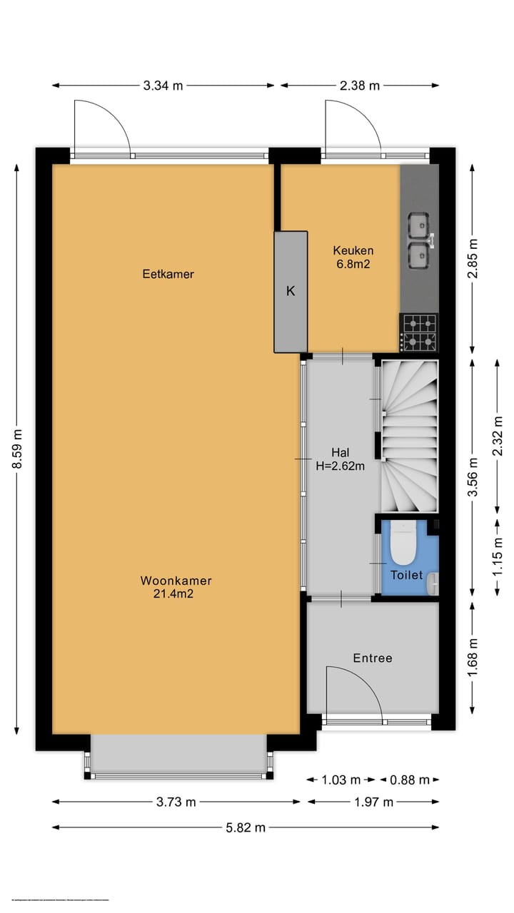
Indeling:
Begane grond
Via de voortuin kom je bij de voordeur en loop je via de entree de hal in. Hier kan je een fijne garderobe en schoenenkast kwijt. Hiervandaan loop je door de hal in waar de toiletruimte zich bevindt, de trapkast met meterkast en de trap naar boven. Vanuit deze hal is de keuken en de woonkamer te bereiken.
Woonkamer en keuken
Een lekker royale woonkamer met grote raampartijen aan de voor- en achterzijde. De erker aan de voorzijde heeft een diep kozijn waar je een zitje kunt realiseren of mooie decoratie kwijt kunt. De woonkamer biedt ruimte voor een gezellige zit- en eethoek en heeft een loopdeur naar de achtertuin. De keuken aan de achterzijde is eenvoudig en heeft een parallel-opstelling en een deur naar de achtertuin. Het is mogelijk om van de woonkamer en keuken een geheel te maken zodat je een gezellige open ruimte hebt.
Eerste verdieping:
3 slaapkamers en een badkamer
Verrassend ruime kamers tref je op deze verdieping. Aan de achterzijde twee slaapkamers, één kleinere werk- of kinderkamer en een grote slaapkamer met inbouwkastenwand. Aan de voorzijde bevindt zich nog een slaapkamer van royaal formaat met inbouwkastenwand. De badkamer heeft een douche, wastafel en toilet en kleurrijke betegeling. Op deze verdieping zijn er in alle ruimtes kunststof kozijnen met grote draai-kiep ramen aanwezig.
Tweede verdieping:
2 slaap-/werkkamers
Wanneer je de trap naar boven neemt heb je in het trappengat een handige bergkast hangen. Direct links bevindt zich een bergruimte met cv-opstelling. Deze verdieping biedt ruimte voor 2 slaap-/werkkamers door middel van de dakopbouw. De kleinere kamer aan de achterzijde is een fijne thuiswerkplek of babykamer. De grote zolderkamer is een verrassend grote ruimte. Veel lichtinval, een wastafel en veel bergruimte achter de knieschotten. Mocht je willen uitbreiden is het mogelijk om een derde slaapkamer op deze verdieping te realiseren. Ook op deze verdieping zijn er kunststof kozijnen met dubbel glas en draai-kiep ramen aanwezig.
BIJZONDERHEDEN:
• Bouwjaar 1970.
• Woonoppervlakte circa 132 m².
• Inhoud circa 436 m³.
• Berging circa 7,5 m².
• Zonligging: noordoost.
• Verwarming: cv-gas combiketel (merk Vaillant).
• Warmwatervoorziening: cv-gas combiketel.
• Isolatie: kunststof kozijnen met HR++ glas.
• Energielabel: C.
• Kadastraal bekend Gemeente Driebergen-Rijsenburg, sectie C, nummer 2714, groot 172 m².
• Er is een unieke website beschikbaar van de woning! Download de brochure!
• Er is ook een video beschikbaar van de woning.
• Bouwkundig rapport aanwezig.
•
Kenmerken
Overdracht
- Laatste vraagprijs
- € 465.000 kosten koper
- Vraagprijs per m²
- € 3.523
- Status
- Verkocht
Bouw
- Soort woonhuis
- Eengezinswoning, tussenwoning
- Soort bouw
- Bestaande bouw
- Bouwjaar
- 1970
- Soort dak
- Zadeldak bedekt met pannen
Oppervlakten en inhoud
- Gebruiksoppervlakten
- Wonen
- 132 m²
- Externe bergruimte
- 7 m²
- Perceel
- 172 m²
- Inhoud
- 436 m³
Indeling
- Aantal kamers
- 6 kamers (4 slaapkamers)
- Aantal badkamers
- 1 badkamer en 1 apart toilet
- Badkamervoorzieningen
- Douche, toilet, en wastafel
- Aantal woonlagen
- 3 woonlagen
Energie
- Energielabel
- Isolatie
- Dubbel glas en HR-glas
- Verwarming
- Cv-ketel
- Warm water
- Cv-ketel
- Cv-ketel
- Vaillant HR Solide (gas gestookt combiketel, eigendom)
Kadastrale gegevens
- DRIEBERGEN-RIJSENBURG C 2714
- Kadastrale kaart
- Oppervlakte
- 172 m²
- Eigendomssituatie
- Volle eigendom
Buitenruimte
- Ligging
- In woonwijk
- Tuin
- Achtertuin en voortuin
- Achtertuin
- 64 m² (10,65 meter diep en 6,00 meter breed)
- Ligging tuin
- Gelegen op het noordoosten bereikbaar via achterom
Bergruimte
- Schuur/berging
- Vrijstaande stenen berging
- Voorzieningen
- Elektra
Parkeergelegenheid
- Soort parkeergelegenheid
- Openbaar parkeren
Foto's 50
© 2001-2026 funda

















































