Dit huis op Funda: https://www.funda.nl/detail/koop/dronten/huis-de-morinel-326/43272156/

De Morinel 3268251 JG DrontenDe Oeverloperwijk
€ 310.000 k.k.
Omschrijving
Let op! Deze vraagprijs betreft een "Bieden vanaf prijs".
Op zoek naar een ruime woning met vier slaapkamers in een fijne, groene wijk? Deze tussenwoning biedt verrassend veel leefruimte en ligt in een ruim opgezette omgeving op korte afstand van station Dronten, winkels en scholen. De zonnige tuin op het oosten met praktische achterom maakt dit een ideale woning voor starters en jonge gezinnen die waarde hechten aan ruimte en woonplezier.
Indeling; Begane grond
Via de entree kom je in de hal met vernieuwde meterkast, hangend toilet met fonteintje, provisiekast en trapopgang. De lichte doorzonwoonkamer zorgt dankzij de grote ramen voor een prettige sfeer en veel daglicht. De keuken, uitgevoerd in een donkere kleurstelling, sluit direct aan op de woonkamer. Deze is voorzien van een inbouwkoelkast, 5-pits gaskookplaat, afzuigschouw en losse vaatwasser. Via de deur in de keuken loop je zo de achtertuin in. De tuin ligt op het oosten en beschikt over een achterom en een houten berging.
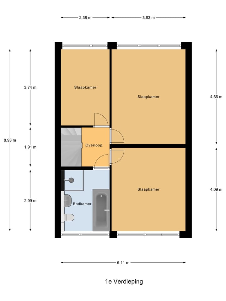
Eerste verdieping
Op de eerste verdieping bevinden zich drie ruime slaapkamers en de badkamer. De volledig betegelde badkamer is uitgerust met een inloopdouche, ligbad, hangend toilet en wastafel. Alle slaapkamers zijn voorzien van een laminaatvloer.
Tweede verdieping
De vaste trap brengt je naar de tweede verdieping. Op de voorzolder vind je de aansluitingen voor de wasmachine, de mechanische ventilatie en de cv-ketel, die netjes is weggewerkt in een kast. Daarnaast is er een royale vierde slaapkamer met dakraam.
* Bouwjaar 1973; perceeloppervlak: circa 173m²
* Energielabel B
* 4 Slaapkamers
* HR++ beglazing 1e verdieping
* CV-ketel Intergas 2020
* Vloeren voorzien van laminaat
* Nabij speelvoorzieningen
* Ruim voldoende parkeergelegenheid aanwezig
* NS-station Dronten is op korte afstand gelegen
* Gelegen op fietsafstand vanaf het centrum
* Bij verkoop hanteren wij een NVM koopakte model 2023 met de volgende toegevoegde clausules: asbestclausule en ouderdomsclausule
* Verplichting tot zelfbewoning
* Aanvaarding in overleg
* Makelaardij Van der Linden te Dronten
Deze informatie is door ons met de nodige zorgvuldigheid samengesteld. Onzerzijds wordt echter geen enkele aansprakelijkheid aanvaard voor enige onvolledigheid, onjuistheid of anderszins, dan wel de gevolgen daarvan. Alle opgegeven maten en oppervlakten zijn indicatief.
Kenmerken
Overdracht
- Aangeboden sinds
- Aanvaarding
- In overleg
- Vraagprijs
- € 310.000 kosten koper
- Vraagprijs per m²
- € 2.279
- Status
- Beschikbaar
Bouw
- Soort woonhuis
- Eengezinswoning, tussenwoning
- Soort bouw
- Bestaande bouw
- Bouwjaar
- 1973
- Specifiek
- Gedeeltelijk gestoffeerd
- Soort dak
- Zadeldak bedekt met pannen
Oppervlakten en inhoud
- Gebruiksoppervlakten
- Wonen
- 136 m²
- Externe bergruimte
- 5 m²
- Perceel
- 173 m²
- Inhoud
- 490 m³
Indeling
- Aantal kamers
- 5 kamers (4 slaapkamers)
- Aantal badkamers
- 1 badkamer en 1 apart toilet
- Badkamervoorzieningen
- Douche, ligbad, toilet, wastafel, en wastafelmeubel
- Aantal woonlagen
- 2 woonlagen en een zolder
- Voorzieningen
- Dakraam, glasvezelkabel, mechanische ventilatie, natuurlijke ventilatie, en TV kabel
Energie
- Energielabel
- B
- Isolatie
- Dakisolatie, dubbel glas, muurisolatie en vloerisolatie
- Verwarming
- Cv-ketel
- Warm water
- Cv-ketel
- Cv-ketel
- Intergas Kompakt HRE 28/24 (gas gestookt combiketel uit 2020, eigendom)
Kadastrale gegevens
- DRONTEN A 9498
- Kadastrale kaart
- Oppervlakte
- 173 m²
- Eigendomssituatie
- Volle eigendom
Buitenruimte
- Ligging
- Aan rustige weg en in woonwijk
- Tuin
- Achtertuin en voortuin
- Achtertuin
- 78 m² (13,00 meter diep en 6,00 meter breed)
- Ligging tuin
- Gelegen op het oosten bereikbaar via achterom
Bergruimte
- Schuur/berging
- Vrijstaande houten berging
- Voorzieningen
- Elektra
Parkeergelegenheid
- Soort parkeergelegenheid
- Openbaar parkeren
Foto's 50
Plattegronden 5
© 2001-2025 funda






















































