Dit huis op Funda: https://www.funda.nl/detail/koop/drunen/huis-europalaan-25/43272848/

Omschrijving
Stap binnen in deze fijne tussenwoning en ontdek een plek waar ruimte, licht en comfort moeiteloos samenkomen. De ruime leefruimte met open keuken vormt het hart van het huis: een uitnodigende plek waar je gezellig kunt tafelen, samen kunt koken of ontspannen na een drukke dag. Met maar liefst vijf slaapkamers, waarvan twee op de tweede verdieping, is er volop ruimte voor een groeiend gezin, een thuiskantoor of hobbyruimte. Dankzij de moderne afwerking en de praktische indeling voelt dit huis direct prettig en warm aan. Ook glasvezelinternet is aanwezig, ideaal voor thuiswerken of streamen. Deze woning biedt alles voor een comfortabel dagelijks leven.
De tuin is compact maar praktisch ingericht en biedt dankzij de ligging op het oosten een fijne plek om ’s ochtends van de zon te genieten. Onder de overkapping zit je het hele jaar door comfortabel buiten, ook bij minder weer. De berging zorgt voor extra opbergruimte voor fietsen en tuingereedschap, waardoor de tuin onderhoudsvriendelijk en overzichtelijk blijft.
Je woont hier in een rustige, kindvriendelijke wijk waar de basisschool om de hoek ligt. Op de fiets ben je binnen enkele minuten in het gezellige centrum van Drunen met een gevarieerd aanbod aan winkels en horeca. Ook de uitvalswegen liggen dichtbij, waardoor je eenvoudig en snel richting omliggende steden rijdt.
Belangrijk om te weten:
- Tussenwoning in Drunen;
- Fijne leefruimte met open keuken;
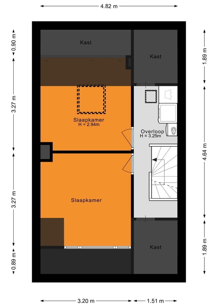
- Beschikt over vijf slaapkamers verdeeld over twee verdiepingen;
- Moderne badkamer met inloopdouche;
- Compacte, onderhoudsvriendelijke tuin op het oosten;
- Voorzien van overkapping en praktische berging;
- Glasvezelinternet aanwezig;
- Gelegen in een rustige, kindvriendelijke wijk;
- Basisschool en centrum van Drunen op korte afstand;
- Uitvalswegen snel en eenvoudig bereikbaar;
- Aanvaarding in overleg.
Deze informatie is door ons met de nodige zorgvuldigheid samengesteld. Onzerzijds wordt echter geen enkele aansprakelijkheid aanvaard voor enige onvolledigheid, onjuistheid of anderszins, dan wel de gevolgen daarvan. Alle opgegeven maten en oppervlakten zijn indicatief.
Kenmerken
Overdracht
- Aangeboden sinds
- Aanvaarding
- In overleg
- Vraagprijs
- € 435.000 kosten koper
- Vraagprijs per m²
- € 3.919
- Status
- Verkocht onder voorbehoud
Bouw
- Soort woonhuis
- Eengezinswoning, tussenwoning
- Soort bouw
- Bestaande bouw
- Bouwjaar
- 1984
- Soort dak
- Zadeldak bedekt met pannen
Oppervlakten en inhoud
- Gebruiksoppervlakten
- Wonen
- 111 m²
- Externe bergruimte
- 6 m²
- Perceel
- 134 m²
- Inhoud
- 385 m³
Indeling
- Aantal kamers
- 6 kamers (5 slaapkamers)
- Aantal badkamers
- 1 badkamer en 1 apart toilet
- Badkamervoorzieningen
- Inloopdouche, toilet, wastafel, en wastafelmeubel
- Aantal woonlagen
- 3 woonlagen
- Voorzieningen
- Dakraam, glasvezelkabel, en TV kabel
Energie
- Energielabel
- Isolatie
- Dakisolatie en dubbel glas
- Verwarming
- Cv-ketel
- Warm water
- Cv-ketel
- Cv-ketel
- Intergas (gas gestookt combiketel uit 2020, eigendom)
Kadastrale gegevens
- DRUNEN L 3174
- Kadastrale kaart
- Oppervlakte
- 134 m²
- Eigendomssituatie
- Volle eigendom
Buitenruimte
- Ligging
- Aan rustige weg en in woonwijk
- Tuin
- Achtertuin en voortuin
- Achtertuin
- 38 m² (7,55 meter diep en 5,04 meter breed)
- Ligging tuin
- Gelegen op het oosten bereikbaar via achterom
Bergruimte
- Schuur/berging
- Vrijstaande stenen berging
- Voorzieningen
- Elektra
Parkeergelegenheid
- Soort parkeergelegenheid
- Openbaar parkeren
Foto's 38
Plattegronden 4
© 2001-2026 funda









































