
Omschrijving
ROYAAL APPARTEMENT MET FRAAI UITZICHT
Ruim 5-kamer appartement gelegen op de tweede en derde verdieping met parkeermogelijkheid op eigen terrein en berging. Wonen op een prachtige locatie in voormaling hotel/café-restaurant in Eefde, nabij Hanzestad Zutphen. Het appartement is gesitueerd aan de westzijde in het stijlvolle historische pand “de Laatste Stuiver”. Royale woonkamer met open keuken en balkon gesitueerd aan de meest zonnige kant met dubbele balkondeuren. In totaal zijn er maar liefst 4 slaapkamers op de verdiepingen. Het appartement is te bereiken met zowel de trap als de lift waardoor het mogelijk is om levensloopbestendig te wonen.
Het appartement is gelegen aan de rand van de plaats Eefde in de gemeente Lochem en heeft diverse voorzieningen zoals basisscholen, supermarkt, dorpshuis en sportverenigingen. Via de Eefdese Brug is de Hanzestad Zutphen gemakkelijk te bereiken en gelegen op 4 kilometer fietsafstand.
INDELING
Begane grond: Entree met lift en trapopgang.
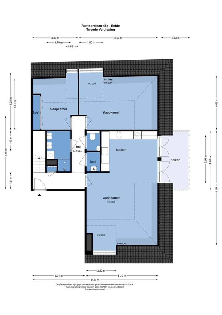
Tweede verdieping: L-vormige hal met meterkast. Toilet met fontein. Vaste kast met Cv-opstelling. Royale woonkamer met dubbele balkondeuren naar het zonnige balkon. Open keuken met inductiekookplaat, afzuigkap, koelkast, vriezer, vaatwasser en combimagnetron. Twee royale slaapkamers waarvan één met vaste kast. Badkamer met dubbele wastafel, wasmachineaansluiting en douche.
Derde verdieping: Overloop met dakraam. Twee royale slaapkamers met dakraam.
KENMERKEN
Bouwjaar: 2007. Inhoud: ca. 355 m³. Woonoppervlakte: ca. 127 m². HR-CV combiketel (2007). Volledig geïsoleerd. Energielabel B. Bijzonderheden: Servicekosten € 100,- per maand.
Kenmerken
Overdracht
- Laatste vraagprijs
- € 475.000 kosten koper
- Vraagprijs per m²
- € 3.740
- Status
- Verkocht
- Bijdrage VvE
- € 100,00 per maand
Bouw
- Soort appartement
- Maisonnette (appartement)
- Soort bouw
- Bestaande bouw
- Bouwjaar
- 2007
- Specifiek
- Gedeeltelijk gestoffeerd
- Soort dak
- Zadeldak bedekt met pannen
- Toegankelijkheid
- Toegankelijk voor mensen met een beperking en toegankelijk voor ouderen
Oppervlakten en inhoud
- Gebruiksoppervlakten
- Wonen
- 127 m²
- Gebouwgebonden buitenruimte
- 8 m²
- Inhoud
- 355 m³
Indeling
- Aantal kamers
- 5 kamers (4 slaapkamers)
- Aantal badkamers
- 1 badkamer en 1 apart toilet
- Badkamervoorzieningen
- Dubbele wastafel en inloopdouche
- Aantal woonlagen
- 2 woonlagen
- Voorzieningen
- Dakraam, glasvezelkabel, lift, mechanische ventilatie, en TV kabel
Energie
- Energielabel
- Isolatie
- Volledig geïsoleerd
- Verwarming
- Cv-ketel
- Warm water
- Cv-ketel
- Cv-ketel
- Gas gestookt combiketel uit 2007, eigendom
Kadastrale gegevens
- GORSSEL L 1336
- Kadastrale kaart
- Eigendomssituatie
- Volle eigendom
Buitenruimte
- Ligging
- Aan rustige weg, beschutte ligging en in bosrijke omgeving
- Balkon/dakterras
- Balkon aanwezig
Bergruimte
- Schuur/berging
- Vrijstaande stenen berging
Garage
- Soort garage
- Niet aanwezig, wel mogelijk
Parkeergelegenheid
- Soort parkeergelegenheid
- Op eigen terrein
VvE checklist
- Inschrijving KvK
- Ja
- Jaarlijkse vergadering
- Ja
- Periodieke bijdrage
- Ja (€ 100,00 per maand)
- Reservefonds aanwezig
- Ja
- Onderhoudsplan
- Ja
- Opstalverzekering
- Ja
Foto's 24
© 2001-2026 funda























