
Omschrijving
Stap binnen in deze charmante semi-bungalow met garage op een centrale plaats en op loopafstand van het gezellige dorpscentrum van Eibergen.
Deze comfortabele woning werd in 1961 gebouwd als eerste bungalow in Eibergen en ligt op een royaal perceel van 968 m². Later is deze woning verbouwd tot een semi-bungalow. Het complete woonprogramma is op de begane grond aanwezig en op de eerste verdieping zijn er nog eens drie slaapkamers te vinden waardoor het ook uitermate geschikt is als gezinswoning.
De woning heeft dus volop mogelijkheden en ligt op een ideale locatie met alle voorzieningen zoals scholen, speelgelegenheden voor kinderen, winkels en openbaar vervoer op loopafstand.
Zie jij hier een mooie kans om hier je eigen thuis van te maken en wil je graag eens komen kijken? Neem dan contact met ons op.
De indeling is als volgt:
Begane grond:
Je komt de woning binnen in de speelse entree met een fraaie tegelvloer. Vanuit deze entree/gang zijn de verschillende vertrekken op de begane grond te bereiken. Vanuit de open trapopgang is de eerste verdieping bereikbaar. De woonkamer, welke aan de voorzijde van de woning is gesitueerd, heeft een prima zit- en eetgedeelte. De diversiteit aan raampartijen en tuindeur zorgen voor een heerlijke lichte uitstraling, een prachtige verbinding met het buitenleven en een fantastisch uitzicht op de groene tuin. De woonkamer beschikt over een authentieke houtkachel.
Vanuit de hal loop je door naar de dichte keuken, vanuit hier is er eveneens toegang tot de tuin en een praktische vaste bergkast. Loop je verder vanuit de gang, dan zijn hier toilet en vijf slaapkamers te bereiken. Drie slaapkamers zijn voorzien van vaste kasten. De badkamer, welke vanuit de keuken bereikbaar is, is eenvoudig maar functioneel; hier bevindt zich eveneens de aansluiting voor het witgoed.
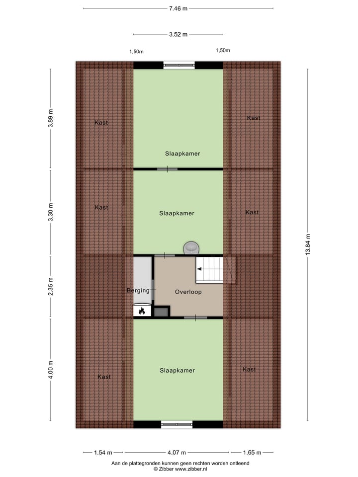
Eerste verdieping:
Via de overloop is er een royale eerste verdieping bereikbaar. Er zijn momenteel drie (slaap)kamers gesitueerd waarvan één met eigen wastafel. Daarnaast is de eerste verdieping de opstelplaats van de cv-ketel (2021).
Buitenruimte met bijgebouwen:
Wauw wat een ruimte! Naast de woning ligt een ruime oprit met genoeg ruimte om minimaal drie auto's te parkeren. Rondom de woning bevindt zich een heerlijk groene tuin met veel privacy. Er is een vrijstaande stenen garage met vliering aanwezig, deze is voorzien van elektra.. In het verleden diende een gedeelte van de garage als paardenstal. Achterin de tuin staat een houten tuinhuis, waar je heerlijk kunt vertoeven en ideaal voor het opbergen van al jouw tuingereedschap.
Bijzonderheden:
- Gunstige ligging nabij alle benodigde voorzieningen en het gezellige centrum van Eibergen;
- Royaal perceel met veel groen, ruime oprit met garage en parkeergelegenheid op eigen terrein;
- Woning met veel mogelijkheden;
- Ramen woonkamer voorzien van rolluiken (voor- en zijkant);
- Raam achterzijde en kamerdeur beschikt over een groot elektrisch zonnescherm;
- Woonoppervlakte circa 152 m²;
- Perceeloppervlakte 968 m²;
- Bouwjaar 1961;
- Energielabel F.
AANVAARDING: IN OVERLEG
VRAAGPRJS: € 485.000,- K.K.
Tot zekerheid van de nakoming van de verplichtingen van de koopovereenkomst dient de kopende
partij een bankgarantie te stellen of een waarborgsom te storten ten bedrage van 10% van de
koopsom.
Kenmerken
Overdracht
- Laatste vraagprijs
- € 485.000 kosten koper
- Vraagprijs per m²
- € 3.191
- Status
- Verkocht
Bouw
- Soort woonhuis
- Bungalow, vrijstaande woning (semi-bungalow)
- Soort bouw
- Bestaande bouw
- Bouwjaar
- 1961
- Soort dak
- Zadeldak bedekt met pannen
- Toegankelijkheid
- Toegankelijk voor mensen met een beperking en toegankelijk voor ouderen
Oppervlakten en inhoud
- Gebruiksoppervlakten
- Wonen
- 152 m²
- Gebouwgebonden buitenruimte
- 3 m²
- Externe bergruimte
- 34 m²
- Perceel
- 968 m²
- Inhoud
- 563 m³
Indeling
- Aantal kamers
- 9 kamers (8 slaapkamers)
- Aantal badkamers
- 1 badkamer en 1 apart toilet
- Badkamervoorzieningen
- Douche en wastafel
- Aantal woonlagen
- 2 woonlagen
- Voorzieningen
- Rolluiken en rookkanaal
Energie
- Energielabel
- F
- Isolatie
- Gedeeltelijk dubbel glas
- Verwarming
- Cv-ketel
- Warm water
- Cv-ketel
- Cv-ketel
- Nefit Trendline (gas gestookt combiketel uit 2021, eigendom)
Kadastrale gegevens
- EIBERGEN G 465
- Kadastrale kaart
- Oppervlakte
- 968 m²
- Eigendomssituatie
- Volle eigendom
Buitenruimte
- Ligging
- Aan drukke weg, in woonwijk, open ligging en vrij uitzicht
- Tuin
- Achtertuin, tuin rondom en voortuin
Bergruimte
- Schuur/berging
- Vrijstaande houten berging
Garage
- Soort garage
- Vrijstaande stenen garage
- Capaciteit
- 1 auto
- Voorzieningen
- Elektra
Parkeergelegenheid
- Soort parkeergelegenheid
- Op eigen terrein
Foto's 52
© 2001-2025 funda



















































