
Omschrijving
DHVC Vatgoed biedt aan: Franklinplein 3, 5621 GA Eindhoven!
Bent u op zoek naar een woning met veel mogelijkheden in een dynamische buurt? Dan is Franklinplein 3 precies wat u zoekt. Deze charmante woning uit 1935 is bijzonder geschikt voor verschillende doeleinden: ideaal voor eigen bewoning, als verhuurobject in twee zelfstandige wooneenheden, of als dubbele bovenwoning met ruimte voor aanpassingen naar eigen wens.
Sterke punten:
• Het pand kan gebruikt worden als twee zelfstandige wooneenheden, of als één grote woning met maar liefst twee verdiepingen en een zolder.
• Vrij uitzicht over het Franklinplein en de Wattstraat, waardoor u geniet van rust en privacy.
• De woning is perfect gelegen, op slechts een paar minuten loopafstand van station Eindhoven Strijp-S, supermarkten en eetgelegenheden. Het centrum van Eindhoven ligt op slechts tien minuten fietsen.
• Gratis parkeren voor de deur en uitstekende bereikbaarheid van de snelwegen A67 en A2.
Indeling en ontwerp:
Deze woning heeft geen rechttoe rechtaan indeling, maar is juist ruimtelijk vormgegeven met een flexibele indeling die zich goed leent voor verschillende woonconcepten. Op dit moment is het mogelijk om de woning te gebruiken als twee zelfstandige wooneenheden, maar met een paar aanpassingen kunt u het geheel ook gebruiken als één ruime bovenwoning. De mogelijkheden zijn eindeloos!
Over de buurt:
Franklinplein ligt in een populaire en opkomende buurt, met uitstekende voorzieningen en openbaar vervoer binnen handbereik. Geniet van de levendige sfeer van Strijp-S en profiteer van de nabijheid van zowel de stad als de snelwegen.
Kortom, Franklinplein 3 is een woning die zich aanpast aan uw wensen. Of u nu zoekt naar een fijne woning voor uzelf, een slimme investering, of een combinatie van beide, deze woning biedt het allemaal. Neem snel contact op voor een bezichtiging!
Kenmerken
Overdracht
- Laatste vraagprijs
- € 325.000 kosten koper
- Vraagprijs per m²
- € 2.196
- Status
- Verkocht
Bouw
- Soort appartement
- Bovenwoning
- Soort bouw
- Bestaande bouw
- Bouwjaar
- 1935
Oppervlakten en inhoud
- Gebruiksoppervlakten
- Wonen
- 148 m²
- Overige inpandige ruimte
- 1 m²
- Gebouwgebonden buitenruimte
- 17 m²
- Inhoud
- 486 m³
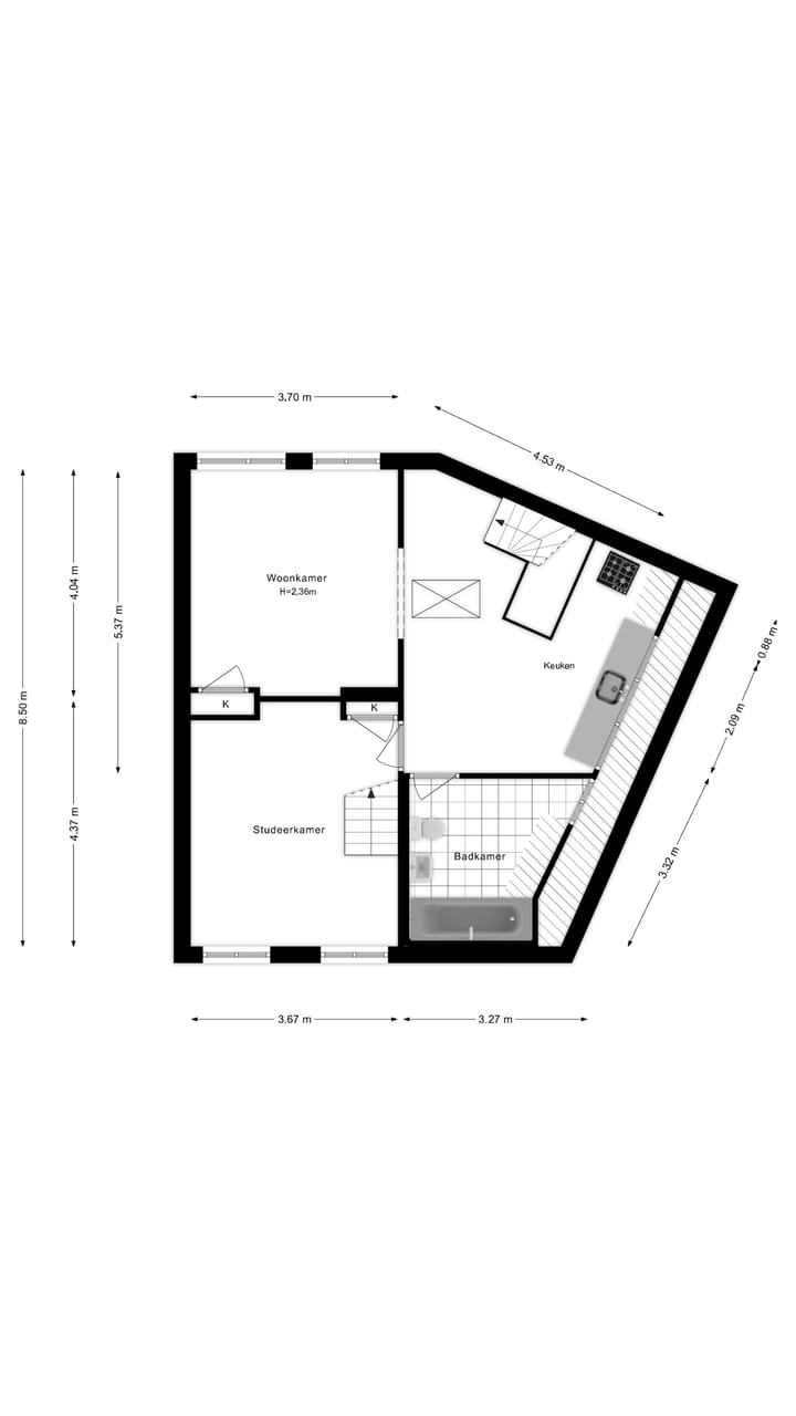
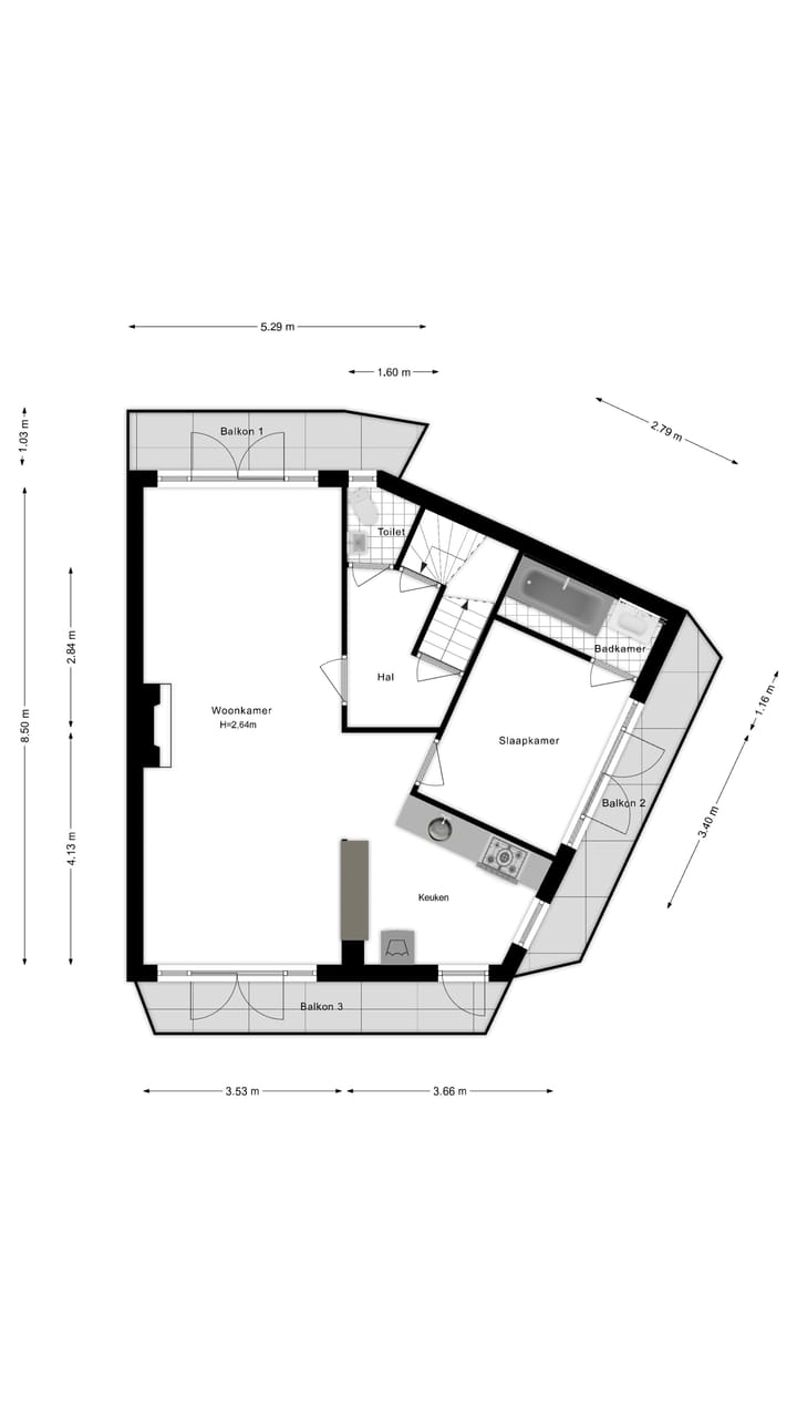
Indeling
- Aantal kamers
- 6 kamers (4 slaapkamers)
- Aantal badkamers
- 2 badkamers en 1 apart toilet
- Badkamervoorzieningen
- 2 ligbaden, 2 wastafels, en toilet
- Aantal woonlagen
- 3 woonlagen en een zolder
Energie
- Energielabel
- E
- Isolatie
- Dubbel glas
- Verwarming
- Cv-ketel
- Cv-ketel
- Avanta Ace 35s CCS ( combiketel, eigendom)
Kadastrale gegevens
- WOENSEL G 5411
- Kadastrale kaart
- Eigendomssituatie
- Volle eigendom
Buitenruimte
- Balkon/dakterras
- Balkon aanwezig
Parkeergelegenheid
- Soort parkeergelegenheid
- Openbaar parkeren
VvE checklist
- Inschrijving KvK
- Nee
- Jaarlijkse vergadering
- Nee
- Periodieke bijdrage
- Nee
- Reservefonds aanwezig
- Nee
- Onderhoudsplan
- Nee
- Opstalverzekering
- Nee
Foto's 42
© 2001-2025 funda









































