
Omschrijving
Volledige privacy en de zon zien ondergaan, heerlijk rustig op het balkon van je riante appartement op de 3e verdieping. Het kan!
Dit ruime (88 m2) afgewerkte 3-kamer hoekappartement met balkon op het westen is te koop. Ben je nou al een tijdje op zoek naar ruimte (en dan bedoelen we ook echt een grote leefruimte en royale slaapkamers), dan is dit misschien wel je kans.
Locatie & Omgeving
De woning bevindt zich in een rustige woonwijk in Woenselse Heide. Er zijn voldoende voorzieningen in de directe omgeving, waaronder het Henri Dunantpark en het Catharina Ziekenhuis, maar ook sportpark Eindhoven Noord met zijn vele sportfaciliteiten is te voet bereikbaar. Supermarkt? Aan de voet van het complex tref je 2 supermarkten, ideaal!
Kom kijken en wordt net zo enthousiast als wij!
Indeling:
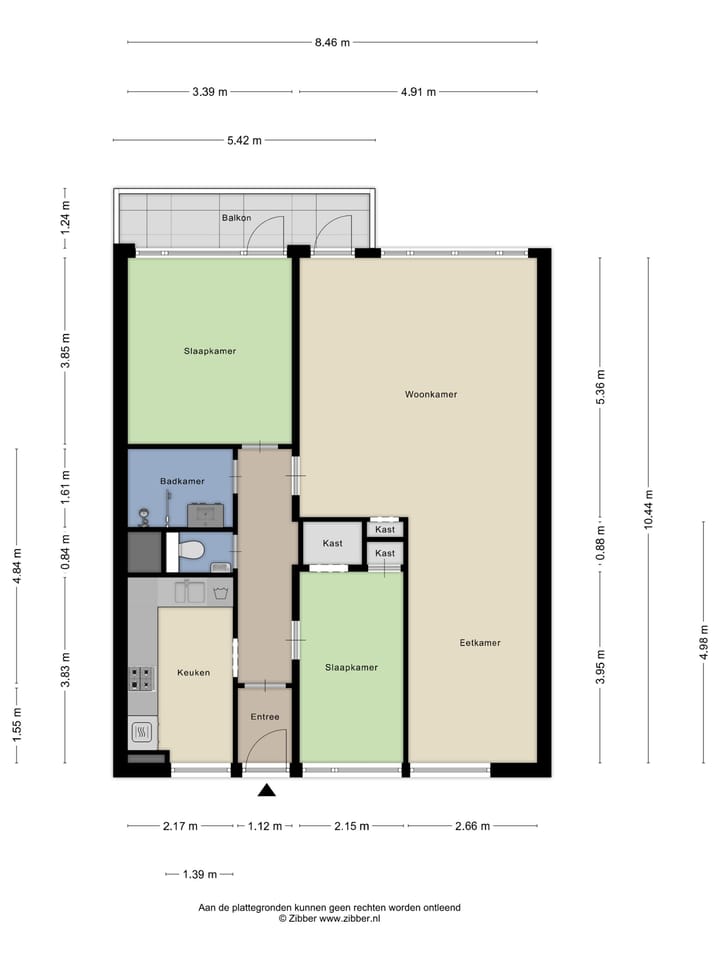
Begane grond:
CENTRALE ENTREE
Centrale entree met automatische entreedeur, bellentableau, videofooninstallatie en brievenbussen. Centrale hal met tegelvloer, 2 liften, trapopgang en toegang tot de bergingen.
BERGING
Berging (ca. 8 m2), ideaal gelegen op de begane grond (niet vochtig dus)!
3e Verdieping:
Galerij met meterkast en entree naar appartement.
PORTAAL
Met laminaatvloer en toegang tot de hal.
HAL
Met laminaatvloer, videofooninstallatie, toegang tot alle vertrekken.
WOONKAMER
Riante L-vormige woonkamer (ca. 40 m2) met laminaatvloer, inbouwkast, deur naar balkon en een fraai uitzicht aan zowel de voor- als achterzijde.
KEUKEN
Keuken, gelegen aan de voorzijde, voorzien van moderne keukeninrichting en eetbar. De keukeninrichting bestaat uit een koelkast, kookplaat, afzuigkap, spoelbak, mengkraan, kunststof werkblad en een aansluiting voor wasmachine of vaatwasmachine.
SLAAPKAMER
Gelegen aan de voorzijde (ca. 9 m2) met laminaatvloer en 2 inbouwkasten.
SLAAPKAMER
Gelegen aan de achterzijde (ca. 12 m2) met laminaatvloer en deur naar het balkon.
TOILET
Geheel betegelde toiletruimte met wandcloset en fonteintje.
BADKAMER
Geheel betegelde badkamer (2020) met terrazzovloer, inloopdouche (met thermostaatkraan) en wasmeubel.
BALKON
Lekker ruim balkon op het westen (ca. 8 m2) dus 's avonds heerlijk genieten van de ondergaande zon! Het balkon is voorzien van vlonders.
Bijzonderheden:
Bijzonder ruim appartement op de 2e verdieping met een vrij uitzicht !
Hoekligging dus aan een zijde geen buren;
Door ligging aan einde galerij ook geen passerende buren;
Op korte afstand van Winkelcentrum Woensel, sportpark, speelpark, uitvalswegen en de snelweg;
Op de begane grond tref je onder andere 2 supermarkten, een Kruitvat, 2x snackbar, kappers, restaurant en dierenarts;
Bushalte op loopafstand,
Er is volop openbare parkeergelegenheid nabij de ingang van het appartementencomplex;;
Voorzien van 2 liften;
Berging op de begane grond;
Aansluiting op het glasvezelnetwerk;
Servicekosten bedragen EUR 195,= per maand en het voorschot in de stookkosten bedraagt EUR. 60,--, totaal EUR. 255,= per maand;
Gezonde en actieve Vereniging van Eigenaren, stukken ter inzage op kantoor;
Aanvaarding in overleg.
Kenmerken
Overdracht
- Laatste vraagprijs
- € 339.000 kosten koper
- Vraagprijs per m²
- € 3.852
- Status
- Verkocht
- Bijdrage VvE
- € 195,00 per maand
Bouw
- Soort appartement
- Galerijflat (appartement)
- Soort bouw
- Bestaande bouw
- Bouwjaar
- 1971
- Soort dak
- Plat dak
- Toegankelijkheid
- Toegankelijk voor mensen met een beperking en toegankelijk voor ouderen
Oppervlakten en inhoud
- Gebruiksoppervlakten
- Wonen
- 88 m²
- Gebouwgebonden buitenruimte
- 7 m²
- Externe bergruimte
- 8 m²
- Inhoud
- 289 m³
Indeling
- Aantal kamers
- 3 kamers (2 slaapkamers)
- Aantal badkamers
- 1 badkamer en 1 apart toilet
- Badkamervoorzieningen
- Inloopdouche en wastafelmeubel
- Aantal woonlagen
- 8 woonlagen
- Voorzieningen
- Lift en TV kabel
- Gelegen op
- 3e woonlaag
Energie
- Energielabel
- C
- Isolatie
- Dubbel glas, HR-glas en muurisolatie
- Verwarming
- Blokverwarming
- Warm water
- Centrale voorziening
Kadastrale gegevens
- WOENSEL R 475
- Kadastrale kaart
- Eigendomssituatie
- Volle eigendom
Buitenruimte
- Ligging
- In woonwijk en vrij uitzicht
- Balkon/dakterras
- Balkon aanwezig
Bergruimte
- Schuur/berging
- Inpandig
Parkeergelegenheid
- Soort parkeergelegenheid
- Openbaar parkeren
VvE checklist
- Inschrijving KvK
- Ja
- Jaarlijkse vergadering
- Ja
- Periodieke bijdrage
- Ja (€ 195,00 per maand)
- Reservefonds aanwezig
- Ja
- Onderhoudsplan
- Ja
- Opstalverzekering
- Ja
Foto's 36
© 2001-2025 funda



































