Dit huis op Funda: https://www.funda.nl/detail/koop/eindhoven/huis-cellostraat-19/43899044/

Omschrijving
Wil je wel alle voordelen van een nieuwbouwwoning, maar niet de lange wachttijd? Dan ben je op de Cellostraat 19 aan het juiste adres! De woning is per direct beschikbaar.
Deze sfeervolle en instapklare brede middenwoning is gebouwd in 2020 en beschikt over moderne keuken, maar liefst 4 ruime slaapkamers, sfeervolle woonkamer en royale serre aan de achterzijde van de woning.
Daarnaast is de woning zeer energiezuinig, want hij is volledig geïsoleerd en beschikt over energielabel A, 16 zonnepanelen, vloerverwarming in de gehele woning, vloerverkoeling en aardwarmtepomp.
De woning ligt in de wijk genaamd 'Berckelbosch'. Berckelbosch is een groen opgezette nieuwbouwwijk op fietsafstand van het stadscentrum van Eindhoven. Binnen de wijk zijn er scholen, winkels, verschillende sportvoorzieningen en is het groen dichtbij. Verder is er een perfecte bereikbaarheid richting High Tech Campus, Tu/E, ASML en de belangrijke uitvalswegen.
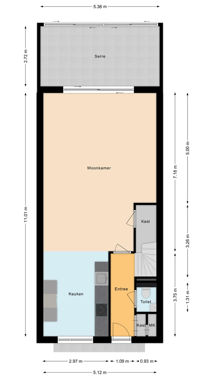
Begane grond:
Entree/hal
De entree/hal geeft toegang tot de moderne toiletruimte met sfeervol wandtegelwerk, hangcloset en fonteintje, meterkast (+ glasvezelaansluiting), trapopgang en toegang tot het woongedeelte.
Woonkamer
De grote neutrale vloertegels met vloerverwarming/-verkoeling geven het woongedeelte een moderne uitstraling. De aan de achterzijde gelegen woonkamer is voorzien van strak gestucte wandafwerking en staat in direct contact met de serre middels schuifpui. Daarnaast is onder de trap een praktische provisieruimte aanwezig.
Keuken
Aan de voorzijde gelegen moderne woonkeuken met open karakter. De nette keuken in rechte opstelling beschikt over 4-pits inductiekookplaat met rvs-afzuigkap, vaatwasser, combi-oven en koel-vriescombinatie. Daarnaast is er voldoende bergruimte in de lades en kasten.
Serre
Over de volle breedte aangebouwde serre. De serre beschikt over een glazen schuifwand waardoor je hier heerlijk kunt genieten tijdens de nazomeravonden.
Tuin
Bij de woning zit een onderhoudsvriendelijke tuin gesitueerd op het zonnige Westen. De tuin beschikt over gazon, beplating en stenen looppad. In de tuin staat een houten berging voorzien van elektra en is achterom bereikbaar.
Bij de woning zit een eigen parkeerplaats om de hoek van de woning.
1e verdieping:
De volledige eerste verdieping is afgewerkt met neutrale tegelvloer en beschikt over vloerverwarming en -verkoeling.
De overloop geeft toegang tot 3 slaapkamers en de badkamer.
Slaapkamer 1
Riante aan de achterzijde gelegen slaapkamer (4.41 x 2.98 m.) met tegelvloer en strak gestucte wand- en plafondafwerking. De kamer heeft hardhouten kozijnen met HR++ beglazing.
Slaapkamer 2
Aan de voorzijde gelegen slaapkamer (4.10 x 2.98 m.) met tegelvloer en strak gestucte wand- en plafondafwerking. De kamer heeft hardhouten kozijnen met HR++ beglazing.
Slaapkamer 3
Aan de achterzijde gelegen slaapkamer (2.59 x 2.04 m.) met tegelvloer en strak gestucte wand- en plafondafwerking.
Badkamer
Complete badkamer voorzien van tegels op vloer en wand. De badkamer is voorzien van douchecabine, hangcloset, bidet, en dubbele wastafel incl. meubel.
2e verdieping:
Middels vaste trap te bereiken volwaardige tweede woonlaag.
Slaapkamer 4
Momenteel is de tweede verdieping een open ruimte. Hier kan gemakkelijk een 4de en/of 5de slaapkamer gecreëerd worden.
De kamer (5.70 x 5.11 m.) is afgewerkt met neutrale vloertegels met vloerverwarming en heeft 2 Velux dakvenster voor extra lichtinval. Er is voldoende bergruimte achter de knieschotten.
Bergruimte/ technische ruimte
In de bergruimte bevindt zich de aansluiting t.b.v. het witgoedapparatuur, de warmtepompinstallatie, de WTW-installatie en de omvormer van de zonnepanelen.
LET OP! De woning heeft een energielabel A. Bij het aanvragen van een nieuw energielabel zal deze uitkomen op een A+++ (dit kan voordelen opleveren bij het aanvragen van een hypotheek).
Bijzonderheden:
· Instapklare en hoogwaardig afgewerkte tussenwoning;
· 130 m² woonoppervlakte;
· Energielabel A; (mogelijkheid opvragen label A+++)
· Bouwjaar: 2020;
· Moderne open keuken;
· 4 volwaardige slaapkamers;
· Verzorgde achtertuin op het westen;
· Privé parkeerplaats;
· 16 zonnepanelen;
· volledige vloerverwarming verwarmd of verkoeld door aardwarmtepomp;
· Perfecte bereikbaarheid richting High Tech Campus, Tu/E, ASML en de belangrijke uitvalswegen.
· Binnen 15 fietsminuten bent u midden in het centrum van Eindhoven;
· Aanvaarding op korte termijn mogelijk.
Kenmerken
Overdracht
- Laatste vraagprijs
- € 600.000 kosten koper
- Vraagprijs per m²
- € 4.615
- Status
- Verkocht
Bouw
- Soort woonhuis
- Eengezinswoning, tussenwoning
- Soort bouw
- Bestaande bouw
- Bouwjaar
- 2020
- Soort dak
- Zadeldak bedekt met pannen
Oppervlakten en inhoud
- Gebruiksoppervlakten
- Wonen
- 130 m²
- Gebouwgebonden buitenruimte
- 2 m²
- Externe bergruimte
- 20 m²
- Perceel
- 128 m²
- Inhoud
- 472 m³
Indeling
- Aantal kamers
- 5 kamers (4 slaapkamers)
- Aantal badkamers
- 1 badkamer en 1 apart toilet
- Badkamervoorzieningen
- Bidet, douche, dubbele wastafel, toilet, vloerverwarming, en wastafelmeubel
- Aantal woonlagen
- 3 woonlagen
- Voorzieningen
- Dakraam, glasvezelkabel, mechanische ventilatie, TV kabel, en zonnepanelen
Energie
- Energielabel
- A
- Isolatie
- Dakisolatie, dubbel glas, HR-glas, muurisolatie, vloerisolatie en volledig geïsoleerd
- Verwarming
- Warmtepomp
- Warm water
- Aardwarmte
Kadastrale gegevens
- TONGELRE E 4929
- Kadastrale kaart
- Oppervlakte
- 128 m²
- Eigendomssituatie
- Volle eigendom
Buitenruimte
- Ligging
- Aan rustige weg en in woonwijk
- Tuin
- Achtertuin en voortuin
- Achtertuin
- 27 m² (5,00 meter diep en 5,35 meter breed)
- Ligging tuin
- Gelegen op het westen bereikbaar via achterom
Bergruimte
- Schuur/berging
- Aangebouwde houten berging
- Voorzieningen
- Elektra
Parkeergelegenheid
- Soort parkeergelegenheid
- Op eigen terrein en openbaar parkeren
Foto's 45
© 2001-2025 funda












































