
BlikvangerRuime, uitgebouwde hoekwoning met vrijstaande garage en eigen oprit!
Omschrijving
Ruime, uitgebouwde hoekwoning met vrijstaande garage en eigen oprit met carport. De woning kent een ruime en lichte woonkamer, uitgebouwd aan de achterzijde. Er zijn 3 slaapkamers op de 1e verdieping. Voldoende bergruime op de bergzolder. In 2015 zijn de spouw en kruipruimte geïsoleerd en in omstreeks 2005 is het pannendak vernieuwd. In 2021 is het buiten schilderwerk vernieuwd.
De woning is gelegen in een vriendelijke buurt in de wijk Mensfort in stadsdeel Woensel. Alle gewenste voorzieningen zoals winkels, Winkelcentrum Woensel XL, ziekenhuis en scholen zijn op korte afstand gelegen. Uitvalswegen zijn ook snel en makkelijk bereikbaar evenals de natuur voor een fijne wandeling. Zoekt u een ruim huis met garage en parkeren op eigen terrein? Kom dan snel kijken!
INDELING:
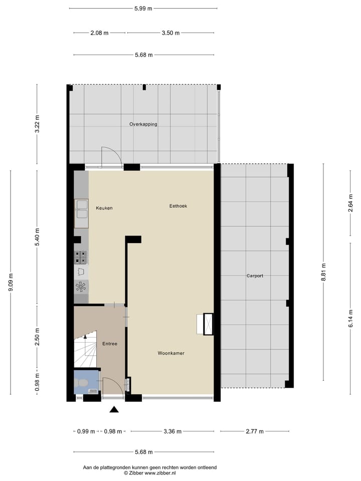
BEGANE GROND:
Entree met laminaat vloer, stucwerk wandafwerking en trapopgang naar de 1e verdieping. Meterkast met 3 groepen en 1 aardlekschakelaar. Volledig betegeld toilet met fonteintje. Uitgebouwde, lichte woonkamer met laminaat vloer, stucwerk wandafwerking en een fraaie, authentieke schouw met gashaard. Het raam aan de voorzijde is voorzien van een zonwering. Ook is er een airconditioning aanwezig.
Half open keuken aan de achterzijde, ook deze is uitgebouwd. De keuken is voorzien van dezelfde laminaat vloer als in de woonkamer, stucwerk wandafwerking en deur naar de achtertuin. De rechte keuken opstelling is voorzien van diverse inbouwapparatuur; gaskookplaat, afzuigkapen en een oven. Er is een aansluiting voor de vaatwasser aanwezig. Verder is de keukenopstelling voorzien van verschillende opberg/boven kastjes en lades. De aansluiting voor de wasmachine bevindt zich in de keuken.
1E VERDIEPING:
Overloop met tapijt vloer, stucwerk wandafwerking en toegang tot het luik met de vlizotrap. Slaapkamer 1 aan de achterzijde met vinyl vloer, airconditioning en een rolluik. Slaapkamer 2 aan de voorzijde met vinyl vloer en stucwerk wandafwerking. Slaapkamer 3 aan de achterzijde met vinyl vloer en rolluik.
Volledig betegelde badkamer aan de voorzijde met wastafel met meubel, decor radiator en douche.
BERGZOLDER:
Middels vlizotrap bereikbare zolder. Deze ruimte biedt veel bergruimte, ideaal voor bijvoorbeeld het opbergen van uw seizoensartikelen. Locatie CV ketel (Vaillant, 2021). Verder is er elektra aanwezig en een dakraam aan de achterzijde. Er is ook een mogelijkheid om een vaste trap naar de zolder te plaatsen en zo een 4e extra slaapkamer te creëren.
TUIN, BERGING & GARAGE:
De voortuin is voorzien van bestrating en borders met vaste beplanting en struikgewas. Eigen oprit met carport gelegen naast de woning. De oprit/carport is afsluitbaar middels een poort. De onderhoudsvriendelijke achtertuin is gelegen op het oosten en voorzien van bestrating, een veranda, een buitenkraantje, elektra punten en borders met vaste beplanting. Stenen berging achterin de tuin met elektra.
De garage bevindt zich in de achtertuin, in het verlengde van de oprit en tevens achterom. De garage is voorzien van elektra, water en verwarming.
ALGEMEEN:
- Ruime, uitgebouwde hoekwoning met vrijstaande garage en eigen oprit met carport.
- De woning is gelegen in een vriendelijke buurt in de wijk Mensfort in stadsdeel Woensel. Alle gewenste voorzieningen zoals winkels, Winkelcentrum Woensel XL, ziekenhuis en scholen zijn op korte afstand gelegen.
- In 2015 zijn de kruipruimte en de spouw geïsoleerd.
- In omstreeks 2005 zijn alle daken vernieuwd.
- In 2021 is de cv combiketel vervangen.
- Energielabel C.
- Woonoppervlakte 87m2.
- Inhoud 331m3.
- Bouwjaar 1962.
- Aanvaarding in overleg.
Kenmerken
Overdracht
- Aangeboden sinds
- Aanvaarding
- In overleg
- Vraagprijs
- € 409.500 kosten koper
- Vraagprijs per m²
- € 4.707
- Status
- Beschikbaar
Bouw
- Soort woonhuis
- Eengezinswoning, hoekwoning
- Soort bouw
- Bestaande bouw
- Bouwjaar
- 1962
- Soort dak
- Zadeldak bedekt met pannen
Oppervlakten en inhoud
- Gebruiksoppervlakten
- Wonen
- 87 m²
- Overige inpandige ruimte
- 6 m²
- Gebouwgebonden buitenruimte
- 44 m²
- Externe bergruimte
- 24 m²
- Perceel
- 222 m²
- Inhoud
- 331 m³
Indeling
- Aantal kamers
- 5 kamers (3 slaapkamers)
- Aantal badkamers
- 1 badkamer en 1 apart toilet
- Badkamervoorzieningen
- Douche, wastafel, en wastafelmeubel
- Aantal woonlagen
- 2 woonlagen en een zolder
- Voorzieningen
- Airconditioning, buitenzonwering, dakraam, glasvezelkabel, natuurlijke ventilatie, rolluiken, rookkanaal, en TV kabel
Energie
- Energielabel
- C
- Isolatie
- Gedeeltelijk dubbel glas, muurisolatie en vloerisolatie
- Verwarming
- Cv-ketel en open haard
- Warm water
- Cv-ketel
- Cv-ketel
- Vaillant (gas gestookt combiketel uit 2021, eigendom)
Kadastrale gegevens
- WOENSEL H 1031
- Kadastrale kaart
- Oppervlakte
- 222 m²
- Eigendomssituatie
- Volle eigendom
Buitenruimte
- Ligging
- Aan rustige weg en in woonwijk
- Tuin
- Achtertuin en voortuin
- Achtertuin
- 98 m² (11,50 meter diep en 8,50 meter breed)
- Ligging tuin
- Gelegen op het oosten bereikbaar via achterom
Bergruimte
- Schuur/berging
- Vrijstaande stenen berging
- Voorzieningen
- Elektra
Garage
- Soort garage
- Carport en vrijstaande stenen garage
- Capaciteit
- 1 auto
- Voorzieningen
- Elektra, verwarming en stromend water
Parkeergelegenheid
- Soort parkeergelegenheid
- Op eigen terrein en openbaar parkeren
Foto's 37
© 2001-2026 funda




































