
Omschrijving
Wij zijn voor deze woning op zoek naar de koper die in mogelijkheden kan denken en niet bang is om de handen uit de mouwen te steken.
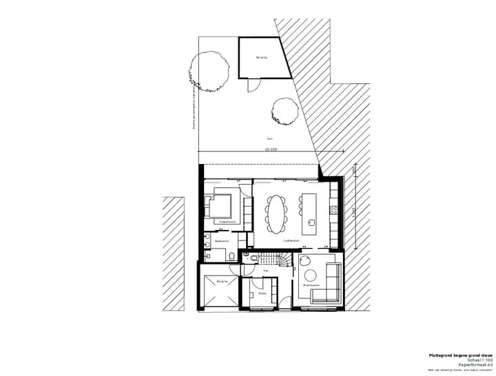
Verkoper heeft door een architect een plan laten uitwerken om de mogelijkheden van deze unieke woning te laten zien. De impressies van dit plan zijn bij de foto's opgenomen. In dit plan zijn ook een slaap- en badkamer op de begane grond opgenomen. Meer informatie inzake deze uitwerking zijn op te vragen bij ons kantoor.
Deze woning ligt op een geweldige en goed bereikbare locatie binnen de ring van Eindhoven, in de gewilde Irisbuurt.
Een authentieke jaren 30 stijl aan de buitenzijde, en veel potentie aan de binnenzijde waar het de nodige aandacht en liefde vraagt om geheel naar eigen smaak en niveau afgewerkt te worden.
Indeling:
Entree van de woning. Keuken aan de voorzijde van de woning met een eenvoudig keukenblok met enkele boven- en onderkasten en laden. Geiser voor warm water. De woonkamer is door middel van een aanbouw in 2 ruimten verdeeld, zowel aan de voor- als achterzijde van de woning. De aangebouwde badkamer bevindt zich op de begane grond, voorzien van inloopdouche, wastafel en toilet. Privacy biedende achtertuin gelegen op het zuidwesten met diverse beplanting. Achterin de tuin bevindt zich een stenen berging. Uniek aan deze woning is de grote (met roldeur afgesloten) carport aan de zijkant van de woning welke eenvoudig omgezet kan worden naar een garage of eventueel betrokken kan worden bij de woning.
Eerste verdieping:
Overloop met bergkast en toegang tot 3 slaapkamers (of 2 slaapkamers en 1 badkamer). De kamers zijn ruim van opzet en bieden grote ramen voor voldoende lichtinval.
Tweede verdieping:
Middels vlizotrap te bereiken grote open zolderruimte waar diverse vaste kasten zijn gerealiseerd en waar diverse ramen zorgen voor een natuurlijk lichtinval.
Bijzonderheden:
- Koper dient rekening te houden met moderniseringskosten;
- Fijne en privacy biedende achtertuin gelegen op het zuidwesten;
- Gelegen op de ideale locatie, in de Irisbuurt binnen de ring van Eindhoven;
- Unieke woning met veel mogelijkheden;
- Informatie inzake een reeds ontworpen plan is op te vragen bij ons kantoor;
- Aanvaarding in overleg.
Kenmerken
Overdracht
- Laatste vraagprijs
- € 475.000 kosten koper
- Vraagprijs per m²
- € 5.108
- Status
- Verkocht
Bouw
- Soort woonhuis
- Eengezinswoning, tussenwoning
- Soort bouw
- Bestaande bouw
- Bouwjaar
- 1931
- Soort dak
- Zadeldak bedekt met pannen
Oppervlakten en inhoud
- Gebruiksoppervlakten
- Wonen
- 93 m²
- Overige inpandige ruimte
- 23 m²
- Gebouwgebonden buitenruimte
- 22 m²
- Externe bergruimte
- 14 m²
- Perceel
- 180 m²
- Inhoud
- 412 m³
Indeling
- Aantal kamers
- 7 kamers (3 slaapkamers)
- Aantal badkamers
- 1 badkamer
- Badkamervoorzieningen
- Inloopdouche, toilet, en wastafel
- Aantal woonlagen
- 3 woonlagen
- Voorzieningen
- Natuurlijke ventilatie
Energie
- Energielabel
- G
- Isolatie
- Geen isolatie
- Verwarming
- Moederhaard
- Warm water
- Geiser
Kadastrale gegevens
- STRATUM E 5297
- Kadastrale kaart
- Oppervlakte
- 180 m²
- Eigendomssituatie
- Volle eigendom
Buitenruimte
- Ligging
- Aan rustige weg en in woonwijk
- Tuin
- Achtertuin
- Achtertuin
- 70 m² (10,00 meter diep en 7,00 meter breed)
- Ligging tuin
- Gelegen op het zuidwesten bereikbaar via achterom
Bergruimte
- Schuur/berging
- Vrijstaande stenen berging
Garage
- Soort garage
- Carport en garage mogelijk
Parkeergelegenheid
- Soort parkeergelegenheid
- Betaald parkeren
Foto's 48
© 2001-2025 funda















































