Dit huis op Funda: https://www.funda.nl/detail/koop/eindhoven/huis-humperdincklaan-3/43908867/

Omschrijving
Deze prachtig afgewerkte tussenwoning is vanaf 2021 compleet gestript en opnieuw opgebouwd, aangebouwd en verduurzaamd. Zeer luxe afgewerkt met o.a. vloerverwarming op de begane grond, een luxe open keuken, 4 slaapkamers, luxe badkamer/sanitair en een zeer diepe achtertuin welke prachtig is aangelegd, is gelegen op het zuidoosten en is voorzien van een overkapping en garage met eigen oprit.
Werkelijk instap klaar!
Kenmerken conform meetinstructie voor makelaars
Gebruiksoppervlakte: 140,00 m2
Overige inpandige ruimte: 0,00 m2
Gebouwgebonden buitenruimte: 1,00 m2
Externe bijgebouwen: 18,00 m2
Inhoud: 494,00 m3
Kadastrale gegevens
Gemeente: Gestel
Sectie: D
Nummer: 2200
Groot: 2 a 43 ca (243 m2)
Eigendomssituatie: Volledig eigendom
Algemeen/bijzonderheden
- In 2021 is de woning compleet gestript, opnieuw opgebouwd en gemoderniseerd (tot aan de riolering toe);
- Begane grond compleet voorzien van vloerverwarming als hoofdverwarming;
- Luxe afgewerkt met pvc-vloeren in Hongaarse punt op de begane grond en planken motief op de verdiepingen;
- Luxe afgewerkt gelet op de keuken, badkamer en sanitair;
- Energielabel A;
- 10 zonnepanelen;
- Airconditioning welke eveneens kan verwarmen aanwezig op de tweede verdieping;
- Alle kozijnen zijn in 2021 vervangen voor nieuwe houten kozijnen met hr++ beglazing;
- Woning brede dakkapel van kunststof is in 2021 geplaats;
- In 2024 was het jaarlijkse verbruik: Elektra: 1.180 kWh | Gas: 650 m3 | Water: 130 m3, waarbij de huidige maandelijkse energiekosten € 80 euro voor gas en elektra samen betreft en € 13 euro voor water betreft;
- 4 slaapkamers;
- 1 badkamer: voorzien van een wastafel in badkamermeubel, design radiator, wandcloset, ruime inloopdouche met rainshower en een losse handdouche en een groot ligbad;
- CV-ketel: Vaillant uit 2018;
- Aanvaarding in overleg, op kort termijn mogelijk.
Ligging
De woning is gelegen aan de ring van Eindhoven in stadsdeel Gestel nabij het gezellige Franz Leharplein. Een gewilde locatie voor jonge starters/gezinnen, gezien de afstand tot voorzieningen.
Binnen ca. 5 tot 10 fietsminuten zijn namelijk alle gewenste voorzieningen bereikbaar: winkels, scholen, natuur, uitstekende horeca als onder meer Zarzo (3) of één van de vele terrasjes op de Kleine Berg.
Daarnaast zijn er voor zowel de auto als de fiets goede verbindingswegen naar het Maxima Medisch Centrum, ASML, High Tech Campus en de A2/A67.
Met het openbaar vervoer is de woning ook een goede uitvalsbasis naar Veldhoven, Centraal Station Eindhoven en o.a. Eindhoven Airport.
Tegenover de woning komt nieuwbouw. Inzake deze nieuwbouw is er in het move portaal documentatie aanwezig hoe dit is geregeld inzake ook de groenstrook voor de woning welke als scheiding zal dienen. Daarbij betreft het concept open tuinen, waardoor er veel groene voorzieningen bij zullen komen. Eventuele vragen hierover kunt u ook altijd aan de makelaar stellen.
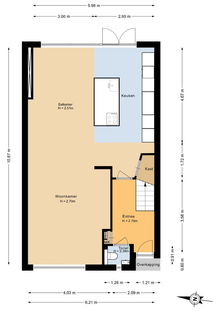
Indeling
Begane grond
Vanuit de ruime entree met prachtige trapopgang, is er toegang tot het luxe toilet met wandcloset en fontein, meterkast en de woonkamer via een glazendeur. Daarbij is de gehele begane grond voorzien van vloerverwarming met een pvc-vloer in Hongaarse punt.
De sfeervolle woonkamer beschikt over veel natuurlijk licht inval dankzij een groot raam aan de voorzijde en een woning brede pui aan de achterzijde met dubbele openslaande tuindeuren.
De moderne open keuken is in 2021 compleet vernieuwd en voorzien van diverse inbouwapparatuur als een oven, een combi magnetron, koel-/vriescombinatie, inductie kookplaat met geïntegreerde afzuiging, vaatwasser en bar-opstelling.
Tot slot is er toegang tot de trapkast met opstelling van de vloerverwarmingsunit en genoeg ruimte voor extra opslag.
Eerste verdieping
Via de overloop is er toegang tot 3 ruime slaapkamers (waarbij één slaapkamer nu in gebruik is als walk-in-closet, maar prima kan fungeren als een volwaardige slaapkamer) en de luxe badkamer (2021) welke modern is afgewerkt en voorzien is van een wastafel in badkamermeubel, ruime inloopdouche met rainshower en een losse handdouche, wandcloset en groot ligbad. Via een vaste trapopgang is er vervolgens toegang tot de tweede verdieping.
Tweede verdieping
De gehele tweede verdieping is nu in gebruik als masterbedroom en voorzien van een woning brede dakkapel en airco welke tevens kan verwarmen. Aan weerszijde van de trapopgang zijn grote kasten gemaakt met aan één kant de opstelling van de wasapparatuur en aan de andere kant de opstelling van de cv-ketel (Vaillant uit 2018).
Kenmerken
Overdracht
- Laatste vraagprijs
- € 625.000 kosten koper
- Vraagprijs per m²
- € 4.464
- Status
- Verkocht
Bouw
- Soort woonhuis
- Eengezinswoning, tussenwoning
- Soort bouw
- Bestaande bouw
- Bouwjaar
- 1959
- Soort dak
- Zadeldak bedekt met pannen
Oppervlakten en inhoud
- Gebruiksoppervlakten
- Wonen
- 140 m²
- Gebouwgebonden buitenruimte
- 1 m²
- Externe bergruimte
- 18 m²
- Perceel
- 243 m²
- Inhoud
- 494 m³
Indeling
- Aantal kamers
- 5 kamers (4 slaapkamers)
- Aantal badkamers
- 1 badkamer en 1 apart toilet
- Badkamervoorzieningen
- Inloopdouche, ligbad, toilet, wastafel, en wastafelmeubel
- Aantal woonlagen
- 3 woonlagen
- Voorzieningen
- Airconditioning, glasvezelkabel, mechanische ventilatie, natuurlijke ventilatie, rolluiken, TV kabel, en zonnepanelen
Energie
- Energielabel
- Isolatie
- Dakisolatie, HR-glas, muurisolatie en vloerisolatie
- Verwarming
- Cv-ketel
- Warm water
- Cv-ketel
- Cv-ketel
- Vaillant (gas gestookt combiketel uit 2018, eigendom)
Kadastrale gegevens
- GESTEL D 2200
- Kadastrale kaart
- Oppervlakte
- 243 m²
- Eigendomssituatie
- Volle eigendom
Buitenruimte
- Ligging
- Aan rustige weg en in woonwijk
- Tuin
- Achtertuin en voortuin
- Achtertuin
- 95 m² (13,93 meter diep en 6,81 meter breed)
- Ligging tuin
- Gelegen op het zuidoosten bereikbaar via achterom
Garage
- Soort garage
- Vrijstaande stenen garage
- Capaciteit
- 1 auto
- Voorzieningen
- Elektrische deur en elektra
- Isolatie
- Geen isolatie
Parkeergelegenheid
- Soort parkeergelegenheid
- Op eigen terrein en openbaar parkeren
Foto's 50
© 2001-2026 funda

















































