Dit huis op Funda: https://www.funda.nl/detail/koop/eindhoven/huis-morsestraat-13/43867397/

Omschrijving
DHVC biedt aan: Morsestraat 13 in Eindhoven!
Op zoek naar een woning met potentie waar je jouw eigen stempel kunt drukken? Deze eengezinswoning aan de Morsestraat 13 in Eindhoven biedt een geweldige kans voor de handige doe-het-zelver of een koper die niet bang is om te klussen. Gelegen in een rustige en kindvriendelijke buurt, biedt deze woning veel ruimte en mogelijkheden om het om te toveren tot een prachtig thuis.
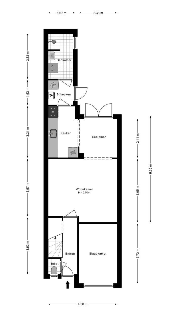
Indeling
De woning beschikt over een ruime woonkamer die dankzij de grote ramen veel lichtinval biedt. De open indeling biedt tal van mogelijkheden om het interieur naar eigen wens in te richten. De keuken is eenvoudig, maar biedt voldoende ruimte voor een nieuwe keukenopstelling die volledig aan jouw wensen voldoet.
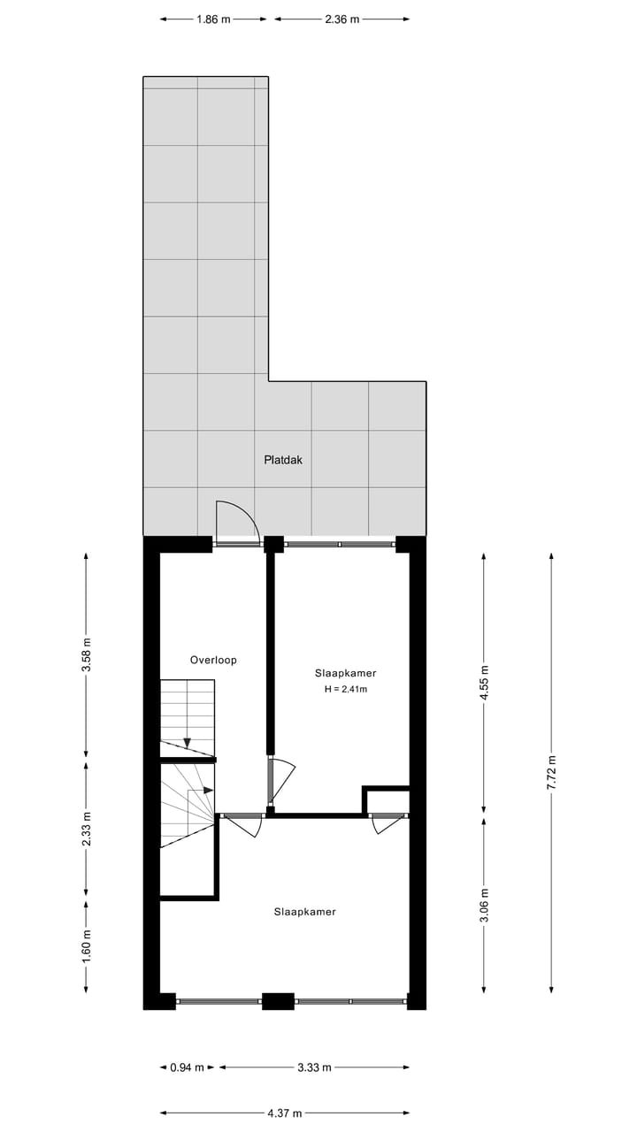
Op de eerste verdieping bevinden zich drie slaapkamers, die allen veel potentie hebben, maar wel een opfrisbeurt kunnen gebruiken. De badkamer is functioneel, maar verouderd en kan een moderne renovatie gebruiken om de woning het comfort van deze tijd te geven.
Tuin
De achtertuin is redelijk onderhouden, maar ook hier is wat werk nodig om het een uitnodigende plek te maken voor ontspanning. Met de juiste aanpassingen kan het een heerlijke buitenruimte worden voor de zomerse dagen.
Locatie
De Morsestraat ligt in een rustige, kindvriendelijke buurt met veel groen en goede voorzieningen. Je bevindt je op slechts een paar minuten afstand van het centrum van Eindhoven, waar je volop kunt genieten van winkels, restaurants en culturele activiteiten. Ook zijn de belangrijkste uitvalswegen goed bereikbaar, wat de locatie extra aantrekkelijk maakt.
Samenvatting
Deze woning aan de Morsestraat is de ideale kans voor iemand die een woning zoekt om naar eigen smaak op te knappen en te verbouwen. Met een beetje visie en het juiste werk kun je hier een schitterend thuis van maken. Ben jij de handige koper die deze woning weer in zijn volle glorie wil herstellen? Neem contact op voor een bezichtiging en ontdek het potentieel!
Kenmerken
Overdracht
- Laatste vraagprijs
- € 325.000 kosten koper
- Vraagprijs per m²
- € 3.125
- Status
- Verkocht
Bouw
- Soort woonhuis
- Eengezinswoning, tussenwoning
- Soort bouw
- Bestaande bouw
- Bouwjaar
- 1930
- Soort dak
- Zadeldak bedekt met pannen
Oppervlakten en inhoud
- Gebruiksoppervlakten
- Wonen
- 104 m²
- Externe bergruimte
- 5 m²
- Perceel
- 99 m²
- Inhoud
- 357 m³
Indeling
- Aantal kamers
- 5 kamers (4 slaapkamers)
- Aantal badkamers
- 1 badkamer en 1 apart toilet
- Badkamervoorzieningen
- Douche en wastafel
- Aantal woonlagen
- 3 woonlagen
Energie
- Energielabel
Kadastrale gegevens
- WOENSEL G 553
- Kadastrale kaart
- Oppervlakte
- 99 m²
- Eigendomssituatie
- Volle eigendom
Buitenruimte
- Tuin
- Achtertuin en voortuin
- Achtertuin
- 25 m² (10,00 meter diep en 2,50 meter breed)
- Ligging tuin
- Gelegen op het noorden
- Balkon/dakterras
- Dakterras aanwezig
Bergruimte
- Schuur/berging
- Vrijstaande stenen berging
Parkeergelegenheid
- Soort parkeergelegenheid
- Openbaar parkeren
Foto's 38
© 2001-2026 funda





































