Dit huis op Funda: https://www.funda.nl/detail/koop/elburg/huis-het-straatje-1/43876874/

Omschrijving
In de buurtschap Oostendorp wordt aangeboden een Vrijstaand Woonhuis met uitzicht op “Molen De Tijd”.
De woning is gebouwd in 1939 en gelegen op een mooi perceel van 573 m². De tuin is aangelegd met diverse beplanting, biedt privacy en is een fijne plek om te genieten van het buitenzijn. Rechts naast de woning is er een ruime oprit waar meerdere auto’s geparkeerd kunnen worden. Achter in de tuin bevindt zich de garage.
Het woonhuis zal hier en daar gemoderniseerd moeten worden en ook op het gebied van duurzaamheid is nog het een en andere te behalen.
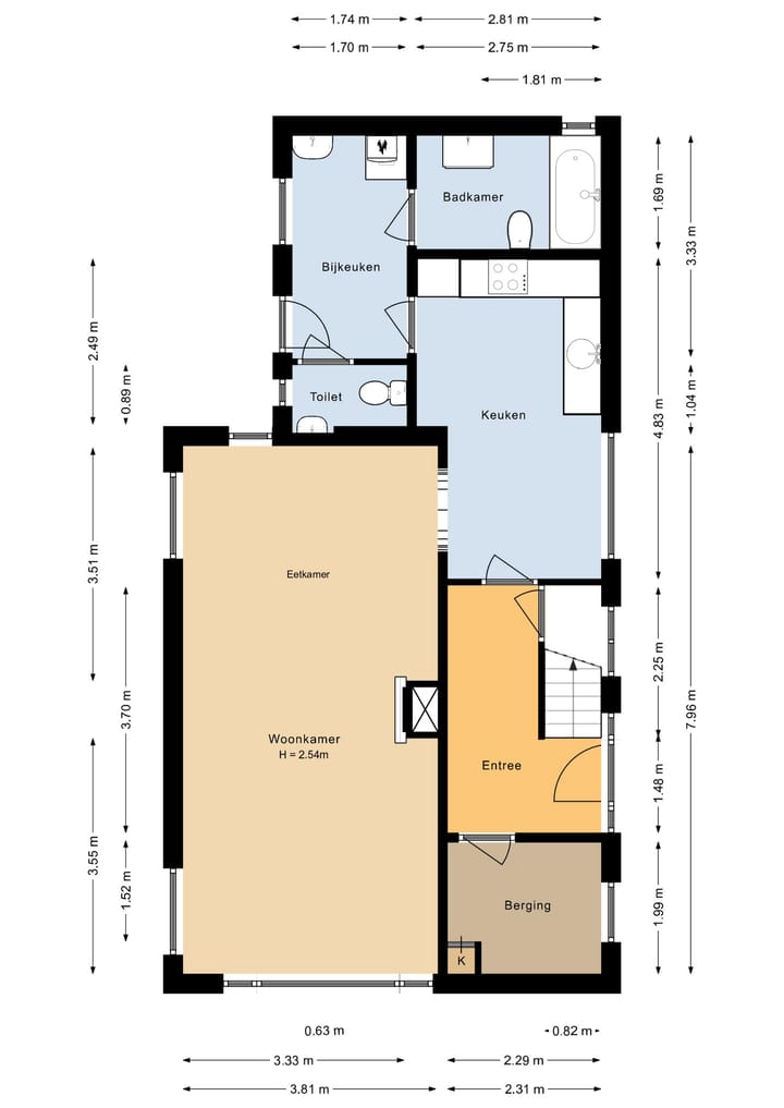
Begane grond:
Via de authentieke halfronde voordeur, omlijst met glas in loodramen, komt in de hal. De woonkamer is aan de voorzijde van de woning gelegen en voorzien van een schouw met openhaard. De ruime keuken met L-vormige keukenblok is voorzien van diverse inbouwapparatuur. Aansluitend de bijkeuken en badkamer. In de bijkeuken is de opstelling van de Cv-ketel en de aansluiting voor de wasmachine. De badkamer beschikt over een ligbad met douchegelegenheid, wastafelmeubel en bidet. De toiletruimte is bereikbaar vanuit de bijkeuken.
Verdieping:
Overloop met toegang tot drie slaapkamers. Alle slaapkamers zijn voorzien van vaste kastruimte.
Vliering:
Middels vlizotrap te bereiken bergzolder.
Kenmerken
Overdracht
- Laatste vraagprijs
- € 495.000 kosten koper
- Vraagprijs per m²
- € 4.459
- Status
- Verkocht
Bouw
- Soort woonhuis
- Eengezinswoning, vrijstaande woning
- Soort bouw
- Bestaande bouw
- Bouwjaar
- 1939
- Soort dak
- Zadeldak bedekt met pannen
Oppervlakten en inhoud
- Gebruiksoppervlakten
- Wonen
- 111 m²
- Overige inpandige ruimte
- 19 m²
- Externe bergruimte
- 24 m²
- Perceel
- 573 m²
- Inhoud
- 480 m³
Indeling
- Aantal kamers
- 4 kamers (3 slaapkamers)
- Aantal badkamers
- 1 badkamer en 1 apart toilet
- Badkamervoorzieningen
- Bidet, ligbad, en wastafelmeubel
- Aantal woonlagen
- 2 woonlagen, een vliering, en een kelder
- Voorzieningen
- Natuurlijke ventilatie
Energie
- Energielabel
- G
- Isolatie
- Gedeeltelijk dubbel glas
- Verwarming
- Cv-ketel
- Warm water
- Cv-ketel
- Cv-ketel
- HR Combi 32 V (gas gestookt combiketel uit 2000, eigendom)
Kadastrale gegevens
- ELBURG C 4346
- Kadastrale kaart
- Oppervlakte
- 573 m²
- Eigendomssituatie
- Volle eigendom
Buitenruimte
- Ligging
- Aan rustige weg, beschutte ligging en in woonwijk
- Tuin
- Achtertuin, voortuin en zijtuin
- Achtertuin
- 240 m² (24,00 meter diep en 10,00 meter breed)
- Ligging tuin
- Gelegen op het noorden
Garage
- Soort garage
- Vrijstaande stenen garage
- Capaciteit
- 1 auto
Parkeergelegenheid
- Soort parkeergelegenheid
- Op eigen terrein
Foto's 33
© 2001-2025 funda
































