Dit huis op Funda: https://www.funda.nl/detail/koop/elburg/huis-molendijkjes-44/43903663/

Omschrijving
Stijlvolle, duurzame hoekwoning in de gewilde woonwijk “De Dijkjes” – Elburg.
Op zoek naar een moderne, instapklare woning op een rustige en kindvriendelijke locatie? Deze jonge duurzame hoekwoning, gelegen aan de rand van de populaire nieuwbouwwijk “De Dijkjes” in Elburg, combineert hoogwaardige afwerking met comfort en duurzaamheid.
De woning is gesitueerd aan een rustige straat en beschikt over een hoge mate van afwerking. Strak gestuukte wanden, moderne vloerafwerking en onderhoudsarme kunststof kozijnen zorgen voor een eigentijdse uitstraling én lage onderhoudskosten.
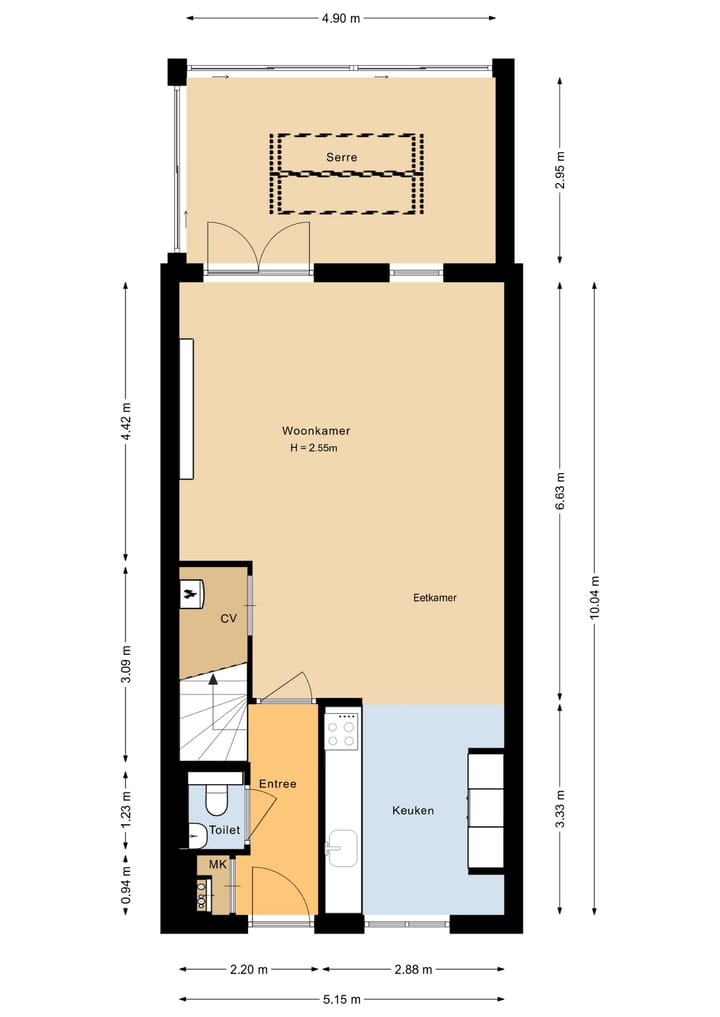
Achter de woning bevindt zich een prachtige houten serre met extra lichtinval – een sfeervolle verlenging van de leefruimte waar binnen en buiten naadloos in elkaar overlopen.
Begane grond:
Entree met meterkast, trapopgang naar de verdieping en toegang tot de toiletruimte. Sfeervolle tuingerichte woonkamer met openslaande deuren naar de volledig afsluitbare serre. De open keuken in moderne stijl is uitgerust met een recht blok aan één zijde voorzien van een natuurstenen aanrechtblad, kookplaat, afzuigkap en vaatwasser, aan de andere zijde bevindt zich een kastenwand met koelkast en combi-oven/magnetron. De wanden en plafonds van de woonkamer en keuken zijn strak gestukt en v.v. inbouwverlichting en de vloer is een mooie pvc-vloer met vloerverwarming.
Verdieping:
Overloop. Drie fijne slaapkamers, waarbij de ouderslaapkamer aan de achterzijde b is voorzien van een vaste kastenwand. Geheel betegelde moderne badkamer met inloopdouche, wastafelmeubel en 2e toilet.
Zolder:
Grote open zolderruimte met dakraam en de aansluiting voor de wasmachine en droger. Deze ruimte biedt de mogelijkheid om 1 of 2 extra slaap-/hobbykamers te realiseren. De technische ruimte zit in een afzonderlijke kast
.
Pluspunten van deze woning:
• Duurzame, jonge hoekwoning in gewilde woonwijk
• Rustige ligging aan de rand van de wijk
• Hoogwaardige afwerking met strakke wanden en moderne materialen
• Onderhoudsvriendelijke kunststof kozijnen
• Woonoppervlak 97 m²
• Perceeloppervlakte 195 m²
• Fraaie houten serre direct aan de achterzijde met extra licht en ruimte
• 15 zonnepanelen aanwezig.
• Energielabel A +++ (hierdoor extra, lage rente en hoger leencapaciteit)
Deze woning biedt alles wat u mag verwachten van comfortabel en energiezuinig wonen in een fijne, jonge buurt.
Een woning waar u zó in kunt! Nieuwsgierig geworden? Neem contact met ons op voor een bezichtiging en laat u verrassen door de ruimte, het comfort en de kwaliteit.
Aanvaarding in overleg
Kenmerken
Overdracht
- Laatste vraagprijs
- € 525.000 kosten koper
- Vraagprijs per m²
- € 5.412
- Status
- Verkocht
Bouw
- Soort woonhuis
- Eengezinswoning, hoekwoning (dijkwoning)
- Soort bouw
- Bestaande bouw
- Bouwjaar
- 2020
- Soort dak
- Zadeldak bedekt met pannen
Oppervlakten en inhoud
- Gebruiksoppervlakten
- Wonen
- 97 m²
- Overige inpandige ruimte
- 28 m²
- Gebouwgebonden buitenruimte
- 15 m²
- Externe bergruimte
- 6 m²
- Perceel
- 195 m²
- Inhoud
- 518 m³
Indeling
- Aantal kamers
- 4 kamers (3 slaapkamers)
- Aantal badkamers
- 1 badkamer en 1 apart toilet
- Badkamervoorzieningen
- Douche, toilet, en wastafelmeubel
- Aantal woonlagen
- 2 woonlagen en een zolder
- Voorzieningen
- Glasvezelkabel, mechanische ventilatie, rolluiken, en zonnepanelen
Energie
- Energielabel
- A
- Isolatie
- Volledig geïsoleerd
- Verwarming
- Gedeeltelijke vloerverwarming, warmte terugwininstallatie en warmtepomp
- Warm water
- Doorstroomboiler
Kadastrale gegevens
- ELBURG E 791
- Kadastrale kaart
- Oppervlakte
- 195 m²
- Eigendomssituatie
- Volle eigendom
Buitenruimte
- Ligging
- Aan rustige weg en in woonwijk
- Tuin
- Achtertuin, voortuin en zijtuin
- Achtertuin
- 48 m² (8,00 meter diep en 6,00 meter breed)
- Ligging tuin
- Gelegen op het oosten
Bergruimte
- Schuur/berging
- Vrijstaande houten berging
- Voorzieningen
- Elektra
Parkeergelegenheid
- Soort parkeergelegenheid
- Openbaar parkeren
Foto's 40
© 2001-2025 funda







































