
Rijksweg-Noord 1-3EV6661 KA Elst (GE)Elst Centrum Noordzijde
€ 275.000 k.k.
Omschrijving
In het centrum van Elst gelegen goed onderhouden 2-kamerappartement met groot gemeenschappelijk dakterras en een inpandige berging op de begane grond. Dit appartement is gelegen op de derde verdieping (bovenste woonlaag) en heeft een vrij uitzicht.
Een uitstekende kans om in het hart van Elst te gaan wonen. Deze woning komt bovendien in aanmerking voor het verkrijgen van een starterslening.
Alle benodigde woonvoorzieningen en uitstekende bus- en treinverbindingen (t.w. NS-station Elst) zijn op korte afstand bereikbaar. Ook uitvalswegen zoals A-15, A-50 en A-325 zijn binnen een paar autominuten bereikbaar. Vanzelfsprekend is ook het bruisende centrum van Elst met al haar horeca- en winkelvoorzieningen op steenworp afstand gelegen.
Bouwjaar: 1983. Woonoppervlakte: 49m². Externe bergruimte: 4m².
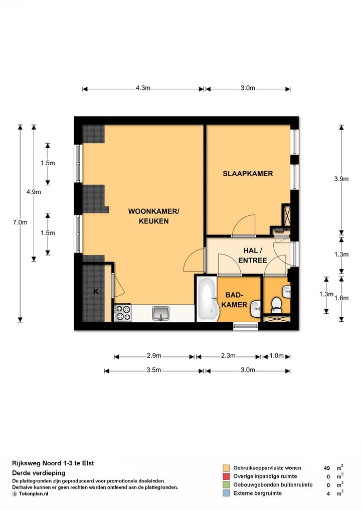
Indeling
Begane grond:
gemeenschappelijke entree met brievenbussen en belportaal. Via trappenhuis naar...
3e verdieping / appartementsindeling:
entree, hal met meterkast en verzorgd toilet met fonteintje, keurige badkamer met wastafel en duo-bad (waarin douche met glazen wand), vanaf de hal is er tevens toegang tot de gezellige leefruimte met woonkamer welke is voorzien van twee dakkapellen, eethoek, provisiekast en open keuken met moderne inbouwkeuken v.v. inbouwapparatuur t.w. een afzuigkap, 4-pits gaskookplaat, koelkast, combi-oven en vaatwasser. Het appartement kenmerkt zich door de goede daglichttoetreding.
Algemeen:
- energielabel C
- goed onderhouden
- starterslening mogelijk
- alle raamdecoratie blijft achter
- gemeenschappelijk zonnig dakterras
- gelegen op goede locatie, in centrum
- actieve V.v.E., maandelijkse bijdrage á € 120,-
- cv-ketel Remeha Tzerra uit 2017, in eigendom
- ideale airco in woonkamer uit 2017, in eigendom (verwarmen en koelen)
Aanvaarding: in overleg.
Neem gerust contact op met ons kantoor voor een bezichtiging. Je bent van harte welkom!
Kenmerken
Overdracht
- Aangeboden sinds
- Aanvaarding
- In overleg
- Vraagprijs
- € 275.000 kosten koper
- Vraagprijs per m²
- € 5.612
- Status
- Beschikbaar
- Bijdrage VvE
- € 120,00 per maand
Bouw
- Soort appartement
- Portiekflat (appartement)
- Soort bouw
- Bestaande bouw
- Bouwjaar
- 1983
- Specifiek
- Gedeeltelijk gestoffeerd
- Soort dak
- Samengesteld dak bedekt met bitumineuze dakbedekking en pannen
Oppervlakten en inhoud
- Gebruiksoppervlakten
- Wonen
- 49 m²
- Externe bergruimte
- 4 m²
- Inhoud
- 155 m³
Indeling
- Aantal kamers
- 2 kamers (1 slaapkamer)
- Aantal badkamers
- 1 apart toilet
- Aantal woonlagen
- 1 woonlaag
- Voorzieningen
- Glasvezelkabel, mechanische ventilatie, en TV kabel
- Gelegen op
- 3e woonlaag
Energie
- Energielabel
- C
- Isolatie
- Dakisolatie, dubbel glas en muurisolatie
- Verwarming
- Cv-ketel
- Warm water
- Cv-ketel
- Cv-ketel
- Remeha Tzerra Plus (gas gestookt combiketel uit 2017, eigendom)
Kadastrale gegevens
- ELST K 2981
- Kadastrale kaart
- Eigendomssituatie
- Volle eigendom
- ELST K 2981
- Kadastrale kaart
- Eigendomssituatie
- Volle eigendom
Buitenruimte
- Ligging
- In centrum
Parkeergelegenheid
- Soort parkeergelegenheid
- Openbaar parkeren
VvE checklist
- Inschrijving KvK
- Ja
- Jaarlijkse vergadering
- Ja
- Periodieke bijdrage
- Ja (€ 120,00 per maand)
- Reservefonds aanwezig
- Ja
- Onderhoudsplan
- Nee
- Opstalverzekering
- Ja
Foto's 26
© 2001-2025 funda

























