Dit huis op Funda: https://www.funda.nl/detail/koop/emmen/huis-druwerbrink-384/43058535/

Omschrijving
Ruime eengezinswoning in het prachtig gelegen Bargeres, Emmen.
Ben je op zoek naar een eindwoning met veel woonruimte en een fijne tuin op het zuiden? Dan is deze woning in Emmen misschien wat voor jou! Met maar liefst vier slaapkamers, een ruime woonkamer met open keuken en een praktische bijkeuken biedt deze woning de ideale mogelijkheid voor starters en gezinnen.
INDELING
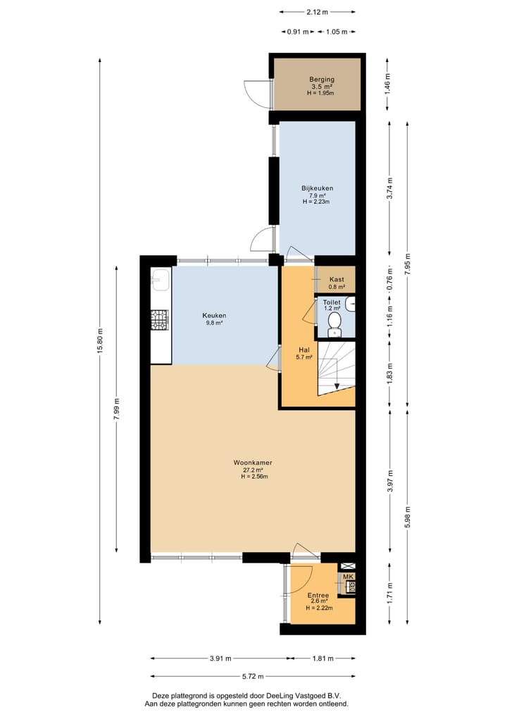
Begane grond: de entree biedt toegang tot de ruime woonkamer met open keuken van circa 37 m² en grote raampartijen die zorgen voor veel natuurlijke lichtinval. De open keuken is voorzien van een 4 pits gaskookplaat, oven, afzuigkap, koelkast en vriezer. De aansluitende hal biedt verder toegang tot de trapopgang, trapkast, toilet met fonteintje en aansluitend de bijkeuken van circa 8 m² met openslaande deur naar de achtertuin. De achtertuin op het zuiden biedt de ideale mogelijkheid om de gehele dag te genieten.
Eerste verdieping: op de eerste verdieping bevinden zich drie slaapkamers en de badkamer. De grootste slaapkamer bevindt zich aan de voorzijde (circa 16 m²) samen met een andere ruime kinderkamer (circa 9 m²). Aan de achterzijde bevindt zich een tweede ruime kinderkamer (circa 10 m²) en de badkamer voorzien van douche, toilet en wastafel.
Tweede verdieping: op de tweede verdieping bevindt zich nog een vierde slaapkamer van circa 14 m². De separate technische ruimte is gebruikt voor de opstelling van de CV ketel, tevens is op deze verdieping ook extra bergruimte aanwezig onder de schuine kanten van het dak.
OMGEVING
De Druwerbrink is gelegen in een gunstige woonwijk dichtbij het bruisende centrum van Emmen, ca. 5 minuten fietsafstand. Het centrum beschikt over een divers winkelaanbod en natuurlijk de publiekstrekker Wildlands. Ook bevinden zijn er supermarkten, basisscholen en sportgelegenheden op korte afstand te vinden, tevens is aan de rand van de wijk het Noordbargerbos gelegen met wandel- en fietsroutes.
KORTOM
Wil jij deze ideale eengezinswoning niet laten lopen? Neem dan snel contact op voor een bezichtiging!!
BIJZONDERHEDEN
- Ruime eengezinswoning
- Energielabel C
- CV- ketel uit 2020
- Gedeeltelijk voorzien van kunststof kozijnen
- Ruime bijkeuken
- Tuin op het zuiden
- Dichtbij het centrum van Emmen
Kenmerken
Overdracht
- Laatste vraagprijs
- € 250.000 kosten koper
- Vraagprijs per m²
- € 1.969
- Status
- Verkocht
Bouw
- Soort woonhuis
- Eengezinswoning, eindwoning
- Soort bouw
- Bestaande bouw
- Bouwjaar
- 1980
- Soort dak
- Zadeldak bedekt met pannen
Oppervlakten en inhoud
- Gebruiksoppervlakten
- Wonen
- 127 m²
- Overige inpandige ruimte
- 4 m²
- Perceel
- 163 m²
- Inhoud
- 460 m³
Indeling
- Aantal kamers
- 5 kamers (4 slaapkamers)
- Aantal badkamers
- 1 badkamer en 1 apart toilet
- Badkamervoorzieningen
- Douche, toilet, wastafel, en wastafelmeubel
- Aantal woonlagen
- 3 woonlagen
Energie
- Energielabel
- Isolatie
- Gedeeltelijk dubbel glas, muurisolatie en vloerisolatie
- Verwarming
- Cv-ketel
- Warm water
- Cv-ketel
- Cv-ketel
- 2020, eigendom
Kadastrale gegevens
- EMMEN W 1068
- Kadastrale kaart
- Oppervlakte
- 163 m²
- Eigendomssituatie
- Volle eigendom
Buitenruimte
- Tuin
- Achtertuin en voortuin
- Achtertuin
- 66 m² (0,11 meter diep en 0,06 meter breed)
- Ligging tuin
- Gelegen op het zuiden
Bergruimte
- Schuur/berging
- Aangebouwde houten berging
Parkeergelegenheid
- Soort parkeergelegenheid
- Openbaar parkeren
Foto's 67
© 2001-2026 funda


































































