Dit huis op Funda: https://www.funda.nl/detail/koop/emmen/huis-jonkershof-3/43033639/

Omschrijving
Wat een heerlijke plek om te wonen!
Dè kans om dit huis en deze plek de jouwe te maken.
Deze uitgebouwde twee onder één kap met vrijstaande garage is gelegen op korte afstand van het centrum van Emmen. Hier vind je de rust van een ruim opgezette woonwijk, terwijl ook voorzieningen als het gezellige winkelcentrum, de uitgestrekte bossen van de Emmerdennen, het station, kinderopvang en scholen, het ziekenhuis enzovoort allemaal direct om de hoek liggen.
De woning is degelijk gebouwd, goed onderhouden en heeft meer dan voldoende mogelijkheden om uit te breiden en aan te passen naar jouw wensen.
Verder is de woning deels voorzien van kunststof kozijnen, bijna geheel voorzien van HR en HR++ beglazing, een nieuwe CV ketel, airco en 8 zonnepanelen.
Zowel de vloeren, gevels als het dak zijn geïsoleerd.
De besloten en zonnige achtertuin geeft veel privacy. De garage en schuur combinatie biedt goede mogelijkheden voor hobby en stalling.
Indeling:
Begane grond: hal/entree, meterkast, toilet, kelder en trapopgang. Vanuit de hal kom je in de lichte en ruime woonkamer. De kamer heeft een open verbinding naar de keuken en de aangebouwde serre met schuifpui. De keuken is voorzien van een inbouwkeuken in hoekopstelling. Door de uitbouw is de benedenverdieping dus heel praktisch geworden en is er een aparte eetkamer gerealiseerd.
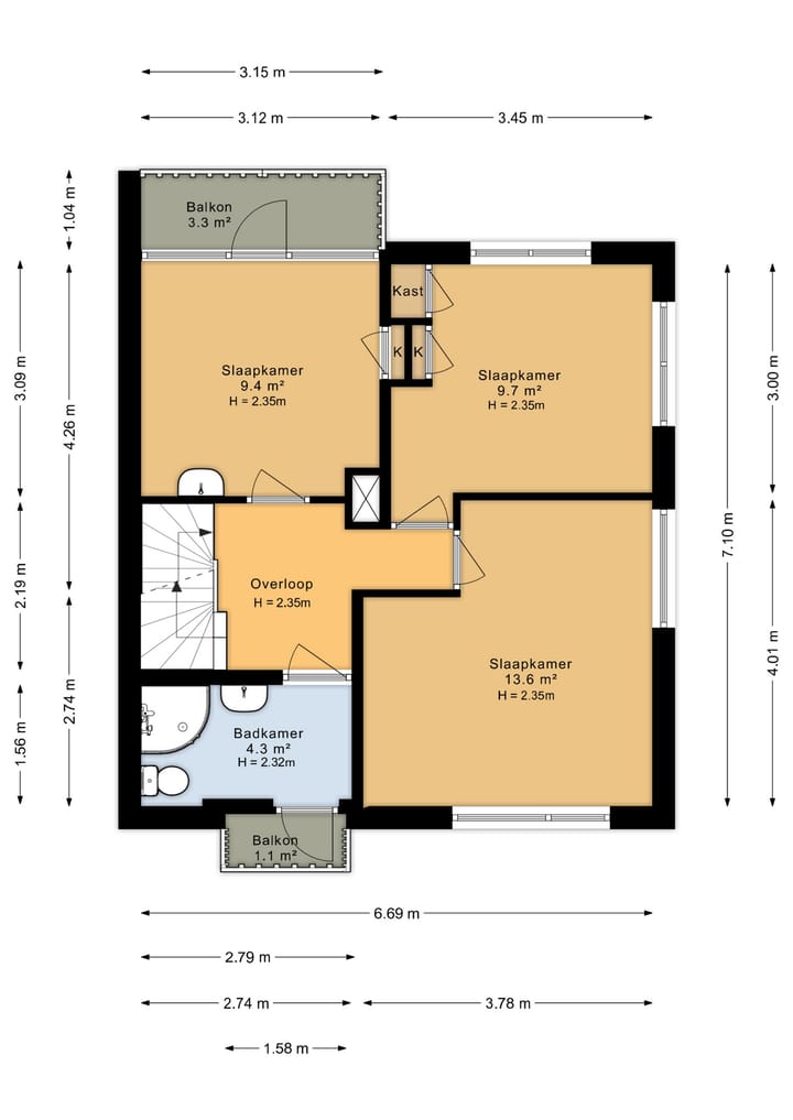
Eerste verdieping: overloop met toegang tot 3 ruime slaapkamers waarvan er 1 is voorzien van een balkon. Door de aanwezigheid van inbouwkasten is er veel bergruimte. Op deze verdieping is ook de badkamer die voorzien is van een douchecabine, wastafel en tweede toilet.
Tweede verdieping: middels vaste trap bereikbare zolderverdieping met de 4e slaapkamer en een separate berging.
De garage is vrijstaand, verwarmd en heeft een aparte fietsenberging/werkplaats.
Zoals gezegd is de tuin heerlijk besloten en biedt veel privacy, waarin zowel de zon als de schaduw goed te vinden zijn. Door de ruime opzet is er een een grote oprit en kun je met gemak de auto(s) op eigen erf parkeren.
Kortom; een super praktische woning met verrassend veel binnenruimte, gelegen op een daalderse plek, goed onderhouden en eventueel op korte termijn te aanvaarden.
Bijzonderheden: Voorzien van een houtkachel in de woonkamer, geheel voorzien van zonwering, nieuwe CV ketel (2025), airco in de ouderslaapkamer (2023) en zonnepanelen (2022) op het dak van de garage!
Kenmerken
Overdracht
- Laatste vraagprijs
- € 355.000 kosten koper
- Vraagprijs per m²
- € 2.958
- Status
- Verkocht
Bouw
- Soort woonhuis
- Eengezinswoning, 2-onder-1-kapwoning
- Soort bouw
- Bestaande bouw
- Bouwjaar
- 1964
- Specifiek
- Gedeeltelijk gestoffeerd
- Soort dak
- Zadeldak bedekt met pannen
Oppervlakten en inhoud
- Gebruiksoppervlakten
- Wonen
- 120 m²
- Gebouwgebonden buitenruimte
- 5 m²
- Externe bergruimte
- 24 m²
- Perceel
- 309 m²
- Inhoud
- 414 m³
Indeling
- Aantal kamers
- 5 kamers (4 slaapkamers)
- Aantal badkamers
- 1 badkamer en 1 apart toilet
- Badkamervoorzieningen
- Douche, toilet, en wastafel
- Aantal woonlagen
- 3 woonlagen
- Voorzieningen
- Airconditioning, buitenzonwering, dakraam, natuurlijke ventilatie, rookkanaal, schuifpui, en zonnepanelen
Energie
- Energielabel
- Isolatie
- Dakisolatie, dubbel glas, gedeeltelijk dubbel glas, muurisolatie en vloerisolatie
- Verwarming
- Cv-ketel
- Warm water
- Cv-ketel
- Cv-ketel
- HR Combi (gas gestookt combiketel uit 2025, eigendom)
Kadastrale gegevens
- EMMEN C 9600
- Kadastrale kaart
- Oppervlakte
- 309 m²
- Eigendomssituatie
- Volle eigendom
Buitenruimte
- Ligging
- Aan rustige weg, beschutte ligging, in bosrijke omgeving en in woonwijk
- Tuin
- Achtertuin, voortuin en zijtuin
- Achtertuin
- 80 m² (9,30 meter diep en 11,20 meter breed)
- Ligging tuin
- Gelegen op het oosten
- Balkon/dakterras
- Balkon aanwezig
Bergruimte
- Schuur/berging
- Aangebouwde stenen berging
- Voorzieningen
- Elektra
Garage
- Soort garage
- Vrijstaande stenen garage
- Capaciteit
- 1 auto
- Voorzieningen
- Elektra, verwarming en stromend water
Parkeergelegenheid
- Soort parkeergelegenheid
- Op eigen terrein en openbaar parkeren
Foto's 56
© 2001-2026 funda























































