Dit huis op Funda: https://www.funda.nl/detail/koop/emmen/huis-laan-van-de-bork-230/43148638/

Omschrijving
Ruim wonen op een rustige plek vlak bij het bos? Laan van de Bork 230 biedt het allemaal!
In deze groene, kindvriendelijke wijk Emmerhout ligt deze ruime tussenwoning aan een rustig hofje, op korte afstand van het bos en het winkelcentrum. Een ideale plek voor wie houdt van rust, natuur én het gemak van voorzieningen in de buurt.
De woning is de afgelopen jaren gemoderniseerd en keurig onderhouden. Zo zijn onder andere de vloeren vernieuwd (2021), meterkast (2021), het toilet gemoderniseerd (2022), de keuken (2021) en CV ketel (2020).
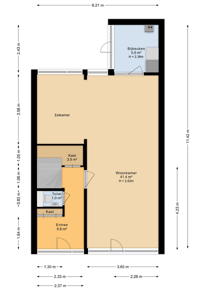
INDELING
Begane grond:
Entree, meterkast, toilet, woonkamer, keuken met diverse inbouwapparatuur, bijkeuken met toegang tot tuin.
Eerste verdieping:
Overloop, 4 slaapkamers en badkamer met douche, toilet en wastafelmeubel.
Tweede verdieping:
Overloop, berging, werkkamer, (slaap)kamer met dakkapel.
INFO
- Ruime tussenwoning in een rustig hofje in Emmerhout
- Op loopafstand van het bos en winkelcentrum
- Vloeren vernieuwd (2021)
- Meterkast vernieuwd (2021)
- Toilet gemoderniseerd (2022)
- Keuken (2021)
- CV ketel van Intergas (2020)
- Grotendeels dubbelglas
Laan van de Bork 230, een ruime, lichte woning op een heerlijke plek in Emmerhout, dichtbij het bos en alle voorzieningen!
Kenmerken
Overdracht
- Laatste vraagprijs
- € 285.000 kosten koper
- Vraagprijs per m²
- € 1.952
- Status
- Verkocht
Bouw
- Soort woonhuis
- Eengezinswoning, tussenwoning
- Soort bouw
- Bestaande bouw
- Bouwjaar
- 1970
- Soort dak
- Zadeldak bedekt met pannen
Oppervlakten en inhoud
- Gebruiksoppervlakten
- Wonen
- 146 m²
- Externe bergruimte
- 8 m²
- Perceel
- 181 m²
- Inhoud
- 490 m³
Indeling
- Aantal kamers
- 6 kamers (5 slaapkamers)
- Aantal badkamers
- 1 badkamer en 1 apart toilet
- Badkamervoorzieningen
- Douche, toilet, en wastafelmeubel
- Aantal woonlagen
- 3 woonlagen
- Voorzieningen
- Dakraam, glasvezelkabel, en mechanische ventilatie
Energie
- Energielabel
- Isolatie
- Dakisolatie, gedeeltelijk dubbel glas en muurisolatie
- Verwarming
- Cv-ketel
- Warm water
- Cv-ketel
- Cv-ketel
- Intergas (gas gestookt combiketel uit 2020, eigendom)
Kadastrale gegevens
- EMMEN L 2974
- Kadastrale kaart
- Oppervlakte
- 181 m²
- Eigendomssituatie
- Volle eigendom
Buitenruimte
- Ligging
- In bosrijke omgeving en in woonwijk
- Tuin
- Achtertuin en voortuin
- Achtertuin
- 42 m² (7,00 meter diep en 6,00 meter breed)
- Ligging tuin
- Gelegen op het oosten bereikbaar via achterom
Bergruimte
- Schuur/berging
- Vrijstaande stenen berging
- Voorzieningen
- Elektra
Parkeergelegenheid
- Soort parkeergelegenheid
- Openbaar parkeren
Foto's 39
© 2001-2026 funda






































