
Omschrijving
Op zoek naar een fijne starterswoning in een rustige groene omgeving? Dan is dit je kans!
In de gezellige en kindvriendelijke woonwijk Stadsveld bieden wij jou deze keurig onderhouden bovenwoning aan met maar liefst twee slaapkamers, een ruime woonkamer, een zonnig balkon op het zuiden en een berging.
Ideale locatie
Deze woning is gelegen aan de rand van Enschede. Zo zijn zowel de uitvalswegen als de bruisende binnenstad binnen handbereik. Ook diverse voorzieningen zoals winkelcentrum Stadsveld, (basis)scholen, een medisch centrum en verschillende sportfaciliteiten vind je op steenworp afstand.
Indeling:
Wanneer je de woning binnenkomt, beland je in de hal. Aan de linkerzijde is het toilet te vinden, net als een van de slaapkamers. Deze kamer is voorzien van de wasmachine aansluiting en ideaal voor extra opbergruimte. In deze kamer is ook eenvoudig een vaste trap naar de zolder verdieping te realiseren. Rechts van de hal bevindt zich de keuken, uitgevoerd in een hoekopstelling en uitgerust met inbouwapparatuur. Via de hal stap je ook de ruime woonkamer binnen, die plek biedt aan zowel een knusse zithoek als een eethoek. De woonkamer is voorzien van glad gestucte wanden en plafonds. Vanuit de woonkamer kun je via de schuifpui chillen op het balkon. De tweede slaapkamer, eveneens te bereiken via de woonkamer, grenst aan de badkamer. Deze badkamer is voorzien van een ruime douchehoek en een wastafelmeubel.
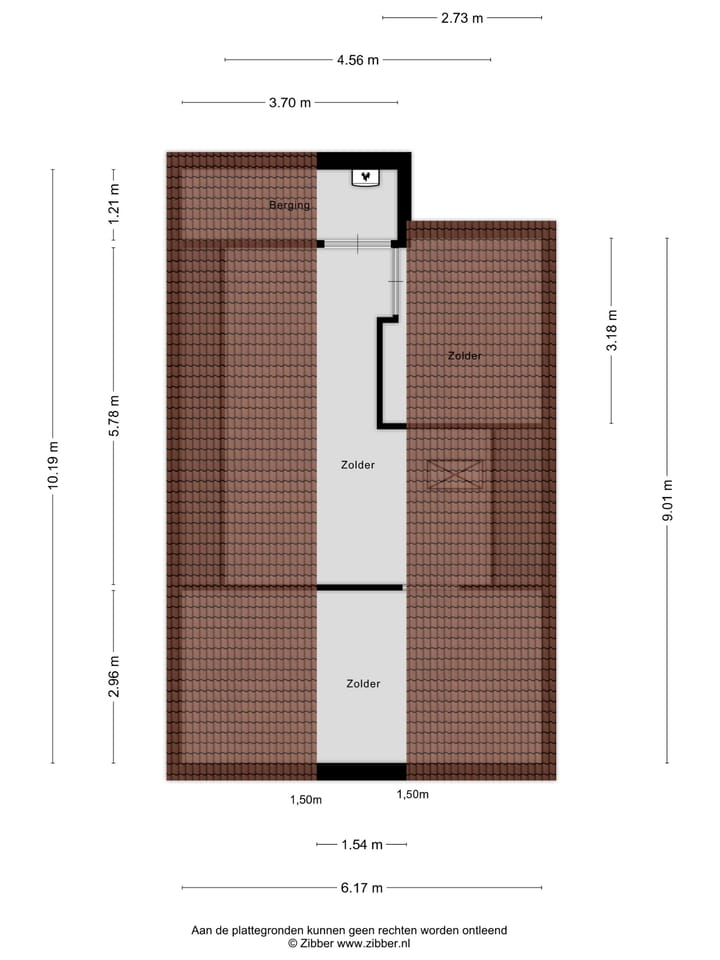
Tweede verdieping:
Zeer ruime bergzolder, bereikbaar via een vlizotrap welke over het gehele appartement loopt. Hier bevindt zich tevens de opstelplaats van de Cv-ketel.
Buiten:
Het balkon is gelegen op het zuiden. Verrassend ruim en voorzien van zonwering. Naast het complex is er nog een stenenberging. Fietsen of andere spullen opbergen? Geen probleem!
Bijzonderheden:
- Bouwjaar: 1955;
- Woonoppervlakte: 60 m²;
- Energielabel: E; Spouwmuur is na geïsoleerd maar niet opgenomen in rapport.
- Servicekosten VvE: circa € 118,- p/m;
- (bijna) Volledig voorzien van onderhoudsarme kunststof kozijnen;
- Verwarming via een Intergas CV-ketel (2010, eigendom);
- In de koopakte zal een 10% waarborgsom of bankgarantie worden opgenomen;
- In de koopakte zal een ouderdomsclausule worden opgenomen alsmede een asbestclausle.
Aanvaarding: in overleg.
Deze woning heeft een WOZ waarde die onder de € 365.000,- ligt. Dat betekent dat deze woning onder de ’opkoopbescherming’ van de Gemeente Enschede valt en alleen aangekocht kan worden voor eigen bewoning. Deze regeling vind je op of bel met ons kantoor voor meer informatie.
Deze presentatie is informatief en geheel vrijblijvend. Aan eventuele onjuistheden kunnen geen rechten worden ontleend.
Interesse in dit huis? Schakel direct uw eigen NVM-aankoopmakelaar in. Uw NVM-aankoopmakelaar komt op voor uw belang en bespaart u tijd, geld en zorgen. Adressen van collega NVM-aankoopmakelaars vindt u op Funda.
Kenmerken
Overdracht
- Laatste vraagprijs
- € 219.000 kosten koper
- Vraagprijs per m²
- € 3.650
- Status
- Verkocht
- Bijdrage VvE
- € 118,00 per maand
Bouw
- Soort appartement
- Bovenwoning
- Soort bouw
- Bestaande bouw
- Bouwjaar
- 1955
- Specifiek
- Gedeeltelijk gestoffeerd
- Soort dak
- Zadeldak bedekt met pannen
Oppervlakten en inhoud
- Gebruiksoppervlakten
- Wonen
- 60 m²
- Overige inpandige ruimte
- 16 m²
- Gebouwgebonden buitenruimte
- 4 m²
- Externe bergruimte
- 5 m²
- Inhoud
- 249 m³
Indeling
- Aantal kamers
- 3 kamers (2 slaapkamers)
- Aantal badkamers
- 1 badkamer en 1 apart toilet
- Badkamervoorzieningen
- Douche en wastafelmeubel
- Aantal woonlagen
- 2 woonlagen
- Voorzieningen
- Buitenzonwering, dakraam, glasvezelkabel, schuifpui, en TV kabel
- Gelegen op
- 2e woonlaag
Energie
- Energielabel
- E
- Isolatie
- Dakisolatie, dubbel glas en muurisolatie
- Verwarming
- Cv-ketel
- Warm water
- Cv-ketel
- Cv-ketel
- Remeha Avanta (gas gestookt combiketel uit 2010, eigendom)
Kadastrale gegevens
- LONNEKER N 7874
- Kadastrale kaart
- Eigendomssituatie
- Volle eigendom
Buitenruimte
- Ligging
- Aan rustige weg en in woonwijk
- Balkon/dakterras
- Balkon aanwezig
Bergruimte
- Schuur/berging
- Vrijstaande stenen berging
- Voorzieningen
- Vliering
- Isolatie
- Geen spouw
Parkeergelegenheid
- Soort parkeergelegenheid
- Openbaar parkeren
VvE checklist
- Inschrijving KvK
- Ja
- Jaarlijkse vergadering
- Ja
- Periodieke bijdrage
- Ja (€ 118,00 per maand)
- Reservefonds aanwezig
- Ja
- Onderhoudsplan
- Ja
- Opstalverzekering
- Ja
Foto's 33
© 2001-2025 funda
































