Dit huis op Funda: https://www.funda.nl/detail/koop/epe/huis-klaverkamp-15/43071650/

Omschrijving
Op een kindvriendelijke locatie in de woonwijk Burgerenk gelegen, moderne fors uitgebouwde tussenwoning met dakopbouw(2019), aangebouwde berging en een zonnige vrij gelegen achtertuin met achterom.
Gebruiksoppervlakte wonen: 120m². Perceeloppervlakte: 147m².
Indeling
Begane grond: entree met vernieuwde kunststof voordeur, hal, modern toilet met fonteintje, ruime L-vormige woonkamer voorzien van pvc-vloer, veel lichtinval en deur naar de tuin.
Moderne keuken (2010, vernieuwd 2024) voorzien van diverse inbouwapparatuur, ruime bijkeuken met wasruimte en achterentree.
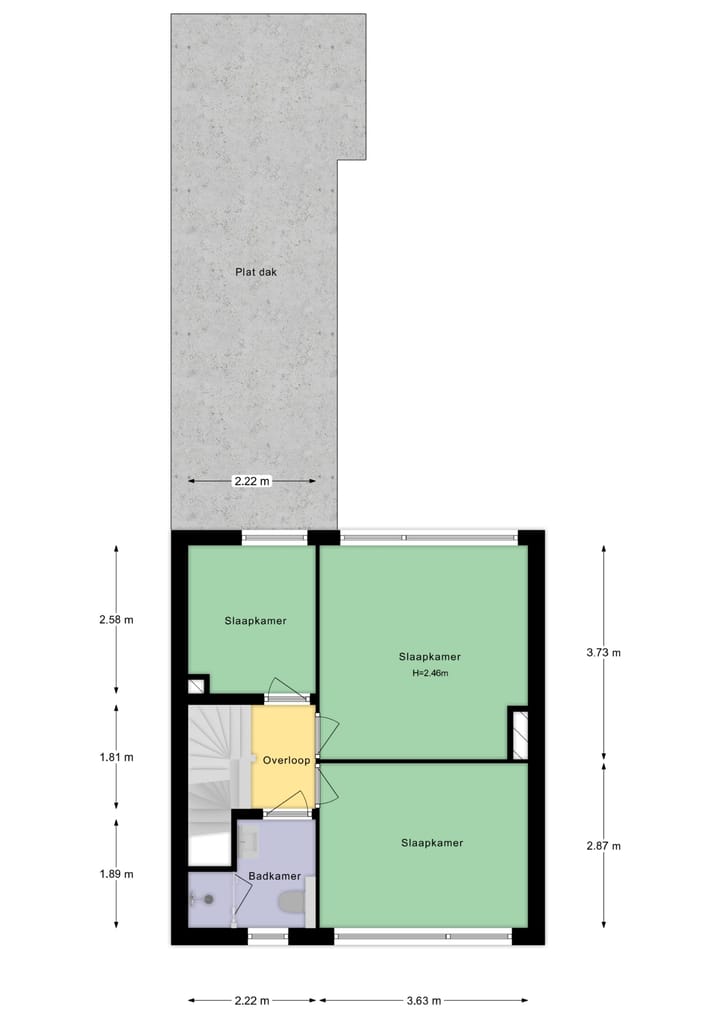
1e verdieping: overloop, 3 modern afgewerkte slaapkamers voorzien van elektrische rolluiken, laminaatvloeren en kunststof kozijnen met HR beglazing. Moderne badkamer (2015) voorzien van vloerverwarming, inloop regendouche, 2e zwevend toilet, designradiator, wastafelmeubel en inbouwspots.
2e verdieping: in 2019 is hier een kunststof dakopbouw met HR++ beglazing geplaatst waardoor er een ruime 4e slaapkamer is gerealiseerd en een overloop met veel bergruimte en luik naar een bergzolder.
Bouwjaar: 1969. De woning heeft energielabel B, 9 zonnepanelen(2023), dak- en muurisolatie en volledig dubbele beglazing (HR en HR++). Verwarming middels een HR cv-ketel.
Mooie ligging in een groene omgeving dichtbij het centrum van Epe en het buitengebied.
Interesse in deze woning? Schakel direct uw eigen NVM aankoopmakelaar in. Uw NVM aankoopmakelaar komt op voor uw belang en bespaart u tijd, geld en zorgen.
Kenmerken
Overdracht
- Laatste vraagprijs
- € 398.000 kosten koper
- Vraagprijs per m²
- € 3.317
- Status
- Verkocht
Bouw
- Soort woonhuis
- Eengezinswoning, tussenwoning
- Soort bouw
- Bestaande bouw
- Bouwjaar
- 1970
- Soort dak
- Dwarskap bedekt met pannen
- Keurmerken
- Energie Prestatie Advies
Oppervlakten en inhoud
- Gebruiksoppervlakten
- Wonen
- 120 m²
- Overige inpandige ruimte
- 7 m²
- Perceel
- 147 m²
- Inhoud
- 436 m³
Indeling
- Aantal kamers
- 5 kamers (4 slaapkamers)
- Aantal badkamers
- 1 badkamer en 1 apart toilet
- Badkamervoorzieningen
- Douche, inloopdouche, toilet, vloerverwarming, en wastafelmeubel
- Aantal woonlagen
- 3 woonlagen en een vliering
- Voorzieningen
- Glasvezelkabel, mechanische ventilatie, rolluiken, TV kabel, en zonnepanelen
Energie
- Energielabel
- Isolatie
- Dakisolatie, dubbel glas, HR-glas en muurisolatie
- Verwarming
- Cv-ketel
- Warm water
- Cv-ketel
- Cv-ketel
- Remeha Avanta (gas gestookt combiketel uit 2010, eigendom)
Kadastrale gegevens
- EPE EN OENE T 3408
- Kadastrale kaart
- Oppervlakte
- 147 m²
- Eigendomssituatie
- Volle eigendom
Buitenruimte
- Ligging
- Aan rustige weg en in woonwijk
- Tuin
- Achtertuin en voortuin
- Achtertuin
- 39 m² (10,85 meter diep en 3,60 meter breed)
- Ligging tuin
- Gelegen op het zuidoosten bereikbaar via achterom
Bergruimte
- Schuur/berging
- Aangebouwde stenen berging
- Voorzieningen
- Elektra
Parkeergelegenheid
- Soort parkeergelegenheid
- Openbaar parkeren
Foto's 47
© 2001-2026 funda














































