Dit huis op Funda: https://www.funda.nl/detail/koop/epe/huis-koeweg-17-17/43917106/

Omschrijving
Droomt u van uw eigen vakantieplekje midden in de natuur? Deze prachtige recreatiewoning, gelegen op het kleinschalige vakantiepark Remboe Village in Epe, biedt alles wat u zoekt. Deze goed onderhouden recreatiewoning is gelegen op een royaal bosperceel van maar liefst 945 m²! Hier geniet u dagelijks van rust, privacy en een adembenemend uitzicht over het omliggende bos. Welkom op de Veluwe.
Voor de uitgebreide informatie, kijk op: koeweg1717.nl
Indeling begane grond
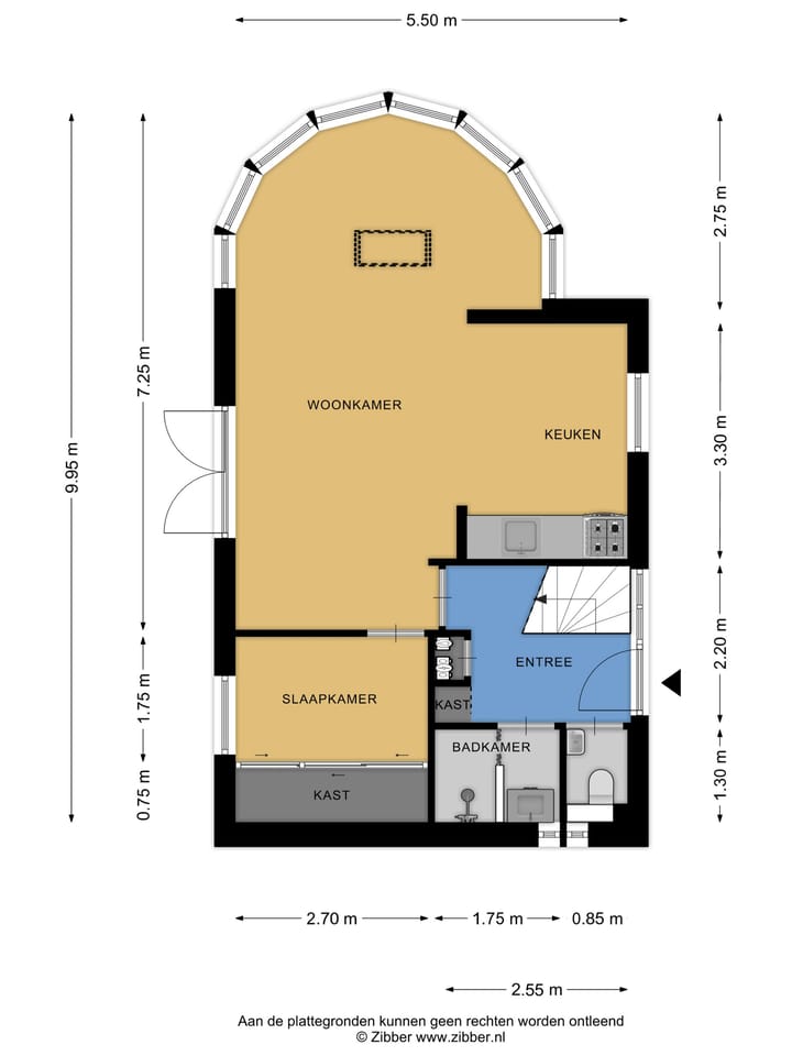
Bij binnenkomst treft u de entree met meterkast en separaat toilet. De badkamer is voorzien van een wastafelmeubel en een inloopdouche. De ruime woonkamer mede door de aangebouwde serre is werkelijk fantastisch. Hier heeft u panoramisch uitzicht over het aangrenzende bos. De openslaande deuren geeft u toegang naar het zijterras, De keuken is uitgerust met diverse inbouwapparatuur en is er een houtkachel aanwezig. Aangrenzend aan de woonkamer bevindt zich de eerste kamer, met een praktische inbouwkast, waar de wasmachineaansluitingen aanwezig zijn.
Eerste verdieping
Via een vaste trap bereikt u de bovenverdieping, die veel bergruimte biedt en plaats voor de CV-ketel. Hier bevinden zich twee royale slaapkamers, waar u heerlijk kunt ontspannen.
Bijgebouwen/Tuin
Het perceel is prachtig aangelegd met diverse terrassen, die uitnodigen tot ontspanning en genieten van de natuur. Naast de woning is ook een speeltoestel voor de kids aanwezig. De tuin biedt verder volledige privacy en de oprit geeft u de mogelijkheid om meerdere auto’s op eigen terrein te parkeren. Daarnaast is er een vrijstaande berging met elektra voor extra opslag aanwezig.
Natuur en omgeving
De woning bevindt zich op een toplocatie voor natuurliefhebbers. In de directe omgeving vindt u het Wisselse Veen en Landgoed Tongeren, beide indrukwekkende natuurgebieden die zich perfect lenen voor lange wandelingen en fietstochten. De rustige omgeving biedt volop gelegenheid om tot rust te komen en te genieten van alles wat de natuur te bieden heeft.
Dit is een zeldzame kans om te wonen op een droomlocatie. Bent u geïnteresseerd? Neem dan contact met ons op voor meer informatie en laat ons u verwelkomen op de Veluwe!
Wetenswaardigheden
Bouwjaar : 1978
Perceeloppervlakte : 945 m²
Inhoud : ca. 250 m³
Gebruiksoppervlakte : ca. 70 m²
Verwarming : Via CV- ketel
Warm water : Via CV- ketel (Remeha HR 2012)
Isolatie : Dakisolatie en dubbel glas
Energielabel : D
Aanvaarding : in overleg/kan snel
Overig : Parkkosten bedragen ca. €1.608,08,- (2024)
Kenmerken
Overdracht
- Laatste vraagprijs
- € 279.000 kosten koper
- Status
- Verkocht
- Permanente bewoning
- Permanente bewoning is niet toegestaan
Bouw
- Soort woonhuis
- Eengezinswoning, vrijstaande woning
- Soort bouw
- Bestaande bouw
- Bouwjaar
- 1978
- Specifiek
- Gedeeltelijk gestoffeerd
- Soort dak
- Zadeldak bedekt met pannen
Oppervlakten en inhoud
- Gebruiksoppervlakten
- Wonen
- 70 m²
- Externe bergruimte
- 8 m²
- Perceel
- 945 m²
- Inhoud
- 281 m³
Indeling
- Aantal kamers
- 4 kamers (2 slaapkamers)
- Aantal badkamers
- 1 badkamer en 1 apart toilet
- Badkamervoorzieningen
- Douche en wastafel
- Aantal woonlagen
- 2 woonlagen
- Voorzieningen
- Dakraam, rookkanaal, en TV kabel
Energie
- Energielabel
- Isolatie
- Dakisolatie en dubbel glas
- Verwarming
- Cv-ketel en houtkachel
- Warm water
- Cv-ketel
- Cv-ketel
- Remeha HR (gas gestookt combiketel uit 2012, eigendom)
Kadastrale gegevens
- EPE EN OENE T 4755
- Kadastrale kaart
- Oppervlakte
- 945 m²
- Eigendomssituatie
- Volle eigendom
Buitenruimte
- Ligging
- Aan bosrand, aan rustige weg, beschutte ligging, buiten bebouwde kom, in bosrijke omgeving en in recreatiepark
- Tuin
- Tuin rondom
Bergruimte
- Schuur/berging
- Vrijstaand kunststof
- Voorzieningen
- Elektra
Parkeergelegenheid
- Soort parkeergelegenheid
- Op eigen terrein
Foto's 28
© 2001-2026 funda



























