Dit huis op Funda: https://www.funda.nl/detail/koop/ermelo/huis-badhuisweg-11/43047538/

Omschrijving
KNUSSE, VRIJSTAANDE WONING MET TUIN OP HET WESTEN OP LOOPAFSTAND VAN HET CENTRUM
Op zoek naar een plek waar je helemaal je eigen draai aan kunt geven? Deze woning in de geliefde wijk ‘de Riet’ aan de rand van het centrum van Ermelo biedt jou precies die kans. Met een praktische indeling, een zonnige tuin op het westen en een centrale ligging is dit een huis dat zowel starters, jonge gezinnen en alleenstaanden veel te bieden heeft. Hier woon je op loopafstand van winkels, restaurants en een speeltuin, terwijl je tegelijk geniet van rust in je achtertuin.
Wanneer je de woonkamer binnenstapt, valt direct de gezellige haard op, die zorgt voor warmte en sfeer tijdens de koudere dagen. De ruimte biedt genoeg mogelijkheden om een fijne zithoek en eethoek te creëren. Vanuit de woonkamer kom je via de hal in de keuken, waar je beschikt over een gasfornuis, afzuigkap en een aansluiting voor de wasmachine. Aangrenzend vind je de badkamer met wastafel en douche. De trap in de keuken brengt je naar de eerste verdieping. De gehele begane grond verdient een frisse blik, wat juist de kans biedt om het geheel volledig naar eigen smaak te moderniseren.
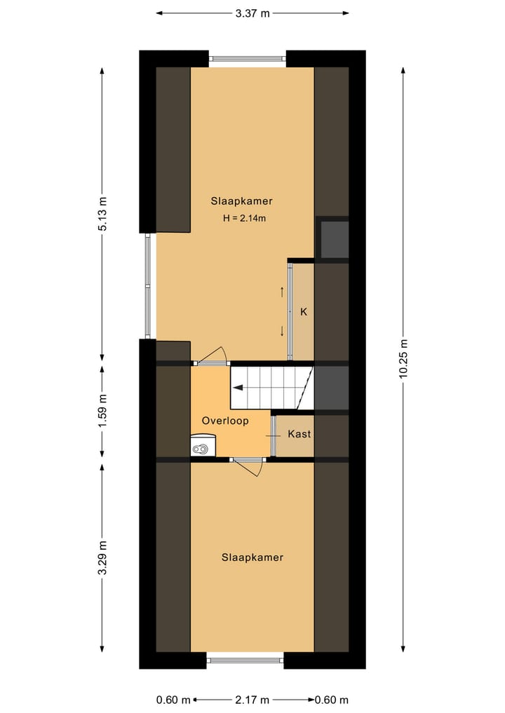
Boven tref je een overloop met de cv-installatie (HR-combiketel uit 2019), twee slaapkamers en een dakkapel die zorgt voor extra licht en ruimte. De hoofdslaapkamer beschikt over een vaste kast, handig voor je kleding en linnengoed. Ook hier geldt: de basis is goed, maar met een eigentijdse afwerking maak je er echt jouw plek van.
De tuin is gelegen op het westen, waardoor je ’s middags en ’s avonds optimaal profiteert van de zon. Het terras biedt ruimte voor een gezellige zithoek en door de ligging zonder directe bebouwing achter het huis geniet je van een vrij uitzicht en veel privacy. Verschillende beplanting zorgt voor een groene basis die je eenvoudig naar je eigen smaak kunt aanvullen.
In de achtertuin staat een houten berging, ideaal voor het opbergen van tuingereedschap of andere spullen. Direct eraan vast vind je een praktische overkapping, perfect om je fiets droog neer te zetten. Parkeren doe je eenvoudig in de straat, waar altijd plek is.
De ligging van dit huis is een groot pluspunt. Aan de rand van het centrum van Ermelo woon je dicht bij alle voorzieningen: winkels, supermarkten en restaurants bevinden zich op loopafstand. Voor kinderen is er in dezelfde straat een ruime speeltuin, een fijne plek om veilig buiten te spelen. Ook de goede bereikbaarheid met zowel fiets, auto als openbaar vervoer maakt dit een aantrekkelijke locatie.
Ben jij klaar om van dit huis jouw eigen thuis te maken? Plan snel een bezichtiging en ontdek de mogelijkheden die deze woning jou biedt.
INDELING
Begane grond: hal/entree, woonkamer met haard, keuken met gasfornuis, afzuigkap en aansluiting wasmachine, toilet met fonteintje, badkamer met wastafel en douche, trap (in de keuken) naar;
1e verdieping: overloop met opstelling cv-installatie, eerste slaapkamer met dakkapel en vaste kast, tweede slaapkamer.
VOORZIENINGEN
De centrale verwarming en de warmwatervoorziening geschieden via de HR CV combiketel uit 2019.
PARKEREN en BERGING
Parkeren doe je gemakkelijk in de straat van de woning. In de achtertuin staat een houten berging, met daaraan vast een handige overkapping voor bijvoorbeeld het stallen van je fiets.
VERDER / TUIN
De tuin is gelegen op het westen en aangelegd met een terras en diverse planten. Direct achter de woning is geen bebouwing aanwezig, waardoor je vrij wegkijkt vanaf het terras.
BIJZONDERE BEPALINGEN
In de koopovereenkomst worden de volgende bijzondere bepalingen opgenomen:
- Asbestclausule
- Ouderdomsclausule
Voor de volledige beschrijving van deze clausules verwijzen we je door naar de vragenlijst punt 12.
BROCHURE
Van deze woning is een unieke woningwebsite (Badhuisweg11.nl) beschikbaar. Op deze website kunt u de brochure downloaden waar u alle gegevens van de woning kunt vinden.
Kenmerken
Overdracht
- Laatste vraagprijs
- € 365.000 kosten koper
- Vraagprijs per m²
- € 6.186
- Status
- Verkocht
Bouw
- Soort woonhuis
- Eengezinswoning, vrijstaande woning
- Soort bouw
- Bestaande bouw
- Bouwjaar
- 1926
- Soort dak
- Mansarde dak bedekt met pannen
Oppervlakten en inhoud
- Gebruiksoppervlakten
- Wonen
- 59 m²
- Externe bergruimte
- 5 m²
- Perceel
- 135 m²
- Inhoud
- 213 m³
Indeling
- Aantal kamers
- 3 kamers (2 slaapkamers)
- Aantal badkamers
- 1 badkamer en 1 apart toilet
- Badkamervoorzieningen
- Douche en wastafel
- Aantal woonlagen
- 2 woonlagen
- Voorzieningen
- Glasvezelkabel
Energie
- Energielabel
- Isolatie
- Dubbel glas
- Verwarming
- Cv-ketel
- Warm water
- Cv-ketel
- Cv-ketel
- Atag (gas gestookt combiketel uit 2019, eigendom)
Kadastrale gegevens
- ERMELO F 5392
- Kadastrale kaart
- Oppervlakte
- 135 m²
- Eigendomssituatie
- Volle eigendom
Buitenruimte
- Ligging
- In woonwijk
- Tuin
- Achtertuin, voortuin en zijtuin
- Achtertuin
- 47 m² (7,85 meter diep en 6,00 meter breed)
- Ligging tuin
- Gelegen op het westen
Bergruimte
- Schuur/berging
- Vrijstaande houten berging
Parkeergelegenheid
- Soort parkeergelegenheid
- Openbaar parkeren
Foto's 39
© 2001-2026 funda






































