Dit huis op Funda: https://www.funda.nl/detail/koop/erp/huis-geluckweg-8/43942922/

Omschrijving
Energiezuinig (gasloos), degelijk en luxe gebouwd vrijstaand woonhuis met terrasoverkapping, royale vrijstaande garage/berging. Fraai aangelegde tuin.
Sterke punten:
-Goede materialen en degelijk gebouwd met luxe metselwerk.
-Gasloos en voorzien van warmtepomp.
-Garage/berging opp. 23,5 m², geheel geïsoleerd met keukenblokje, toilet en verwarming, ideaal voor beroep aan huis.
-Royale oprit voor meerdere auto`s.
-Perceel: 371 m².
Indeling en afwerking:
Entree/hal met meterkast, woonkamer met trapkast en trapopgang naar verdieping, royale keuken met keukeninrichting en diverse inbouwapparatuur, openslaande deuren naar overdekt terras, achter-portaal met toegang naar bijkeuken met opstelplaats warmtepomp, aansluiting voor wasmachine en uitstortgootsteen, modern toilet met wandcloset en fonteintje.
1e verdieping:
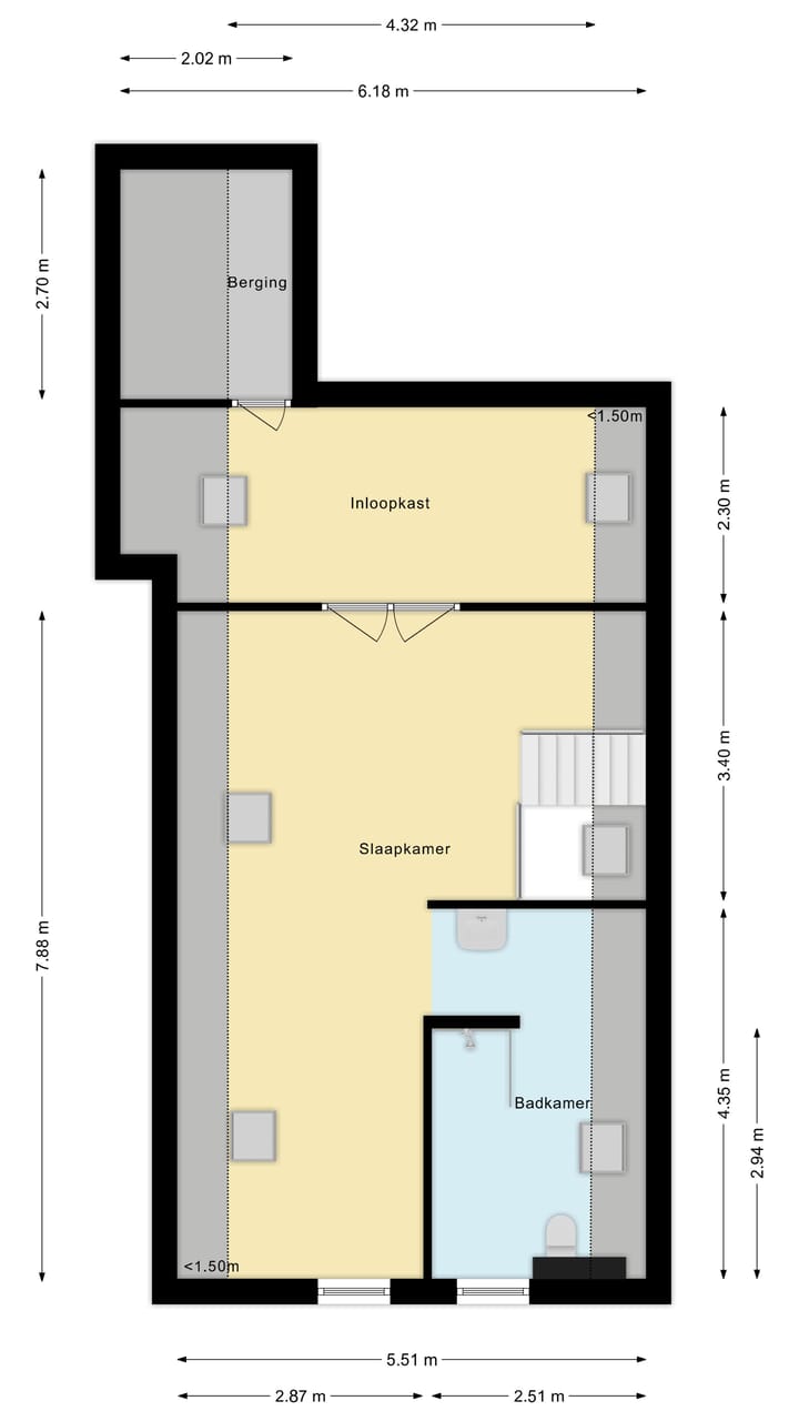
Royale ruimte met slaapkamer (mogelijkheid voor 2e slaapkamer), aansluitend badkamer met inloopdouche, toilet en wastafel, via openslaande deuren naar inloopkast.
Garage:
Volledig geïsoleerde garage met keukenblok, toilet en elektrische verwarming. Ideaal voor beroep aan huis of hobby-/werkruimte.
Bouwjaar: 2019.
Perceel: 371 m².
Inhoud/woonoppervlakte: het woonhuis een totale bruto inhoud van ca. 441 m³, de gebruiksoppervlakte wonen bedraagt ca. 112,4 m², de gebruiksoppervlakte gebouwgebonden buitenruimte ca. 12,7 m² en de gebruiksoppervlakte externe bergruimte bedraagt ca. 23,5 m². Voor deze woning is een meetrapport opgemaakt conform Branchebrede Meetinstructie – gebaseerd op NEN 2580.
Voorzieningen:
-Warmtepomp met warmwatervoorziening en warmteafgifte middels vloerverwarming.
-Isolatie: volledig geïsoleerd.
Energielabel A+ geldig tot 04-06-2035.
Kenmerken
Overdracht
- Laatste vraagprijs
- € 600.000 kosten koper
- Vraagprijs per m²
- € 5.357
- Status
- Verkocht
Bouw
- Soort woonhuis
- Eengezinswoning, vrijstaande woning
- Soort bouw
- Bestaande bouw
- Bouwjaar
- 2019
- Soort dak
- Zadeldak bedekt met pannen
Oppervlakten en inhoud
- Gebruiksoppervlakten
- Wonen
- 112 m²
- Gebouwgebonden buitenruimte
- 13 m²
- Externe bergruimte
- 23 m²
- Perceel
- 371 m²
- Inhoud
- 441 m³
Indeling
- Aantal kamers
- 2 kamers (1 slaapkamer)
- Aantal badkamers
- 1 badkamer en 1 apart toilet
- Badkamervoorzieningen
- Douche, toilet, en wastafelmeubel
- Aantal woonlagen
- 2 woonlagen
- Voorzieningen
- Balansventilatie en dakraam
Energie
- Energielabel
- A+
- Isolatie
- Volledig geïsoleerd
- Verwarming
- Gehele vloerverwarming en warmtepomp
- Warm water
- Doorstroomboiler
Kadastrale gegevens
- ERP S 1644
- Kadastrale kaart
- Oppervlakte
- 371 m²
- Eigendomssituatie
- Volle eigendom
Buitenruimte
- Ligging
- Aan rustige weg
- Tuin
- Achtertuin, voortuin en zijtuin
- Achtertuin
- 106 m² (8,80 meter diep en 12,00 meter breed)
- Ligging tuin
- Gelegen op het zuidwesten bereikbaar via achterom
Garage
- Soort garage
- Vrijstaande stenen garage
- Capaciteit
- 1 auto
- Voorzieningen
- Elektra, verwarming en stromend water
- Isolatie
- Volledig geïsoleerd
Parkeergelegenheid
- Soort parkeergelegenheid
- Op eigen terrein
Foto's 43
© 2001-2025 funda










































