
Omschrijving
Een zeer nette, compleet vernieuwde hoekwoning met hoogwaardige aanbouw, ruime woonkamer, luxe keuken, badkamer, 2 slaapkamers, zolder en kelder. Voorzien van een royale achter- en zijtuin met betegeld terras en buitenberging.
Gelegen in een rustige straat in een fijne wijk in Eygelshoven, gelegen rondom mooie natuurgebieden en groenrijke omgevingen. Daarnaast bevindt de Duitse grens zich op slechts een paar minuten rijafstand en zijn diverse voorzieningen zoals scholen, winkels en openbaar vervoer zeer goed bereikbaar.
Bouwjaar: 1948 (recent gemoderniseerd)
Onderhoud: Goed tot uitstekend
Perceeloppervlakte: 320 m²
Woonoppervlakte: 103 m²
Overig inpandig: 10 m²
Externe bergruimte: 6 m²
Inhoud circa: 398 m³
Aanvaarding: In overleg
Energielabel: B
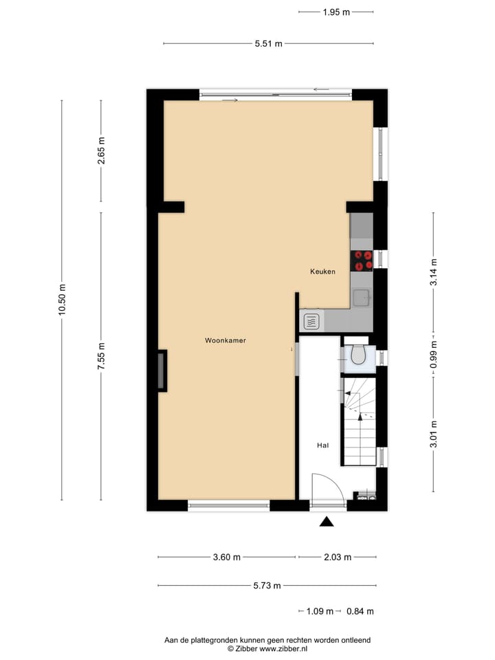
Indeling:
Souterrain:
Nette kelderruimte.
Begane grond:
Entree/hal met nieuwe meterkast.
Vernieuwde toiletruimte (wandcloset).
Lichte woonkamer met aansluitend eetkamer, achtertuin via schuifpui bereikbaar.
Luxe vernieuwde keuken met inductiekookplaat, koelkast, combi oven-magnetron en vaatwasser.
Zonnige achter- en zijtuin met betegeld terras en vrijstaande buitenberging.
Eerste verdieping:
Overloop.
Geheel nieuwe badkamer met dubbele wastafelmeubel, regendouche en toilet (wandcloset).
Eén aan de voorzijde gelegen slaapkamer.
Eén aan de achterzijde gelegen slaapkamer.
Open kamer met mogelijkheid tot wasmachineaansluiting.
Zolder:
Bereikbaar middels vlizotrap, alwaar zich de cv-ketel bevindt.
Wetenswaardigheden
De gehele woning is intern gemoderniseerd en afgerond in 2025.
De woning is voorzien van dakisolatie en spouwisolatie.
De aanbouw van de woning is voorzien van aluminium kozijnen met triple glas, de rest van de woning is voorzien van kunststof kozijnen met dubbele beglazing.
De gehele woning is voorzien van een nieuwe laminaatvloer.
De woning is voorzien van zowel elektrische als handmatige rolluiken.
De woning beschikt over 13 zonnepanelen, eigendom.
ONZE TIP
Aankopen? Schakel je eigen NVM-aankoopmakelaar in! Jouw NVM-aankoopmakelaar komt op voor jouw belang en bespaart je veel tijd, geld en zorgen. Adressen van collega NVM-aankoopmakelaars vind je op Funda.
De waarborgsom/bankgarantie is 10% van de koopsom. De koper dient deze binnen 2 weken nadat het financieringsvoorbehoud is verlopen bij de desbetreffende notaris te deponeren.
Ter bescherming van de belangen van zowel koper als ook verkoper wordt uitdrukkelijk gesteld dat een koopovereenkomst met betrekking tot deze onroerende zaak eerst dan tot stand komt nadat koper en verkoper de koopovereenkomst hebben getekend (schriftelijkheids vereiste).
Indien cv-ketel en/of warmwatervoorziening een huurtoestel is, dient koper de huurovereenkomst over te nemen.
Alle door ons kantoor verstrekte informatie omtrent onroerende zaken, moet beschouwd worden als een uitnodiging om in onderhandeling te treden, en is geheel vrijblijvend! Alle vermelde maten en afmetingen zijn slechts bij benadering. Aan deze beperkte info kunnen geen rechten worden ontleend. Indien in enige documentatie of op enige website informatie staat die niet overeen komt met de werkelijkheid, dan geldt de feitelijke situatie waarin de woning zich bevindt, zoals koper deze tijdens de bezichtiging heeft kunnen waarnemen, en wordt de woning in deze feitelijke situatie/staat verkocht.
Een (eventueel) bijgevoegde plattegrond dient uitsluitend als globale indicatie/visualisatie. Hieraan kunnen uitdrukkelijk geen rechten worden ontleend.
Kenmerken
Overdracht
- Laatste vraagprijs
- € 289.000 kosten koper
- Vraagprijs per m²
- € 2.806
- Status
- Verkocht
Bouw
- Soort woonhuis
- Eengezinswoning, hoekwoning
- Soort bouw
- Bestaande bouw
- Bouwjaar
- 1948
- Soort dak
- Zadeldak bedekt met pannen
Oppervlakten en inhoud
- Gebruiksoppervlakten
- Wonen
- 103 m²
- Overige inpandige ruimte
- 10 m²
- Externe bergruimte
- 6 m²
- Perceel
- 345 m²
- Inhoud
- 398 m³
Indeling
- Aantal kamers
- 5 kamers (3 slaapkamers)
- Aantal badkamers
- 1 badkamer en 1 apart toilet
- Badkamervoorzieningen
- Dubbele wastafel, inloopdouche, toilet, en wastafelmeubel
- Aantal woonlagen
- 2 woonlagen, een zolder, en een kelder
- Voorzieningen
- Rolluiken, schuifpui, en zonnepanelen
Energie
- Energielabel
- Isolatie
- Dakisolatie, dubbel glas en muurisolatie
- Verwarming
- Cv-ketel
- Warm water
- Cv-ketel
- Cv-ketel
- Gas gestookt combiketel uit 2025, eigendom
Kadastrale gegevens
- KERKRADE N 1315
- Kadastrale kaart
- Oppervlakte
- 320 m²
- Eigendomssituatie
- Volle eigendom
- KERKRADE N 3059
- Kadastrale kaart
- Oppervlakte
- 25 m²
- Eigendomssituatie
- Volle eigendom
Buitenruimte
- Ligging
- Aan bosrand, aan rustige weg en in woonwijk
- Tuin
- Achtertuin, voortuin en zijtuin
Bergruimte
- Schuur/berging
- Vrijstaande stenen berging
Parkeergelegenheid
- Soort parkeergelegenheid
- Op eigen terrein en openbaar parkeren
Foto's 36
© 2001-2026 funda



































