Dit huis op Funda: https://www.funda.nl/detail/koop/feanwalden/huis-achterwei-52/43706883/

Omschrijving
Op fraaie en aantrekkelijke woonstand nabij het centrum van Feanwâlden bevindt zich deze betaalbare en goed onderhouden vrijstaande woning met o.a. ruime garage en (2-persoons)slaapkamer en badkamer op de begane grond.
De woning is gunstig gelegen nabij vele voorzieningen waaronder winkels, scholen, openbaar vervoer (o.a. treinstation), sportfaciliteiten en natuurgebieden “It Bûtenfjild” en “De Houtwiel”.
Vanaf 1987 is deze sfeervolle woning nagenoeg geheel opnieuw opgetrokken en royaal uitgebouwd met behoud van diverse authentieke details (zoals balkenplafonds en schouw). Doordat de basisvoorzieningen zich op de begane grond bevinden is de woning voor meerdere doelgroepen geschikt.
Verwarming geschiedt door middel van gaskachels en verder is er sprake van grotendeels isolatieglas, dak- en vloerisolatie (deels).
De beschutte, zonnige achtertuin met zonneterras biedt veel privacy en de lange oprit ruim voldoende parkeergelegenheid op eigen erf.
Het geheel is gesitueerd op een mooie kavel van 380 m² eigen grond.
Feanwâlden betreft een gewild dorp gelegen in de prachtige Friese Wouden aan klein vaarwater en de spoorlijn Leeuwarden-Groningen. De “Feanwâldster Feart” staat in open verbinding met de unieke natuur- en recreatiegebieden "De Houtwiel" en "It Bûtenfjild". Feanwâlden heeft een goed
voorzieningenniveau (scholen, winkels, horeca etc.), een gezellig verenigingsleven en vele sportfaciliteiten.
Door de aanleg van de Centrale As (N356 Dokkum-Nijega) zijn zowel Dokkum (ca. 10 min.), Leeuwarden (ca. 10 min.), Drachten (ca. 15 min.) als de uitvalswegen naar de randstad uitstekend bereikbaar.
In 2017 is er een nieuwe electric-only vaarroute aangelegd: de Bûtenfjildroute! Deze vaarverbinding loopt vanaf de Grutte Wielen bij Leeuwarden via Ryptsjerk en het natuurgebied Bûtenfjild naar de Swemmer bij De Westereen. Dit traject verbindt het Bûtenfjild (en daarmee ook Feanwâlden) met Leeuwarden en met de Lits-Lauwersmarroute en betekent een prachtige uitbreiding van het vaarnetwerk in Fryslân.
Begane grond: zij-entree, ruime hal met plavuizenvloer, toilet, lichte badkamer met douche en wastafel, ruime slaapkamer met laminaatvloer, balkenplafond en vaste kast, sfeervolle woonkamer met parketvloer, balkenplafond en fraai schouw, open keuken met laminaatvloer en lichte opstelling v.v. enige inbouwapparatuur, ruime bijkeuken met witgoed-aansluitingen en achter-entree.
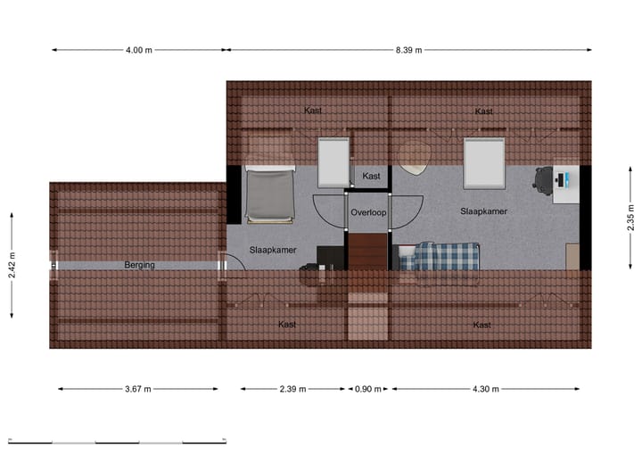
1e verdieping: kleine overloop, 2 slaapkamers met bergruimtes.
Kenmerken
Overdracht
- Laatste vraagprijs
- € 300.000 kosten koper
- Vraagprijs per m²
- € 3.333
- Status
- Verkocht
Bouw
- Soort woonhuis
- Eengezinswoning, vrijstaande woning
- Soort bouw
- Bestaande bouw
- Bouwjaar
- 1987
- Soort dak
- Samengesteld dak bedekt met pannen
- Toegankelijkheid
- Toegankelijk voor ouderen
Oppervlakten en inhoud
- Gebruiksoppervlakten
- Wonen
- 90 m²
- Externe bergruimte
- 29 m²
- Perceel
- 380 m²
- Inhoud
- 300 m³
Indeling
- Aantal kamers
- 4 kamers (3 slaapkamers)
- Aantal badkamers
- 1 badkamer en 1 apart toilet
- Badkamervoorzieningen
- Douche en wastafel
- Aantal woonlagen
- 2 woonlagen
- Voorzieningen
- Dakraam, glasvezelkabel, en natuurlijke ventilatie
Energie
- Energielabel
- F
- Isolatie
- Dubbel glas, gedeeltelijk dubbel glas en vloerisolatie
- Verwarming
- Gaskachels
- Warm water
- Geiser (huur)
Kadastrale gegevens
- VEENWOUDEN F 1499
- Kadastrale kaart
- Oppervlakte
- 380 m²
- Eigendomssituatie
- Volle eigendom
Buitenruimte
- Ligging
- In woonwijk
- Tuin
- Tuin rondom
Garage
- Soort garage
- Vrijstaande houten garage
- Capaciteit
- 1 auto
- Voorzieningen
- Vliering en elektra
Parkeergelegenheid
- Soort parkeergelegenheid
- Op eigen terrein
Foto's 43
© 2001-2025 funda










































