Dit huis op Funda: https://www.funda.nl/detail/koop/garyp/huis-de-tuije-35/43768245/

Omschrijving
Aan ruim opgezette straat gelegen hoekwoning met garage/berging/carport (8 x 7.5 m. met een nokhoogte van ca. 4m) en aan de voorzijde uitzicht op gemeentelijk groen. Hier is recent een speeltuintje aangelegd.
Achter de woning ligt een ruime beschutte tuin met groot terras waar je lekker kunt zitten. Voorts een ruime houten garage met berging en carport. Op de bestrating voor de garage is eventueel nog plaats voor een extra auto of caravan.
De verdieping is voorzien van kunststof kozijnen met HR +++ glas. De houten kozijnen zijn recent geschilderd.
Indeling: als volgt:
Begane grond: zijentree, meterkast, toilet met fonteintje, trapopgang naar eerste verdieping, lichte woonkamer met gezellige (gas)haard, open keuken in hoekopstelling voorzien van diverse inbouwapparatuur, provisieruimte/kelder, aansluitend de bijkeuken met deur die toegang biedt tot de tuin.
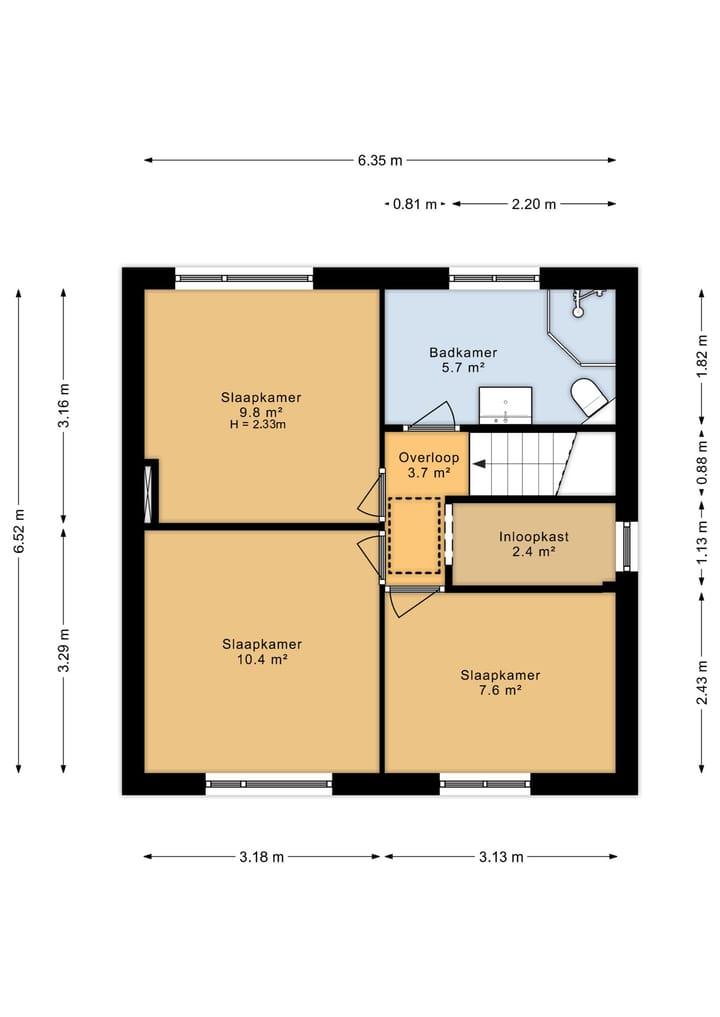
Eerste verdieping: met overloop en inloopkast, drie slaapkamers en badkamer met toilet, douche en wastafelmeubel.
Tweede verdieping: vliering met vide.
Algemeen:
- goede woonstand
- grote garage/schuur/berging met carport
- deels kunststof kozijnen met HR +++
- houten kozijnen recent geschilderd
Garyp is een dorp centraal gelegen in de provincie Fryslân tussen Leeuwarden en Drachten. Openbaar vervoer is op loop-/fietsafstand net buiten het dorp, In het dorp zijn diverse voorzieningen zoals: supermarkt (Spar), slagerij, basisschool, zwembad etc..
Het nabij gelegen Burgum heeft een uitgebreid aanbod van winkels.
Kenmerken
Overdracht
- Laatste vraagprijs
- € 259.000 kosten koper
- Vraagprijs per m²
- € 2.846
- Status
- Verkocht
Bouw
- Soort woonhuis
- Eengezinswoning, hoekwoning
- Soort bouw
- Bestaande bouw
- Bouwjaar
- 1958
- Soort dak
- Zadeldak bedekt met pannen
Oppervlakten en inhoud
- Gebruiksoppervlakten
- Wonen
- 91 m²
- Overige inpandige ruimte
- 19 m²
- Externe bergruimte
- 33 m²
- Perceel
- 499 m²
- Inhoud
- 396 m³
Indeling
- Aantal kamers
- 4 kamers (3 slaapkamers)
- Aantal badkamers
- 1 badkamer en 1 apart toilet
- Badkamervoorzieningen
- Douche, toilet, en wastafelmeubel
- Aantal woonlagen
- 2 woonlagen en een zolder
Energie
- Energielabel
- C
- Isolatie
- Dakisolatie, gedeeltelijk dubbel glas en muurisolatie
- Verwarming
- Cv-ketel en gaskachels
- Warm water
- Cv-ketel
- Cv-ketel
- Kombi Kompact HRE Intergas (2016, eigendom)
Kadastrale gegevens
- BERGUM C 3445
- Kadastrale kaart
- Oppervlakte
- 499 m²
- Eigendomssituatie
- Volle eigendom
Buitenruimte
- Ligging
- In woonwijk
- Tuin
- Achtertuin en voortuin
Garage
- Soort garage
- Carport en vrijstaande houten garage
- Capaciteit
- 1 auto
- Voorzieningen
- Elektra
Parkeergelegenheid
- Soort parkeergelegenheid
- Openbaar parkeren
Foto's 52
© 2001-2025 funda



















































