
Omschrijving
Instapklaar 3-kamer appartement in hartje Geldrop, met modern comfort, energielabel A en een riant dakterras op het zuidoosten.Gelegen in een goed onderhouden complex met gezonde VvE en berging.Optioneel: eigen parkeerplaats op afgesloten terrein.
BIJZONDERHEDEN:
- Mooi 3-kamer appartement in het centrum van Geldrop;
- Moderne keuken en badkamer;
- Groot dakterras op het zuid-oosten;
- Goed onderhouden;
- Gezonde VvE, de maandelijkse servicekosten bedragen € 75;
- Energielabel A;
- Berging onder in het gebouw;
- Separaat aan te kopen: een parkeerplaats op eigen terrein;
- Centrale ligging op loopafstand van alle voorzieningen.
- De meterkast is in 2022 vernieuwd en voorzien van 3-fasenstroom. Aan de achterzijde van het appartement zijn rolluiken geplaatst.
ALGEMEEN:
Heerlijk wonen in dit mooie driekamer appartement in het centrum van Geldrop met uitzicht op de winkels en leuke restaurants en terrasjes. Midden in de levendigheid van het centrum, maar voor je rust kun je heerlijk ontspannen op je dakterras aan de achterzijde van het appartement.
Het appartement is tiptop in orde en Instapklaar. Wat denk je van een lichte woonkamer met zicht op de straat, een moderne keuken en badkamer, twee slaapkamers met elk toegang tot het dakterras, een wasruimte met aansluitingen voor het witgoed en beneden in het complex een berging. Het is mogelijk om separaat een parkeerplaats op eigen terrein aan te kopen. We vertellen er je tijdens de bezichtiging graag meer over.
BEGANE GROND
COMPLEX:
Het bellentableau zit aan de buitenzijde en is voorzien van een camera. In de entreehal van het complex zijn de brievenbussen en de trapopgang naar de appartementen. Op de eerste verdieping aangekomen is er een portiek met twee voordeuren. Welkom bij appartement 95A.
BEGANE GROND
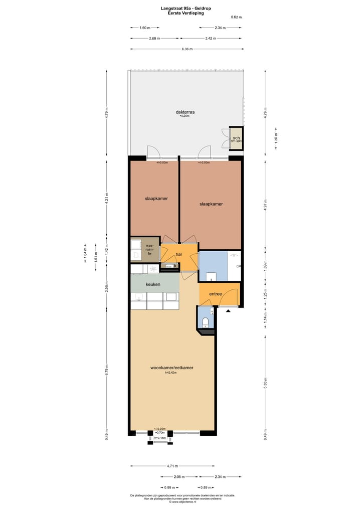
HAL & ENTREE:
De hal heeft een open verbinding met de woonkamer en keuken en ruim genoeg voor een gaderobe en kastje. Hier hangt tevens de intercom. In de hal is de deur naar de gedeeltelijk betegelde toiletruimte met een staand toilet gecombineerd met een bijpassend fonteintje.
OPEN KEUKEN:
De moderne keuken is in 2022 geplaatst en bestaat uit een wandopstelling en een kook-/spoeleiland. De keuken is van alle gemakken voorzien zoals een vaatwasmachine, een koelkast, een vriezer, een oven en een inductie met een Bora kookeilandafzuiging. Echt een beauty van een keuken met extra features zoals een apothekerskast en strak gestucte wanden. Een mooie, strak vormgegeven keuken met volop werk- en bergruimte.
WOONKAMER:
Wat een heerlijke woonkamer! Veel ruimte en licht. De woonkamer beslaat de volledige breedte van het appartement zodat je meer dan genoeg ruimte hebt voor een eethoek en zithoek. Een grote, speelse raampartij zorgt voor veel licht. Er is zelfs een klein erkertje waar je verder links en rechts de straat kunt inkijken. Op de vloer ligt, net zoals in de keuken en slaapkamers een mooie PVC vloer (geschikt voor vloerverwarming)
WASRUIMTE:
Tussen het woon- en slaapgedeelte is een hal die het centrale deel van het appartement vormt. Deze geeft je toegang tot de slaapkamers, de berging/wasruimte, de kast met de cv, de mechanische ventilatie en de unit van de vloerverwarming, de moderne badkamer en de ruime woonkamer met open keuken.
BADKAMER:
De badkamer heeft nieuwe looks gekregen. Er is een nieuw bad met douchegelegenheid geplaatst in 2025 voorzien van een nieuwe thermostaatkraan, douchestang en –kop. Maar daar blijft het niet bij. Ook de badkamermeubels zijn nieuw en er hangt een nieuwe spiegel met geïntegreerde verlichting en verwarming. Alles is weer fris gewit en gekit. Niets meer aan doen; alleen maar genieten!
SLAAPKAMERS:
Dit appartement heeft twee slaapkamers die aan de achterzijde van het appartement liggen, grenzend aan het dakterras. Heerlijk rustig slapen dus. Het zijn beide ruime slaapkamers. Een van de kamers is nu in gebruik al werk-/kastenkamer. De andere slaapkamers is nóg ruimer. Een grote raampartij geeft ook hier veel licht. Beide kamers hebben elektrische rolluiken en (hor)deuren naar het dakterras.
DAKTERRAS:
Wat een leuk terras! Er hangt een grote zonneluifel zodat je altijd in de schaduw kunt zitten. Er is genoeg plaats voor een tuintafel of loungeset met een handige berging voor je tuingereedschap, kussens etc. Je kunt tot in de late uurtjes genieten op dit fijne terras!
BERGING & PARKEERPLAATS:
De praktische berging biedt extra opbergruimte en is voorzien van elektra. Achter het gebouw bevindt zich een parkeerplaats, die separaat kan worden aangekocht.
OMGEVING:
Het appartement ligt in het centrum van Geldrop op loopafstand van alle voorzieningen en leuke restaurants en terrasjes. Hier is het goed toeven! Geldrop is eigenlijk een dorp, maar heeft stadse eigenschappen zoals een eigen treinstation, een ziekenhuis, een bijzondere driebeukige kruisbasiliek en een kasteel bijvoorbeeld. Eigenlijk te veel om op te noemen.
Kortom: dit appartement moet je zelf ervaren. Kom gerust langs, we laten het je graag zien!
Kenmerken
Overdracht
- Servicekosten
- € 75 per maand
- Laatste vraagprijs
- € 399.000 kosten koper
- Vraagprijs per m²
- € 4.750
- Status
- Verkocht
- Bijdrage VvE
- € 75,00 per maand
Bouw
- Soort appartement
- Portiekflat (appartement)
- Soort bouw
- Bestaande bouw
- Bouwjaar
- 1994
- Soort dak
- Plat dak bedekt met bitumineuze dakbedekking
Oppervlakten en inhoud
- Gebruiksoppervlakten
- Wonen
- 84 m²
- Gebouwgebonden buitenruimte
- 29 m²
- Externe bergruimte
- 7 m²
- Inhoud
- 229 m³
Indeling
- Aantal kamers
- 3 kamers (2 slaapkamers)
- Aantal badkamers
- 1 badkamer en 1 apart toilet
- Badkamervoorzieningen
- Ligbad en wastafelmeubel
- Aantal woonlagen
- 2 woonlagen
- Voorzieningen
- Buitenzonwering, glasvezelkabel, mechanische ventilatie, natuurlijke ventilatie, en rolluiken
- Gelegen op
- 1e woonlaag
Energie
- Energielabel
- A
- Isolatie
- Dakisolatie, dubbel glas, HR-glas en muurisolatie
- Verwarming
- Cv-ketel
- Warm water
- Cv-ketel
- Cv-ketel
- Nefit (gas gestookt combiketel uit 2015, eigendom)
Kadastrale gegevens
- GELDROP D 5629
- Kadastrale kaart
- Eigendomssituatie
- Volle eigendom
Buitenruimte
- Ligging
- In centrum
- Balkon/dakterras
- Dakterras aanwezig
Bergruimte
- Schuur/berging
- Inpandig
- Voorzieningen
- Elektra
- Isolatie
- Dakisolatie en muurisolatie
Parkeergelegenheid
- Soort parkeergelegenheid
- Op eigen terrein en openbaar parkeren
VvE checklist
- Inschrijving KvK
- Ja
- Jaarlijkse vergadering
- Ja
- Periodieke bijdrage
- Ja (€ 75,00 per maand)
- Reservefonds aanwezig
- Ja
- Onderhoudsplan
- Ja
- Opstalverzekering
- Ja
Foto's 46
© 2001-2025 funda













































