Dit huis op Funda: https://www.funda.nl/detail/koop/geldrop/huis-katoenstraat-1/43822253/

Omschrijving
Katoenstraat 1 te Geldrop.
SFEERVOLLE HOEKWONING MET BERGING, VOLLEDIG ONDERKELDERDE GARAGE, RUIME ACHTERTUIN EN ROYALE ACHTEROM.
BEGANE GROND:
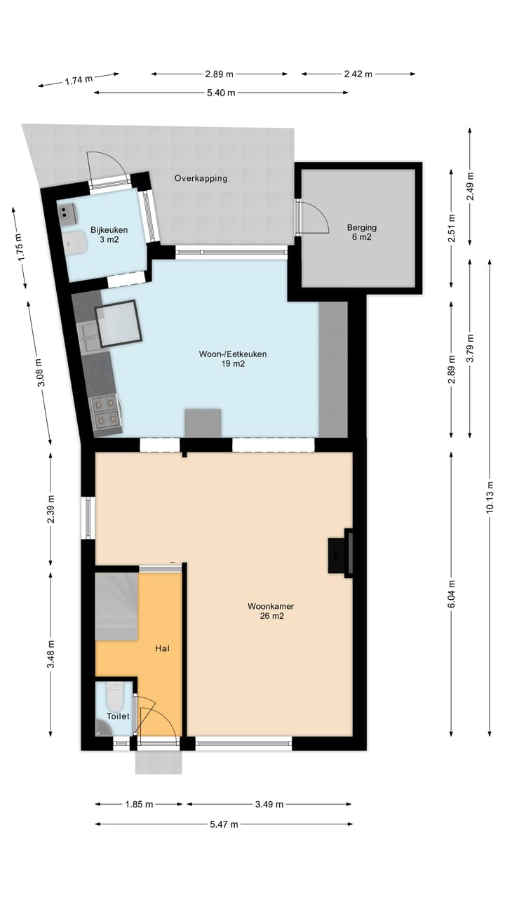
Overdekte entree; hal met vloerbedekking, energiemeters en trapopgang naar 1e verdieping.
Tot plafond betegelde toiletruimte met hoekfonteintje.
Sfeervolle woonkamer, ± 26 m², met zeil, sfeervolle schouw met houtkachel en handmatig bedienbaar rolluik.
Woon-/eetkeuken, ± 19 m², voorzien van een tegelvloer met vloerverwarming, veel kastruimte en inbouwapparatuur, t.w.: 4-pits gaskookplaat, oven en afzuigkap.
Bijkeuken met combi-ketel (Nefit Smartline HR/c uit ± 2005), uitstortgootsteen en deur naar de tuin met overkapping.
1E VERDIEPING:
Overloop met vloerbedekking.
Slaapkamer, ± 11 m², met zeil, inbouwkast en handmatig bedienbaar rolluik.
Slaapkamer, ± 10 m², met vloerbedekking, badmeubel met wastafel en inbouwkast.
Slaapkamer, ± 5 m², met vloerbedekking, inbouwkast, handmatig bedienbaar rolluik en deur naar plat dak.
Tot plafond betegelde badkamer met douche, vaste wastafel en verwarmingslamp.
2E VERDIEPING:
Voorzolder met aan weerszijden berging.
Kamer met dakvenster. Door middel van het plaatsen van een dakopbouw, kan hier een 4e slaapkamer gerealiseerd worden.
TUIN:
Nette Voortuin.
Ruime achtertuin met overkapping, terras, beplanting en berging.
GARAGE:
Achter op het perceel bevindt zich een royale garage, ± 29 m². De garage is volledig onderkelderd en voorzien van elektra en krachtstroom. De garage is goed bereikbaar door middel van een royale achterom.
BIJZONDERHEDEN:
* Gehele woning is voorzien van isolerende beglazing, muurisolatie en dakisolatie.
* De woning is deels voorzien van handmatig bedienbare rolluiken.
* Energielabel: D.
* Perceeloppervlakte: ± 205 m².
* Woonoppervlakte: ± 90 m².
* Inhoud woning: ± 407 m³.
* Bouwjaar woning: ± 1954.
* Koper dient rekening te houden met moderniseringskosten.
FIJNE HOEKWONING MET RUIME GARAGE.
Kenmerken
Overdracht
- Laatste vraagprijs
- € 365.000 kosten koper
- Vraagprijs per m²
- € 4.056
- Status
- Verkocht
Bouw
- Soort woonhuis
- Eengezinswoning, hoekwoning
- Soort bouw
- Bestaande bouw
- Bouwjaar
- 1954
- Soort dak
- Zadeldak bedekt met pannen
Oppervlakten en inhoud
- Gebruiksoppervlakten
- Wonen
- 90 m²
- Overige inpandige ruimte
- 11 m²
- Gebouwgebonden buitenruimte
- 37 m²
- Externe bergruimte
- 57 m²
- Perceel
- 205 m²
- Inhoud
- 407 m³
Indeling
- Aantal kamers
- 5 kamers (3 slaapkamers)
- Aantal badkamers
- 1 badkamer en 1 apart toilet
- Badkamervoorzieningen
- Douche en wastafel
- Aantal woonlagen
- 3 woonlagen
- Voorzieningen
- Glasvezelkabel en natuurlijke ventilatie
Energie
- Energielabel
- Isolatie
- Dakisolatie, dubbel glas, muurisolatie en vloerisolatie
- Verwarming
- Cv-ketel en gedeeltelijke vloerverwarming
- Warm water
- Cv-ketel
- Cv-ketel
- Nefit Smartline HR/C (gas gestookt combiketel uit 2005, eigendom)
Kadastrale gegevens
- GELDROP C 5248
- Kadastrale kaart
- Oppervlakte
- 205 m²
- Eigendomssituatie
- Volle eigendom
Buitenruimte
- Ligging
- In woonwijk
- Tuin
- Achtertuin en voortuin
- Achtertuin
- 112 m² (16,00 meter diep en 7,00 meter breed)
- Ligging tuin
- Gelegen op het westen bereikbaar via achterom
Garage
- Soort garage
- Vrijstaande stenen garage
- Capaciteit
- 1 auto
- Voorzieningen
- Elektra
Parkeergelegenheid
- Soort parkeergelegenheid
- Openbaar parkeren
Foto's 48
© 2001-2026 funda















































