
Omschrijving
Deze statige, exclusieve, vrijstaande villa is prachtig gelegen aan het riviertje De Giessen. Direct aan het water van De Giessen biedt deze woning volop woon- en leefruimte op een woonoppervlakte van maar liefst 442 m² inclusief de garage en het souterrain. Via de prachtig aangelegde tuin met meerdere terrassen is het hier optimaal genieten van het buitenleven. De privéaanlegsteiger voor een eigen boot maakt het geheel van wonen aan het water compleet.
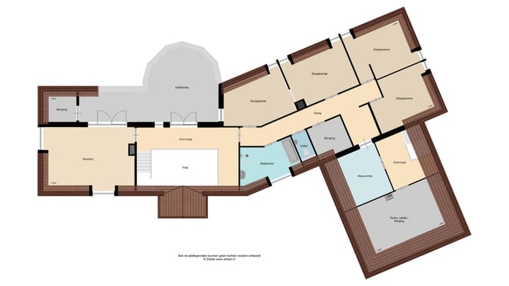
De begane grond omvat naast de meer dan riante woonkamer die een panoramisch uitzicht over het water biedt, een gezellige woonkeuken, maar ook een luxueuze hoofdslaapkamer met een badkamer en-suite. Op de eerste verdieping bevinden zich vier slaapkamers, een kantoorruimte en een dakterras eveneens met zicht over de Giessen. Het souterrain biedt een wellnessruimte met sauna en stoomcabine.
De tuin, met meerdere terrassen en volwassen groen is omgeven door hoge haagbeplanting en ademt een oase van rust en privacy. De ruime oprit biedt parkeergelegenheid voor minimaal twee auto’s voor de inpandige garage.
Gelegen op korte afstand van het dorpscentrum en op slechts 15 minuten van het centrum van Gorinchem zijn er verder uitstekende verbindingen naar de uitvalswegen richting Rotterdam en Breda.
Fietsen, wandelen en varen door de Alblasserwaard zijn populaire activiteiten, en de omgeving biedt een overvloed aan natuurbeleving.
Giessenburg, onderdeel van de gemeente Molenlanden, biedt volop mogelijkheden voor natuurbeleving. Fietsen, wandelen en varen door de Alblasserwaard met haar karakteristieke knotwilgen en weidegebieden zijn populaire activiteiten. In de zomer kunt u genieten van weide- en watervogels en in de winter van schaatstochten op natuurijs.
Bij binnenkomst via de statige entree ervaart u direct de ruimtelijkheid van deze woning met een luxe marmeren vloer op de gehele begane grond en een vide met de fraaie trap naar de verdieping. De glazen dubbele paneeldeuren bieden toegang tot de royale living en de woonkeuken. Via de gang aan de rechterzijde zijn verder de slaapkamer met de badkamer en-suite, de bijkeuken, de toiletruimte, de inpandige garage, en de meterkast toegankelijk.
De meer dan royale woonkamer van ca. 77 m² biedt een panoramisch uitzicht op het water van De Giessen. Door de speelse indeling zijn diverse mogelijkheden voor meerdere zit- en/of eetgedeeltes. De erker is rondom voorzien van raampartijen die zorgen voor schitterend lichtinval. Daarnaast biedt de op de maat geplaatste zitbank een heerlijk plekje om van het uitzicht te kunnen genieten. In het zitgedeelte is een sfeervolle gashaard met een marmeren schouw aangebracht en via de dubbele openslaande deuren heeft u toegang tot het naastgelegen terras in de tuin. De gehele woonkamer is voorzien van inbouwspots.
De keuken, eveneens met uitzicht op het water, biedt een sfeervolle kookruimte en voldoende plaats voor de eethoek. De keuken bestaat uit een roomkleurige en kersenhouten inrichting, afgewerkt met een antracietkleurig granieten aanrechtblad.Verder voorzien van moderne apparatuur: een Siemens inductie-kookplaat, een separate wokbrander, een Imperial afzuigkap, een Siemens combimagnetron, een vaatwasser, een Quooker, en een koel- en vrieskast. Via dubbele openslaande deuren bereikt u het terras aan het water.
Naast de keuken bevindt zich de bijkeuken. In de bijkeuken bevindt zich de opstelplaats voor de wasmachine en wasdroger die zijn weggewerkt achter een gesloten kast met aanrecht en een kastenwand. Vanuit de bijkeuken is er toegang tot de kelder. De klassieke zwart-wit betegelde toiletruimte is voorzien van een wandcloset en een fonteintje.
De luxe hoofdslaapkamer op de begane grond beschikt over een badkamer en-suite en biedt prachtig uitzicht over het water. De slaapkamer beschikt over inbouwkasten over de volledige breedte van de kamer en inbouwspots. Directe toegang tot het terras aan de achterzijde van de woning maakt deze slaapkamer compleet.
De overloop van de eerste verdieping met vide biedt een lichte ruimte en toegang tot alle kamers op de eerste verdieping. Via een openslaande deur is er toegang tot het dakterras en via een vlizotrap is de bergzolder bereikbaar.
De sfeervolle kantoorruimte beschikt over een hoog plafond, inbouwspots, een gashaard met een marmeren schouw en een massief houten vloer. De ruimte heeft toegang tot het dakterras. Het dakterras biedt een panoramisch uitzicht en is ideaal gelegen op het westen voor de middag- en avondzon. Het terras heeft een eigen berging.
De vier aangrenzende slaapkamers bieden een fijne ruimte, waarvan twee slaapkamers zijn voorzien van een dakkapel voor extra ruimte en licht. De wand tussen slaapkamer 3 en 4 is verwijderd. Deze is eenvoudig weer terug te plaatsen voor een zesde slaapkamer. De berging biedt een extra bergruimte op de eerste verdieping.
De ruime tweede badkamer is licht dankzij de dakkapel en ingericht met een badmeubel voorzien van dubbele wastafel, een ligbad met handdouche en een aparte douche. De badkamer is volledig betegeld in zwart-wit en heeft inbouwspots. De separate toiletruimte heeft een wandcloset en een fonteintje en is afgewerkt met klassiek zwart-wit betegeling.
De ruimte boven de garage is benut met een overloop die toegang biedt tot een wasruimte (ca. 12 m²) en een technische ruimte (ca. 29 m²) waar de CV-installatie is opgesteld. Ook bevinden zich hier de stofzuiger- en de ventilatie-installatie. Via een trap is de ondergelegen garage bereikbaar. Daglicht komt binnen via het dakraam.
Via de trap vanuit de bijkeuken is het souterrain bereikbaar en verdeeld in een ‘warm’ deel en een ‘koud’ deel. Het koude deel dient als voorraad-/provisieruimte. In het warme deel bevindt zich de wellness.
De wellnessruimte is voorzien van een sauna en een stoomcabine, de ruimte is volledig betegeld en voorzien van mechanische ventilatie.
Aansluitend aan de woonkamer ligt het grote zonneterras dat is gesitueerd op het zuiden. Perfect om hier de dag te beginnen met een kopje koffie maar waar het de rest van de dag ook heerlijk toeven is.
Indien gewenst zorgt de zonwering voor de benodigde schaduw. Vanaf het terras kijkt u uit over een prachtig onderhouden gazon dat is omzoomd door fraaie beplanting en hoge groene haagbeplanting waardoor privacy gegarandeerd is. Een betegeld pad vormt de verbinding met een tweede terras aan de achterzijde. Deze is gelegen op het westen waar u kunt genieten van de avondzon.
Direct vanuit de keuken en de hoofdslaapkamer heeft u toegang tot een tweede terras, eveneens voorzien van zonwering. Via enkele treden komt u bij de aanlegsteiger, ideaal voor het aanmeren van een eigen boot om volop van de omgeving te genieten. Dit terras is afsluitbaar met een laag hek. De twee terrassen aan de woning zijn verbonden door een grindpad, waardoor een naadloze overgang tussen de buitenruimtes ontstaat.
Met name in de tuin ervaart u hier het gehele jaar door de seizoenen-ontwikkelingen met het ontluikende groen in de lente en de zomer waarin de tuin een groene oase is en de bloemen volop bloeien. Vervolgens de herfstperiode die prachtige rode en oranje tinten brengt en tot slot de winter die bij voldoende vorst ijspret in de achtertuin biedt als er op De Giessen geschaatst kan worden.
De inpandige garage biedt ruimte voor twee auto’s met daar omheen extra bergruimte. Vanuit de garage is er toegang tot de woning en de eerste verdieping. De extra berging biedt ruimte voor de stalling van fietsen, kliko’s en tuin- en vaargereedschap.
Algemene informatie
Verwarming geschiedt middels een Intergas CV-ketel, bouwjaar 2012. Warmwatervoorziening geschiedt middels een Remeha CV-ketel, bouwjaar 2011. Daarnaast is de gehele woning voorzien van vloerverwarming.
De tuin is voorzien van een beregeningsinstallatie en alle terrassen rondom de woning zijn voorzien van zonwering.
Kenmerken
Overdracht
- Laatste vraagprijs
- € 1.995.000 kosten koper
- Vraagprijs per m²
- € 5.833
- Status
- Verkocht
Bouw
- Soort woonhuis
- Villa, vrijstaande woning
- Soort bouw
- Bestaande bouw
- Bouwjaar
- 2000
- Soort dak
- Samengesteld dak bedekt met pannen
Oppervlakten en inhoud
- Gebruiksoppervlakten
- Wonen
- 342 m²
- Overige inpandige ruimte
- 100 m²
- Gebouwgebonden buitenruimte
- 61 m²
- Perceel
- 1.487 m²
- Inhoud
- 1.643 m³
Indeling
- Aantal kamers
- 7 kamers (6 slaapkamers)
- Aantal badkamers
- 3 badkamers en 1 apart toilet
- Badkamervoorzieningen
- Sauna, douche, dubbele wastafel, 2 ligbaden, toilet, stoomcabine, 2 wastafels, en inloopdouche
- Aantal woonlagen
- 2 woonlagen en een kelder
- Voorzieningen
- Dakraam, mechanische ventilatie, en sauna
Energie
- Energielabel
- A
- Isolatie
- Dakisolatie, driedubbel glas, dubbel glas, eco-bouw, geen spouw, grotendeels dubbelglas, HR-glas, kierdichting, muurisolatie, vloerisolatie en volledig geïsoleerd
- Verwarming
- Cv-ketel, gehele vloerverwarming en warmtepomp
- Warm water
- Cv-ketel
- Cv-ketel
- Intergas (gas gestookt combiketel uit 2012, eigendom)
Kadastrale gegevens
- GIESSENBURG G 2570
- Kadastrale kaart
- Oppervlakte
- 1.465 m²
- Eigendomssituatie
- Volle eigendom
- GIESSENBURG G 3876
- Kadastrale kaart
- Oppervlakte
- 22 m²
- Eigendomssituatie
- Volle eigendom
Buitenruimte
- Ligging
- Aan rustige weg, aan vaarwater, landelijk gelegen en vrij uitzicht
- Tuin
- Tuin rondom en zonneterras
- Balkon/dakterras
- Dakterras aanwezig
Bergruimte
- Schuur/berging
- Inpandig
- Voorzieningen
- Elektra
Garage
- Soort garage
- Aangebouwde stenen garage
- Capaciteit
- 2 auto's
- Voorzieningen
- Elektrische deur en elektra
- Isolatie
- Volledig geïsoleerd
Parkeergelegenheid
- Soort parkeergelegenheid
- Op eigen terrein
Foto's 62
© 2001-2026 funda





























































