Dit huis op Funda: https://www.funda.nl/detail/koop/gieten/huis-de-wiemel-8/43156986/

Omschrijving
Centraal in Gieten, op loopafstand van het winkelcentrum, een basisschool en het sportcomplex, ligt deze 2-1-KAP-WONING met aangebouwde garage, carport en recent opnieuw aangelegde tuin, op een perceel van 349 m² eigen grond.
In deze leuke woning vindt u onder andere een ruime, lichte woonkamer, een open keuken voorzien van diverse inbouwapparatuur, 3 slaapkamers en een moderne badkamer (dit jaar net vernieuwd!) op de eerste verdieping en nog een riante 4e slaapkamer op de tweede verdieping.
De woning is uitstekend geïsoleerd, voorzien van 16 zonnepanelen en van een hybride warmtepomp (energielabel A!). Onder de carport is een laadpunt voor een elektrische auto aanwezig.
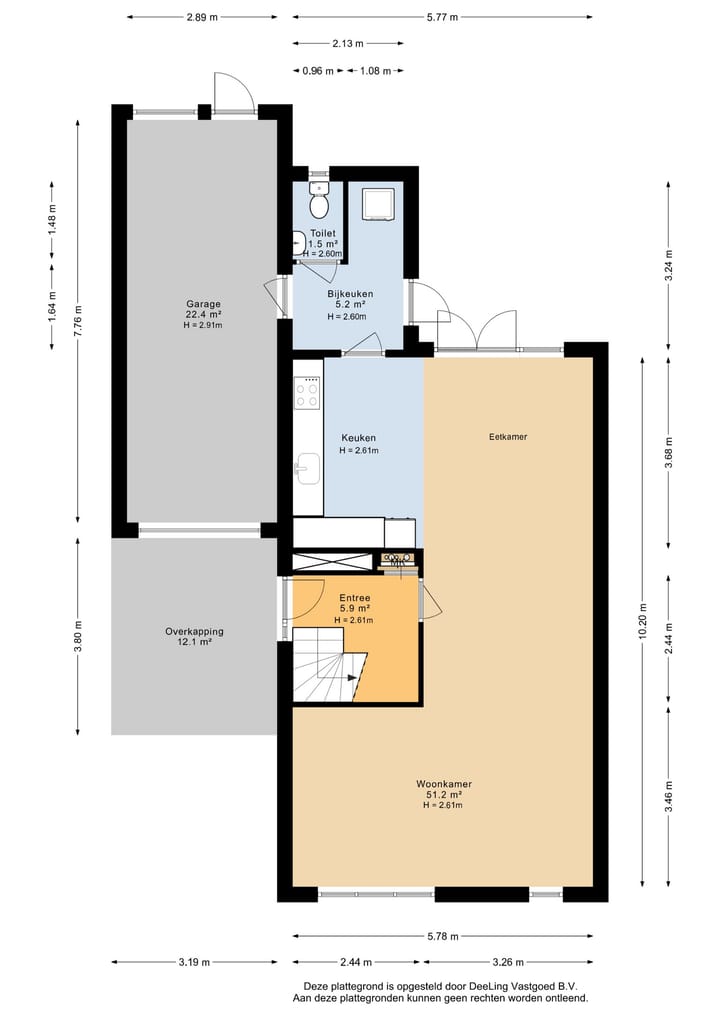
De volledige indeling is als volgt:
BEGANE GROND:
entree onder de carport, hal met garderobe, meterkast, trapopgang, ruime, lichte woonkamer met aan de voorzijde bij het zitgedeelte een fraaie glazen pui en aan de tuinzijde bij het eetgedeelte een schuifpui naar de tuin, moderne open keuken (2018) met riante hoekopstelling voorzien van inductiekookplaat, afzuigkap, combi-oven, koelkast, vaatwasser, apothekerskast en Quooker, bijkeuken met witgoedaansluitingen en toilet voorzien van fonteintje, deur naar de tuin en toegang naar de aangebouwde garage.
Middels een vaste, open trap kan vanuit de hal toegang worden verkregen tot de:..
EERSTE VERDIEPING:
overloop met trapopgang naar de tweede verdieping, 3 slaapkamers en een moderne badkamer voorzien van inloopdouche, wastafelmeubel met 2 wastafels, toilet en designradiator.
Middels een vaste, open trap kan vanaf de overloop toegang worden verkregen tot de:..
TWEEDE VERDIEPING:
overloop met CV opstelling, warmtepomp en mechanische ventilatiebox en een riante slaapkamer (gerealiseerd in 2023), aan de voorzijde voorzien van een dakkapel. Aan de achterzijde van de eerste verdieping zijn in 2024 rolluiken geplaatst.
Middels een vlizotrap kan vanuit de slaapkamer toegang worden verkregen tot de:...
VLIERING:
zolderberging.
VERDER:
de tuin is in 2024 opnieuw aangelegd, is op het zuidwesten gesitueerd. U heeft hier volop zon!
De woning is gebouwd in 2006, is keurig onderhouden en volledig geïsoleerd. Verwarming en warm water wordt verkregen middels een CV ketel in combinatie met een hybride warmtepomp (geïnstalleerd in september 2024). Op het dak zijn (ook in 2024) 16 zonnepanelen aangebracht.
HET DORP:
Gieten is een gezellig dorp waarin jaarlijks verschillende activiteiten worden georganiseerd. Alle basisvoorzieningen zijn binnen handbereik. U kunt hierbij denken aan een uitgebreid winkelbestand, 3 basisscholen, een school voor voortgezet onderwijs, medische voorzieningen, horeca, sportfaciliteiten en een openlucht zwembad.
Het dorp ligt centraal ten opzichte van uitvalswegen naar onder andere Groningen, Assen, Emmen en Veendam. Ook is er een uitstekende openbaar vervoersverbinding met deze plaatsen.
De omgeving van Gieten is veelzijdig, met enerzijds bossen en anderzijds landerijen. U kunt hier heerlijk wandelen en fietsen!
Deze informatie is geheel vrijblijvend, ten aanzien van de juistheid van de vermelde informatie kan door ons geen aansprakelijkheid worden aanvaard, noch kan aan de vermelde informatie enig recht worden ontleend.
Kenmerken
Overdracht
- Laatste vraagprijs
- € 499.000 kosten koper
- Vraagprijs per m²
- € 3.261
- Status
- Verkocht
Bouw
- Soort woonhuis
- Eengezinswoning, 2-onder-1-kapwoning
- Soort bouw
- Bestaande bouw
- Bouwjaar
- 2006
- Soort dak
- Samengesteld dak bedekt met bitumineuze dakbedekking en pannen
Oppervlakten en inhoud
- Gebruiksoppervlakten
- Wonen
- 153 m²
- Overige inpandige ruimte
- 22 m²
- Gebouwgebonden buitenruimte
- 12 m²
- Perceel
- 349 m²
- Inhoud
- 660 m³
Indeling
- Aantal kamers
- 5 kamers (4 slaapkamers)
- Aantal badkamers
- 1 badkamer en 1 apart toilet
- Badkamervoorzieningen
- Dubbele wastafel, inloopdouche, en toilet
- Aantal woonlagen
- 3 woonlagen en een vliering
- Voorzieningen
- Mechanische ventilatie en zonnepanelen
Energie
- Energielabel
- A
- Isolatie
- Dakisolatie, dubbel glas, muurisolatie, vloerisolatie en volledig geïsoleerd
- Verwarming
- Cv-ketel en warmtepomp
- Warm water
- Cv-ketel
- Cv-ketel
- Intergas Xtreme met Xtend hybride warmtepomp (gas gestookt combiketel uit 2024, eigendom)
Kadastrale gegevens
- GIETEN E 6519
- Kadastrale kaart
- Oppervlakte
- 349 m²
- Eigendomssituatie
- Volle eigendom
Buitenruimte
- Ligging
- Aan rustige weg, in centrum en in woonwijk
- Tuin
- Achtertuin en voortuin
- Achtertuin
- 150 m² (15,00 meter diep en 10,00 meter breed)
- Ligging tuin
- Gelegen op het zuidwesten
Garage
- Soort garage
- Aangebouwde stenen garage en garage met carport
- Capaciteit
- 1 auto
- Voorzieningen
- Elektra
Parkeergelegenheid
- Soort parkeergelegenheid
- Op eigen terrein
Foto's 53
© 2001-2025 funda




















































