Dit huis op Funda: https://www.funda.nl/detail/koop/glane/huis-glanerbrugstraat-58/43261049/

Glanerbrugstraat 587585 PM GlaneGlane-beekhoek
€ 325.000 k.k.
Omschrijving
Renoveren, creëren, wonen — hoekwoning met grote tuin en eindeloze mogelijkheden
Aan de Glanerbrugstraat ligt deze hoekwoning op een ruim perceel van 680 m², een plek waar het buitenleven en de vrijheid van landelijk wonen je dagelijks omringen. Dit is geen instapklaar huis, maar juist een uitgelezen mogelijkheid voor wie dromen wil omzetten in werkelijkheid. De woning moet volledig worden gerenoveerd, en precies dát maakt het zo uniek: je kunt hier helemaal zelf bepalen hoe de nieuwe indeling, uitstraling en functie eruit komt te zien.
Of je nu denkt aan een gezinswoning, een huis met praktijk- of kantoorruimte, extra opslag, een atelier of hobbyruimte of juist een heerlijke tuin na het opruimen van de bouwval: hier krijg je de kans om iets geheel eigens te creëren.
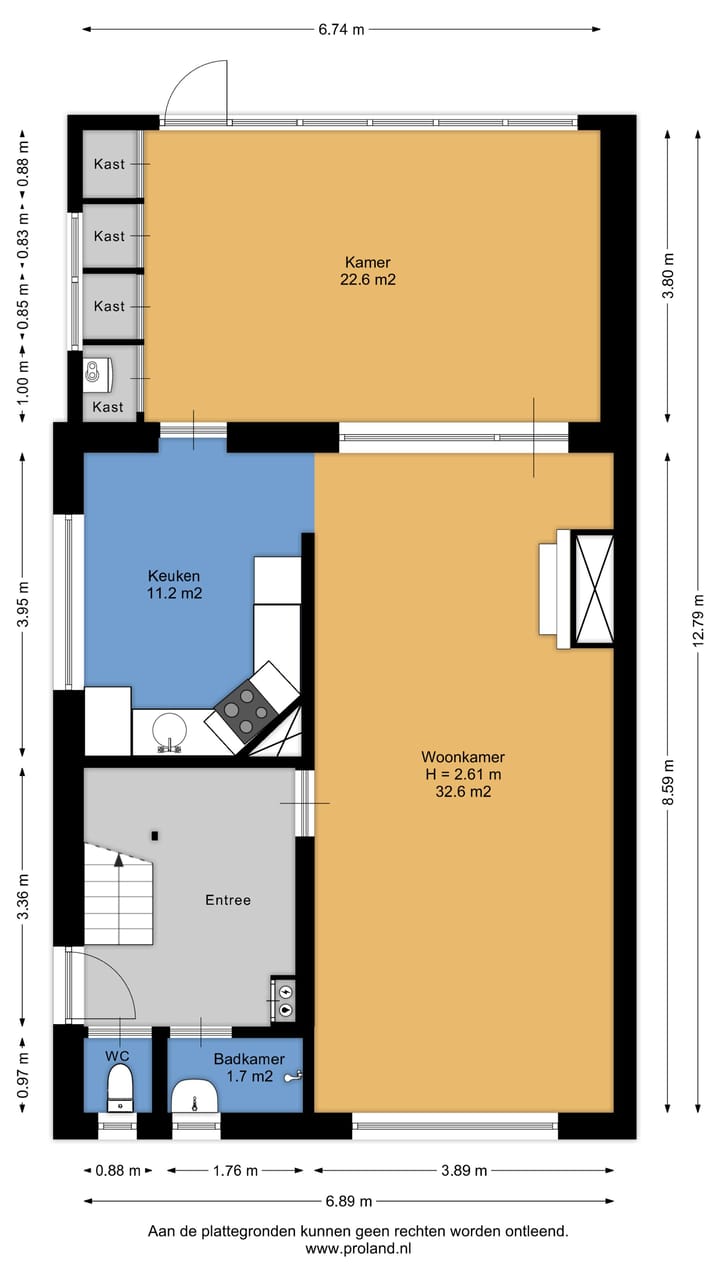
Indeling
Begane grond:
Entree/hal met meterkast, trapopgang, toiletruimte en een doucheruimte. De doorzon woonkamer biedt prettig lichtinval en uitzicht op zowel voor- als achterzijde. De dichte keuken beschikt over een eenvoudig keukenblok en staat in verbinding met de aangebouwde serre, voorzien van vaste kasten waarvan één met de cv-ketel.
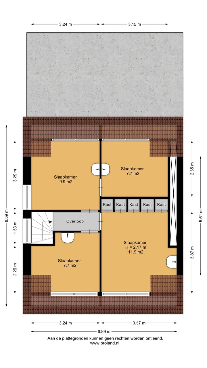
Eerste verdieping
Overloop met toegang tot vier slaapkamers, alle voorzien van een dakkapel en een eigen wastafel.
Bijzonderheden:
- Energielabel F;
- Woonoppervlakte circa 132 m²;
- Inhoud woonhuis circa 432 m³;
- Perceeloppervlakte 680 m² met gebruik van circa 100 m² voorliggende grond;
- CV-ketel AWB Thermo Master 3HR is gehuurd en van bouwjaar 2013.
Algemeen
In de koopovereenkomst zal worden opgenomen dat koper een bankgarantie van 10% van de koopsom dient te stellen, één week na het aflopen van de ontbindende voorwaarde financiering.
De koopovereenkomst wordt schriftelijk vastgelegd in een standaard NVM-model met ouderdoms- en niet-bewoningsclausule, eventueel aangevuld met nader overeengekomen bepalingen.
Een mondelinge koopovereenkomst is niet bindend. Pas wanneer beide partijen de schriftelijke koopovereenkomst hebben ondertekend, is er sprake van een rechtsgeldige koop
Kenmerken
Overdracht
- Aangeboden sinds
- Aanvaarding
- In overleg
- Vraagprijs
- € 325.000 kosten koper
- Vraagprijs per m²
- € 2.462
- Status
- Beschikbaar
Bouw
- Soort woonhuis
- Eengezinswoning, hoekwoning
- Soort bouw
- Bestaande bouw
- Bouwjaar
- 1901
- Soort dak
- Zadeldak bedekt met pannen
Oppervlakten en inhoud
- Gebruiksoppervlakten
- Wonen
- 132 m²
- Externe bergruimte
- 30 m²
- Perceel
- 680 m²
- Inhoud
- 432 m³
Indeling
- Aantal kamers
- 7 kamers (4 slaapkamers)
- Aantal badkamers
- 1 badkamer en 1 apart toilet
- Badkamervoorzieningen
- Douche en wastafel
- Aantal woonlagen
- 2 woonlagen
Energie
- Energielabel
- Isolatie
- Geen isolatie
- Verwarming
- Cv-ketel
- Warm water
- Cv-ketel
- Cv-ketel
- Thermo Master 3HR (gas gestookt combiketel uit 2013, huur)
Kadastrale gegevens
- LOSSER Q 408
- Kadastrale kaart
- Oppervlakte
- 680 m²
- Eigendomssituatie
- Volle eigendom
- LOSSER Q 406
- Kadastrale kaart
- Oppervlakte
- 100 m²
- Eigendomssituatie
- Mandelig
Buitenruimte
- Ligging
- Buiten bebouwde kom en vrij uitzicht
- Tuin
- Achtertuin
- Achtertuin
- 240 m² (24,00 meter diep en 10,00 meter breed)
- Ligging tuin
- Gelegen op het noordwesten
Bergruimte
- Schuur/berging
- Vrijstaande stenen berging
Foto's 35
Plattegronden 4
© 2001-2026 funda






































