Dit huis op Funda: https://www.funda.nl/detail/koop/goes/huis-thorbeckelaan-27/43014704/

Omschrijving
Deze verzorgde hoekwoning uit 1998 is gelegen op een prima locatie in de “Goese Polder”, Prettig wonen zult u in deze kindvriendelijke woonwijk met de basisschool een straat verder en winkelcentrum "De Spinne" op loopafstand. De woning heeft een woonoppervlakte van ca 120 m² verdeeld over drie verdiepingen. Door het verwijderen van de scheidingsmuur tussen de woonkamer en de keuken is er een mooie open leefruimte ontstaan van ca 9.4 m. lang, waar het daglicht vrij spel heeft en u zo via de openslaande deuren de tuin inloopt. In 2017 is de keuken vernieuwd; deze is in lichte kleurstelling uitgevoerd met een fraai granieten aanrechtblad en voorzien van inbouwapparatuur, waaronder een inductiekookplaat en vaatwasser van het merk Neff, een koelkast en een vrieskast.
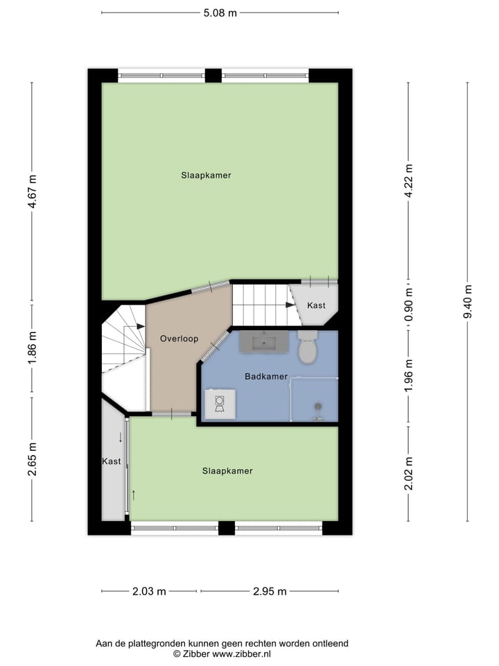
Eerste verdieping
Op de eerste verdieping zijn twee slaapkamers te vinden, waarvan één, aan de achterzijde, extra ruim is; deze is ontstaan uit twee voormalige kamers. Desgewenst kan hier weer heel gemakkelijk de oorspronkelijke 2 slaapkamers van worden gemaakt. De badkamer is vernieuwd in 2018 en biedt een tweede toilet, een wastafelmeubel en een ruime inloopdouche. Ook de wasmachine en droger hebben hier hun plaats.
Tweede verdieping
Op de tweede verdieping bevindt zich een derde (slaap)kamer, waar, weggewerkt in een kast, de c.v. ketel en mechanische ventilatiebox zich bevinden. Aan de achterzijde is de toegang tot een royaal dakterras: een heerlijke plek voor de ochtendkoffie of een momentje in de namiddagzon.
Tuin
De tuin ligt op het noordwesten en heeft heel de dag zon, als die schijnt. Maar ook schaduw, zodat je kunt kiezen waar je op dat moment zin in hebt. Deze tuin is breder dan gemiddeld door de hoekligging en gezellig ingericht met sierbestrating en plantenborders. De tuin is volledig omsloten en biedt daardoor veel privacy en is dan ook veilig voor kinderen en huisdieren. Naast het huis is een breed pad naar de voorkant. Achterin de tuin staan twee praktische bergingen. Er is een vrije achterom aanwezig.
Bijzonderheden
• Hoekwoning met brede tuin en vrije achterom
• Energielabel A
• C. v. ketel Intergas uit 2018
• Luxe keuken (2017) met Neff inbouwapparatuur
• Grote master bedroom (voorheen 2 kamers, eenvoudig terug te realiseren indien gewenst)
• Zolder(slaap)kamer met dakterras
• Deels voorzien van rolluiken, deels voorzien van screens
• Twee bergingen in de tuin
• Rustige ligging nabij voorzieningen
Als u deze woning wilt komen bezichtigen, dan bent u van harte welkom! Klik op de bezichtiging aanvraagbutton waar u dit huis hebt gevonden, vul uw gegevens in en wij zullen snel contact opnemen! Een e-mail sturen of even bellen kan natuurlijk ook!
Anthonise Makelaars werkt met biedingsplatform Eerlijk Bieden. Elke potentieel koper krijgt een inloglink, waar na te zijn ingelogd inzage is in de dataroom, waar alle relevante informatie van dit object te vinden is. Tevens vind je daar een biedingsformulier, waarmee je jouw bieding kunt uitbrengen. Als er meerdere gegadigden zijn wordt er een sluitingsdatum toegekend en krijgt iedere geïnteresseerde dezelfde kans om een bieding uit te brengen. Als er een koper is toegewezen krijgt u als bieder inzicht over hoe het biedingsproces is verlopen.
Deze presentatie hebben wij met zorg samengesteld, doch kun je hieraan geen enkel recht ontlenen.
Kenmerken
Overdracht
- Laatste vraagprijs
- € 349.000 kosten koper
- Vraagprijs per m²
- € 2.908
- Status
- Verkocht
Bouw
- Soort woonhuis
- Eengezinswoning, hoekwoning
- Soort bouw
- Bestaande bouw
- Bouwjaar
- 1998
- Soort dak
- Plat dak bedekt met bitumineuze dakbedekking
Oppervlakten en inhoud
- Gebruiksoppervlakten
- Wonen
- 120 m²
- Gebouwgebonden buitenruimte
- 12 m²
- Externe bergruimte
- 14 m²
- Perceel
- 182 m²
- Inhoud
- 424 m³
Indeling
- Aantal kamers
- 4 kamers (3 slaapkamers)
- Aantal badkamers
- 1 badkamer en 1 apart toilet
- Badkamervoorzieningen
- Douche, toilet, en wastafelmeubel
- Aantal woonlagen
- 3 woonlagen
- Voorzieningen
- Glasvezelkabel, mechanische ventilatie, natuurlijke ventilatie, en rolluiken
Energie
- Energielabel
- Isolatie
- Volledig geïsoleerd
- Verwarming
- Cv-ketel
- Warm water
- Cv-ketel
- Cv-ketel
- Intergas (gas gestookt combiketel uit 2018, eigendom)
Kadastrale gegevens
- GOES A 2924
- Kadastrale kaart
- Oppervlakte
- 182 m²
- Eigendomssituatie
- Volle eigendom
Buitenruimte
- Ligging
- In woonwijk
- Tuin
- Achtertuin en voortuin
- Achtertuin
- 82 m² (11,00 meter diep en 7,50 meter breed)
- Ligging tuin
- Gelegen op het noordwesten bereikbaar via achterom
Bergruimte
- Schuur/berging
- Vrijstaande stenen berging
- Voorzieningen
- Elektra
Parkeergelegenheid
- Soort parkeergelegenheid
- Openbaar parkeren
Foto's 47
© 2001-2026 funda














































