
Omschrijving
Mooi gelegen en instapklaar modern 3-kamerappartement, met een recent vernieuwde keuken en badkamer, een riant balkon op het zuiden en een eigen parkeerplaats welke is gelegen in de fraaie woningwand van Goirle. Aan de voorzijde is er een mooi zicht over het tegenover gelegen bosgebied. De achterzijde grenst aan de A58 die door de toegepaste geluidsisolatie nauwelijks merkbaar is en welke juist voor meer privacy zorgt. Het is heerlijk wonen in de groene wijk Boschkens voor zowel jong als oud, dicht bij het centrum van Tilburg en dat van Goirle. Doordat de wijk over eigen toegangswegen beschikt, komt er alleen bestemmingsverkeer.
Algemeen
Bouwjaar: 2008
Woonoppervlakte: 90 m2
Inhoud: 297 m3
Energielabel: A+
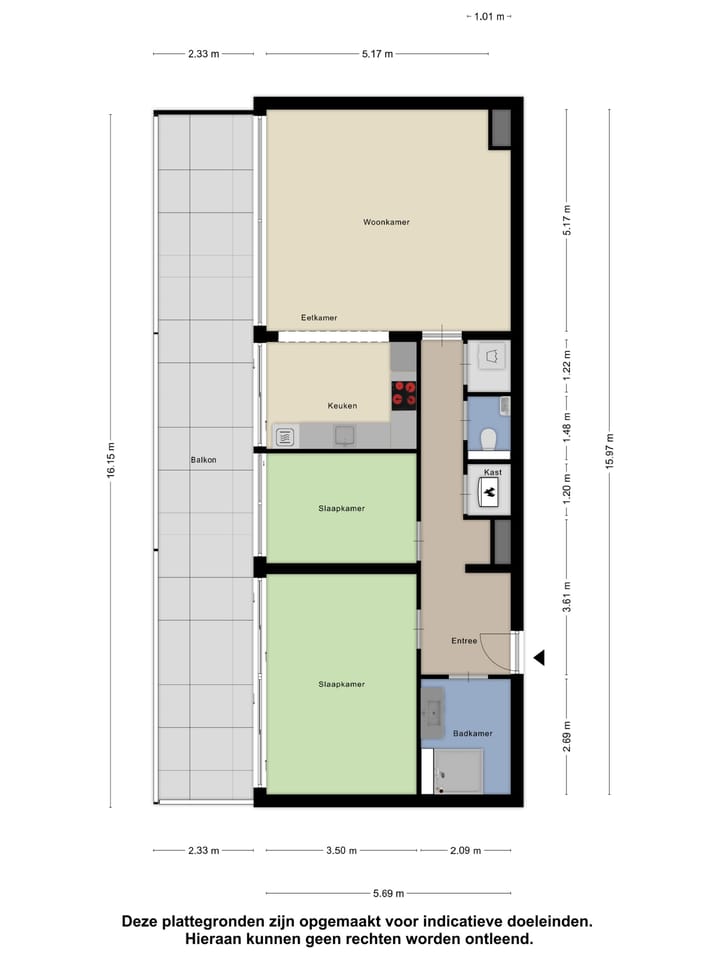
Indeling
Begane grond:
Gesloten entree met intercom en videofoon, brievenbussen en toegang tot de lift of het trappenhuis. Het achterterrein is gesloten middels een elektrische poort (afstandsbediening) en biedt plaats aan de parkeerplaatsen en de containerruimte. Dit appartement beschikt over een eigen parkeerplaats en een eigen berging.
Indeling appartement:
Entree/hal met toegang tot de twee slaapkamers, de badkamer, de meterkast, het toilet voorzien van een fonteintje, de provisieruimte en de leefruimtes.
Wat direct opvalt bij binnenkomst van de leefruimte, is het enorme lichtinval door de kamerhoge raampartijen. Hierdoor komt er veel natuurlijk licht de woonkamer in en voelt de ruimte erg prettig aan. De vloer is voorzien van plavuizen vloertegels en de wanden en het plafond hebben een stucwerk afwerking. Het gehele appartement is voorzien van vloerverwarming.
Dankzij de prettige indeling van het woongedeelte is de woonkamer gemakkelijk in te richten. Er is voldoende ruimte voor het plaatsen van een grote zithoek.
In open verbinding met de zithoek is de open, L-vormige keuken te vinden. De keuken is in 2021 geplaatst en geeft dankzij de donkere fronten en werkblad een moderne en tijdloze uitstraling. Middels de boven- en onderkasten is er ruim voldoende bergruimte aanwezig. Het volgende apparatuur is aanwezig; een kookplaat met geïntegreerde afzuigkap, een koel/vries-combinatie, vaatwasser, Quooker en een combi-oven. De echte thuis-chef kan zich hier volledig uitleven.
Via de schuifpui is er toegang tot het balkon.
Beide slaapkamers zijn keurig afgewerkt met een laminaatvloer, gestucte wanden en een spuitwerk plafondafwerking. Er is voldoende ruimte voor het plaatsen van een (tweepersoons)bed en een kledingkast. Ook deze kamers genieten van veel natuurlijk lichtinval en hebben direct toegang tot het balkon.
De moderne badkamer is in 2021 vernieuwd en geniet van een ruime inloopdouche, een dubbel wastafelmeubel en een dubbele kast meubel. Er is mechanische ventilatie aanwezig.
De praktische provisieruimte is voorzien van de aansluitingen ten behoeve van de wasapparatuur.
Balkon:
Het riante balkon van ruim 37 m2 is gelegen op het zonnige Zuiden. Er is hier voldoende ruimte voor het plaatsen van een eettafel en een loungehoek. Je kan hier heerlijk genieten van het uitzicht op de bomen en de natuur.
Extra informatie;
- De VvE bedraagt €229 per maand
- Instapklaar
- De warmtepomp wordt gehuurd
- De slaapkamers beschikken over rolluiken
- Over de volledige breedte van het balkon hangen elektrisch bedienbare knikarmschermen
Deze informatie is door ons met de nodige zorgvuldigheid samengesteld. Onzerzijds wordt echter geen enkele aansprakelijkheid aanvaard voor enige onvolledigheid, onjuistheid of anderszins, dan wel de gevolgen daarvan. Alle opgegeven maten en oppervlakten zijn indicatief.
Toelichtingsclausule NEN2580: De Meetinstructie is gebaseerd op de NEN2580. De Meetinstructie is bedoeld om een meer eenduidige manier van meten toe te passen voor het geven van een indicatie van de gebruiksoppervlakte. De Meetinstructie sluit verschillen in meetuitkomsten niet volledig uit, door bijvoorbeeld interpretatieverschillen, afrondingen of beperkingen bij het uitvoeren van de meting.
Kenmerken
Overdracht
- Laatste vraagprijs
- € 485.000 kosten koper
- Vraagprijs per m²
- € 5.389
- Status
- Verkocht
- Bijdrage VvE
- € 229,00 per maand
Bouw
- Soort appartement
- Portiekflat (appartement)
- Soort bouw
- Bestaande bouw
- Bouwjaar
- 2008
- Soort dak
- Plat dak bedekt met bitumineuze dakbedekking
Oppervlakten en inhoud
- Gebruiksoppervlakten
- Wonen
- 90 m²
- Gebouwgebonden buitenruimte
- 37 m²
- Externe bergruimte
- 14 m²
- Inhoud
- 297 m³
Indeling
- Aantal kamers
- 3 kamers (2 slaapkamers)
- Aantal badkamers
- 1 badkamer en 1 apart toilet
- Badkamervoorzieningen
- Dubbele wastafel, inloopdouche, en wastafelmeubel
- Aantal woonlagen
- 1 woonlaag
- Voorzieningen
- Buitenzonwering, glasvezelkabel, lift, mechanische ventilatie, rolluiken, schuifpui, en TV kabel
- Gelegen op
- 3e woonlaag
Energie
- Energielabel
- A+
- Isolatie
- Dakisolatie, dubbel glas en vloerisolatie
- Verwarming
- Gehele vloerverwarming en warmtepomp
- Warm water
- Elektrische boiler (huur)
Kadastrale gegevens
- GOIRLE A 4211
- Kadastrale kaart
- Eigendomssituatie
- Volle eigendom
Buitenruimte
- Ligging
- Aan bosrand, aan rustige weg en in woonwijk
- Tuin
- Zonneterras
- Zonneterras
- 38 m² (16,15 meter diep en 2,33 meter breed)
- Ligging tuin
- Gelegen op het zuiden
- Balkon/dakterras
- Balkon aanwezig
Bergruimte
- Schuur/berging
- Inpandig
Garage
- Soort garage
- Parkeerplaats
Parkeergelegenheid
- Soort parkeergelegenheid
- Op afgesloten terrein en openbaar parkeren
VvE checklist
- Inschrijving KvK
- Ja
- Jaarlijkse vergadering
- Ja
- Periodieke bijdrage
- Ja (€ 229,00 per maand)
- Reservefonds aanwezig
- Ja
- Onderhoudsplan
- Ja
- Opstalverzekering
- Ja
Foto's 43
© 2001-2025 funda










































