Dit huis op Funda: https://www.funda.nl/detail/koop/goor/huis-korhoenstraat-43/43278374/

Korhoenstraat 437471 NM GoorDe Whee II-Noord
€ 479.000 k.k.
Omschrijving
Ben jij op zoek naar een instapklare, moderne twee onder één kapwoning met alle luxe en comfort? Welkom bij dit pareltje gelegen in de rustige Korhoenstraat te Goor. Deze prachtige gezinswoning heeft een woonoppervlakte van maar liefst 137 m², een ruime achtertuin en energielabel A, waardoor je verzekerd bent van een energiezuinige woning.
Gelegen in een rustige woonwijk in Goor is dit een perfecte plek voor gezinnen. De woning is gelegen in de nabijheid van scholen en speeltuinen. Door de open ligging in de straat geniet je vanuit de woonkamer van een vrij uitzicht.
De woning is volledig geïsoleerd, denk aan (extra) dakisolatie, muurisolatie, vloerisolatie, en dubbel glas. Met een HR combi c.v.-ketel, zonnepanelen en een airconditioning is dit een zeer comfortabel huis.
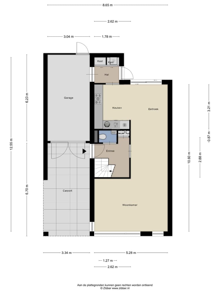
Indeling:
Begane grond: hal met trapopgang, toiletruimte en meterkas, ruime L-vormige woonkamer v.v. pvc vloer, royale open woonkeuken v.v. eigentijdse keukeninrichting met vaatwasser, gaskookplaat, afzuigkap, koelkast en combi-oven, bijkeuken met kastenwand en achterentree. De aangebouwde garage is inpandig bereikbaar.
1e verdieping: overloop, 3 ruime slaapkamers, badkamer v.v. ligbad, toilet, douche en dubbele wastafel.
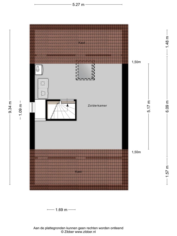
2e verdieping: middels vaste trap te bereiken ruime zolderkamer met dakraam, alwaar de wasmachine- en drogeropstelling is gerealiseerd. De zolderkamer biedt voldoende mogelijkheden voor een aparte slaapkamer en/of werkkamer.
De woning heeft een fraai aangelegde achtertuin op het noordwesten en een goed onderhouden voortuin. In 2020 is er een ruime overkapping met tuinberging gebouwd.
Overige bijzonderheden:
- optimaal geïsoleerd met energielabel A;
- royale carport en ruim oprit;
- verzorgd aangelegde tuin met ruime overkapping en tuinberging;
- 1e verdieping v.v. airconditioning
- voorzien van 8 st. zonnepanelen (nov. 2022, eigendom)
- bouwjaar: 2007
- woonoppervlakte: 137 m² (excl. garage);
- perceelgrootte 263 m².
Zie jij jezelf al wonen in dit fantastische huis, met al zijn comfort en gemakken? Wacht dan niet langer en plan een bezichtiging in. Grijp deze kans en maak van deze plek jouw nieuwe thuis!
Kenmerken
Overdracht
- Aangeboden sinds
- Aanvaarding
- In overleg
- Vraagprijs
- € 479.000 kosten koper
- Vraagprijs per m²
- € 3.496
- Status
- Beschikbaar
Bouw
- Soort woonhuis
- Eengezinswoning, 2-onder-1-kapwoning
- Soort bouw
- Bestaande bouw
- Bouwjaar
- 2007
- Soort dak
- Zadeldak bedekt met pannen
Oppervlakten en inhoud
- Gebruiksoppervlakten
- Wonen
- 137 m²
- Overige inpandige ruimte
- 19 m²
- Gebouwgebonden buitenruimte
- 21 m²
- Externe bergruimte
- 5 m²
- Perceel
- 263 m²
- Inhoud
- 552 m³
Indeling
- Aantal kamers
- 5 kamers (3 slaapkamers)
- Aantal badkamers
- 1 badkamer en 1 apart toilet
- Badkamervoorzieningen
- Douche, dubbele wastafel, ligbad, en toilet
- Aantal woonlagen
- 2 woonlagen en een zolder
- Voorzieningen
- Airconditioning, dakraam, glasvezelkabel, mechanische ventilatie, en zonnepanelen
Energie
- Energielabel
- A
- Isolatie
- Dakisolatie, dubbel glas, muurisolatie, vloerisolatie en volledig geïsoleerd
- Verwarming
- Cv-ketel
- Warm water
- Cv-ketel
- Cv-ketel
- HR (gas gestookt combiketel uit 2019, eigendom)
Kadastrale gegevens
- GOOR D 1402
- Kadastrale kaart
- Oppervlakte
- 263 m²
- Eigendomssituatie
- Volle eigendom
Buitenruimte
- Ligging
- In woonwijk en vrij uitzicht
- Tuin
- Achtertuin en voortuin
- Achtertuin
- 12,00 meter diep en 8,50 meter breed
- Ligging tuin
- Gelegen op het noordwesten
Bergruimte
- Schuur/berging
- Vrijstaande houten berging
Garage
- Soort garage
- Aangebouwde stenen garage en carport
- Capaciteit
- 1 auto
- Voorzieningen
- Elektra en stromend water
Parkeergelegenheid
- Soort parkeergelegenheid
- Op eigen terrein
Foto's 43
Plattegronden 5
© 2001-2025 funda















































