
Omschrijving
Wow, wat een mooi plekje aan de Lingehaven!
In deze bovenwoning blijf je echt urenlang naar buiten kijken.
Dit rijksmonumentale herenhuis, gelegen op de sfeervolle hoek van de Bornsteeg en Eind in het historische hart van de stad, is verdeeld in twee appartementen: een charmante benedenwoning en een royale dubbele bovenwoning. Wij bieden je de unieke kans om de ruime bovenwoning met eigen opgang te bemachtigen.
Wat een kans!
Deze woning is een verborgen juweel dat wacht op jouw creatieve touch. De prachtig bewaarde authentieke details, zoals glas-in-loodramen, een marmeren schouw en een balkenplafond, bieden de perfecte basis om een unieke leefruimte te creëren die jouw persoonlijke stijl tot in de puntjes weerspiegelt.
De 'highlights' van de unieke ligging
Wonen op deze toplocatie in het oude centrum van Gorinchem is echt next-level. Start je dag met een waanzinnig uitzicht op de Lingehaven, waar je uren kunt wegdromen terwijl de schippers hun kunsten vertonen. Voor de deur liggen gezellige terrassen, sfeervolle kades en de altijd levendige rivier. Slenter door de autovrije straten, verdwaal in middeleeuwse steegjes en ontdek hippe koffietentjes, wijnbars en unieke galeries. Hier vloeien historische charme en stadsleven moeiteloos samen. Dit is wonen in het hart van Gorinchem, waar genieten en gemak centraal staan.
INDELING BEGANE GROND
Welkom!
Betreedt de woning via de eigen entree aan de Bornsteeg door middel van de trap of de aanwezige lift.
INDELING EERSTE WOONVERDIEPING
De eerste verdieping verwelkomt je met een overloop die toegang biedt tot het toilet, de keuken, de lift en de sfeervolle woonkamer. Hier geniet je van een overvloed aan natuurlijk licht, dat binnenstroomt door drie ramen met prachtige glas-in-lood bovenlichten. De woonkamer straalt karakter uit met een marmeren schouw, balkenplafond en het pièce de résistance: het levendige uitzicht op de Lingehaven. Het uitzicht op de Lingehaven en Peterbrug verveelt nooit. Vanuit je woning heb je een perfect zicht op de levendige scènes die zich buiten afspelen. Zet een stoel voor het raam, leun achterover en geniet van het steeds wisselende schouwspel van bewoners, schippers, toeristen en bezoekers. Heerlijk, toch?
De open keuken is voorzien van een eenvoudige hoekkeuken en apparatuur. Een extra lichtraam in de zijgevel zorgt voor nog meer lichtinval.
INDELING TWEEDE SLAAPVERDIEPING
Via de lift of de vaste trap kom je op de tweede verdieping, waar het adembenemende uitzicht op de Lingehaven je opnieuw verwelkomt.
Deze royale verdieping biedt ongekende mogelijkheden en kan eenvoudig worden getransformeerd tot meerdere slaap- of werkkamers, geheel naar eigen wens. Op dit moment bevindt zich hier een ruime slaapkamer van 15 m², werkkamer en inloopkast. Daarnaast is er een eenvoudige badkamer aanwezig, wat het geheel compleet maakt en volop ruimte biedt voor comfort en flexibiliteit.
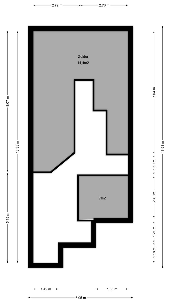
INDELING ZOLDERVERDIEPING
Een extra ruimte, bereikbaar via een losse trap, die perfect dienst kan doen als opbergruimte, maar met gemak omgetoverd kan worden tot een ruime, luxe slaapkamer. De tweede verdieping heeft een indrukwekkende hoge kapconstructie. Stel je eens voor hoe geweldig het zou zijn om de kamerindeling te vernieuwen en de lage plafonds te vervangen door een prachtig zicht op deze hoge kapconstructie!
Goed om te weten:
•Bouwjaar: 1542
•De woonoppervlakte van 127m²: is vastgesteld volgens het NEN 2580-rapport, waarbij de werkkamer en inloopkast zijn meegerekend als functionele ruimtes
•Rijksmonument: Het pand heeft de status van een Rijksmonument
•Hoekpand Bornsteeg. Dwarshuis met schilddak en gevel onder de rijk gesneden lijst (XIX A).
•Vereniging van Eigenaars: Eind 2 en Bornsteeg 32 te Gorinchem
•VvE bijdrage: Kleinschalige VvE, €100,- per maand, beheerd op een informele en prettige manier door de eigenaren zelf
•Isolatie: Dakisolatie, grotendeels dubbel glas en muurisolatie aanwezig
•Goed om te weten: de oplevering kan snel plaatsvinden!
Kenmerken
Overdracht
- Laatste vraagprijs
- € 400.000 kosten koper
- Vraagprijs per m²
- € 3.150
- Status
- Verkocht
- Bijdrage VvE
- € 100,00 per maand
Bouw
- Soort appartement
- Bovenwoning (appartement)
- Soort bouw
- Bestaande bouw
- Bouwjaar
- 1542
- Specifiek
- Beschermd stads- of dorpsgezicht, kluswoning en monumentaal pand
- Soort dak
- Dwarskap bedekt met pannen
Oppervlakten en inhoud
- Gebruiksoppervlakten
- Wonen
- 127 m²
- Overige inpandige ruimte
- 14 m²
- Inhoud
- 500 m³
Indeling
- Aantal kamers
- 4 kamers (3 slaapkamers)
- Aantal badkamers
- 1 badkamer en 1 apart toilet
- Badkamervoorzieningen
- Douche, toilet, en wastafel
- Aantal woonlagen
- 4 woonlagen
- Voorzieningen
- Buitenzonwering, dakraam, lift, en natuurlijke ventilatie
- Gelegen op
- 1e woonlaag
Energie
- Energielabel
- Niet beschikbaar
- Isolatie
- Dakisolatie, grotendeels dubbelglas en muurisolatie
- Verwarming
- Cv-ketel
- Warm water
- Cv-ketel
- Cv-ketel
- Combiketel uit 2014, eigendom
Kadastrale gegevens
- GORINCHEM C 4791
- Kadastrale kaart
- Eigendomssituatie
- Volle eigendom
Buitenruimte
- Ligging
- Aan vaarwater, aan water, in centrum en vrij uitzicht
Parkeergelegenheid
- Soort parkeergelegenheid
- Betaald parkeren, parkeergarage en parkeervergunningen
VvE checklist
- Inschrijving KvK
- Nee
- Jaarlijkse vergadering
- Nee
- Periodieke bijdrage
- Nee
- Reservefonds aanwezig
- Nee
- Onderhoudsplan
- Nee
- Opstalverzekering
- Nee
Foto's 40
© 2001-2025 funda







































