
BlikvangerRuime hoekwoning met 5 slaapkamers, zonnige tuin, label A én garage.
Omschrijving
Grote hoekwoning met 3 woonlagen, rechte wanden, vijf (!) slaapkamers, zonnige tuin, energielabel A én vrijstaande garage.
Wauw. Wat een ruimte! Deze hoekwoning pakt het groots aan met maar liefst drie volledige woonlagen, vijf slaapkamers én een vrijstaande garage. Hier woon je royaal, ruim en licht – op een fantastische plek in het fijne Gorinchem-Oost.
Laten we eerlijk zijn: de woning is toe aan een frisse touch. Maar juist dat maakt het zo interessant – je kunt hier helemaal je eigen stempel op drukken. Zie het als een blanco canvas van 118 m², klaar voor jouw woonideeën!
Wat je krijgt?
Een royale hoekwoning uit 1993, gebouwd met oog voor ruimte en comfort. Dankzij de rechte wanden – ook op de verdiepingen – profiteer je van maximale indelingsvrijheid zonder schuine daken of verloren hoeken. De erker op de begane grond zorgt niet alleen voor extra meters, maar ook voor een zee van licht in de royale woonkamer van 6,65 meter breed. Aan de voorzijde tref je een praktische U-keuken, klaar om jouw kookkunsten te ondersteunen.
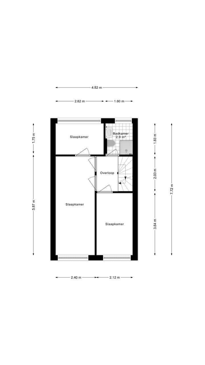
Boven: vijf (!) slaapkamers, verdeeld over twee verdiepingen. Ruimte voor kinderen, een thuiswerkplek, logeerkamer, hobbyruimte… of gewoon een walk-in closet. De badkamer is netjes en compleet met douchecabine, tweede toilet, wastafelmeubel en designradiator.
Buiten: volop buitenruimte met een voor-, zij- én achtertuin op het zonnige zuidwesten. Alles bestraat, dus weinig onderhoud en veel ruimte om te genieten. Achter in de tuin vind je een vrijstaande garage van 17 m², compleet met een praktische loopdeur naar de tuin. Voor de garage ligt een eigen oprit – ideaal om je auto comfortabel op eigen terrein te parkeren.
Waarom jij dit huis wél wilt:
•Hoekwoning op een ruim perceel van 222 m²
•Energielabel A
•Drie volwaardige woonlagen met rechte wanden (dus geen schuine verrassingen boven)
•Vijf slaapkamers – echt waar!
•Woonkamer van maar liefst 6,65 meter breed met erker en veel lichtinval
•Tuindeur naar het zonnige terras – lekker buiten zitten op het zuidwesten
•Vrijstaande garage (17 m²) achterin de tuin met eigen oprit en loopdeur
•Tuin rondom: voor, zij én achter – allemaal bestraat
•Rolluiken rondom – praktisch en comfortabel
•U-vormige keuken aan de voorzijde met apparatuur
•Fijne badkamer met douchecabine, wastafel, 2e toilet en designradiator
•Energielabel A – dat is fijn wonen én voordelig
•Toplocatie in Gorinchem-Oost met winkels, scholen, centrum en uitvalswegen binnen handbereik
Klaar om jouw woonwens waar te maken?
Deze ruime woning wacht op een nieuwe eigenaar met visie, lef en zin om er iets moois van te maken. En dat zou jij zomaar kunnen zijn.
Kenmerken
Overdracht
- Aangeboden sinds
- Aanvaarding
- In overleg
- Vraagprijs
- € 500.000 kosten koper
- Vraagprijs per m²
- € 4.237
- Status
- Verkocht onder voorbehoud
Bouw
- Soort woonhuis
- Eengezinswoning, hoekwoning
- Soort bouw
- Bestaande bouw
- Bouwjaar
- 1993
- Soort dak
- Plat dak bedekt met bitumineuze dakbedekking
Oppervlakten en inhoud
- Gebruiksoppervlakten
- Wonen
- 118 m²
- Externe bergruimte
- 17 m²
- Perceel
- 222 m²
- Inhoud
- 400 m³
Indeling
- Aantal kamers
- 6 kamers (5 slaapkamers)
- Aantal badkamers
- 1 badkamer en 1 apart toilet
- Badkamervoorzieningen
- Douche, toilet, en wastafelmeubel
- Aantal woonlagen
- 3 woonlagen
- Voorzieningen
- Mechanische ventilatie, natuurlijke ventilatie, rolluiken, en TV kabel
Energie
- Energielabel
- Isolatie
- Dubbel glas en volledig geïsoleerd
- Verwarming
- Cv-ketel
- Warm water
- Cv-ketel
- Cv-ketel
- Combiketel
Kadastrale gegevens
- GORINCHEM F 2003
- Kadastrale kaart
- Oppervlakte
- 222 m²
- Eigendomssituatie
- Volle eigendom
Buitenruimte
- Ligging
- Aan rustige weg en in woonwijk
- Tuin
- Achtertuin, voortuin en zijtuin
- Achtertuin
- 88 m² (8,80 meter diep en 10,00 meter breed)
- Ligging tuin
- Gelegen op het zuidwesten bereikbaar via achterom
Garage
- Soort garage
- Vrijstaande stenen garage
- Capaciteit
- 1 auto
- Voorzieningen
- Elektra
Parkeergelegenheid
- Soort parkeergelegenheid
- Op eigen terrein en openbaar parkeren
Foto's 36
© 2001-2026 funda



































