Dit huis op Funda: https://www.funda.nl/detail/koop/gouda/appartement-boelekade-29/43008470/

Omschrijving
Aan de rand van het levendige centrum van Gouda met alle dagelijkse voorzieningen bij de hand en op loopafstand van het NS-intercitystation gelegen ruime benedenwoning met tuin. Bouwjaar 1930, woonoppervlakte ca. 72m², achtertuin ca. 17m², inhoud ca. 283m³.
Indeling
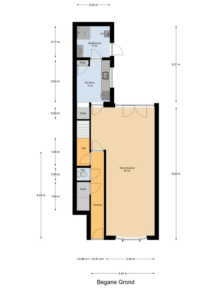
Begane grond:
Hal met meterkast en toiletruimte. Ruime L vormige woonkamer met dubbel openslaande deuren naar de tuin. Aan de achterzijde bevindt zich de keuken van ca. 6m². Deze is voorzien van een keukenblok met spoelbak, onderkasten, laden en een afzuigkap, gasfornuis met oven alsmede een trapkast voor extra bergruimte. Achter gelegen badkamer met wastafel, een douchecabine, de wasmachine-aansluiting en de opstelling van de cv combiketel.
Eerste verdieping:
Overloop, slaapkamer (ca. 7m²) en naastgelegen kleine kamer 2,7m2 ideaal als werkkamer of als inloopkast.
Buitenruimte:
De betegelde achtertuin (ca. 17 m²) is voorzien van buitenverlichting en een handige achterom. Dit is een fijne plek om buiten te zitten en te genieten van de stadse omgeving.
Afmetingen:
Woonkamer ca. 9.25x3.38 m.
Keuken ca. 2.94x2.30 m.
Badkamer ca. 2.17x2.30 m.
Slaapkamer ca. 3.16x2.32 m.
Kamer ca. 1.34x2.02m.
Achtertuin ca. 5.50x3.00 m.
Algemeen:
* Bouwjaar 1930, woonoppervlakte ca. 72m², achtertuin ca. 17m², inhoud ca. 283m³;
* Gehele woning veelal voorzien van dubbele beglazing;
* Voorzien van energielabel E;
* cv. combiketel naar schatting 15 jaar oud;
* Voorzien van achtertuin van ca. 17m² met achterom;
* Bijdrage VvE €130,- per maand;
* Het betreft hier een voormalig verhuurde woning. Er is geen NVM Vragenlijst B ingevuld. Opgenomen wordt de 'nimmer bewoond clausule'. Gezien het bouwjaar wordt tevens de ouderdomsclausule en de asbestclausule opgenomen.
* De woning is gelegen in een vergunningsplichtig/betaald parkeren gebied (sector 2);
* Gelegen op zeer korte afstand van het centrum van Gouda, winkels, uitgaans- en eetgelegenheden, NS-intercity en busstation, schouwburg, bioscoop, ziekenhuis, scholen, kerken en sportvoorzieningen;
* Wij verwijzen je tot slot naar de “nadere informatie bij het kopen van een onroerende zaak” welke is toegevoegd aan de brochure van deze woning.
Boer Makelaardij kan jou in contact brengen met onze vaste partner Raymond Imbens van Avant Groep Gouda voor een professioneel, onafhankelijk hypotheekadvies, 085-8226222,
Kenmerken
Overdracht
- Laatste vraagprijs
- € 295.000 kosten koper
- Vraagprijs per m²
- € 4.097
- Status
- Verkocht
- Bijdrage VvE
- € 130,00 per maand
Bouw
- Soort appartement
- Benedenwoning (appartement)
- Soort bouw
- Bestaande bouw
- Bouwjaar
- 1930
- Specifiek
- Gedeeltelijk gestoffeerd
- Soort dak
- Plat dak bedekt met bitumineuze dakbedekking
Oppervlakten en inhoud
- Gebruiksoppervlakten
- Wonen
- 72 m²
- Inhoud
- 283 m³
Indeling
- Aantal kamers
- 3 kamers (2 slaapkamers)
- Aantal badkamers
- 1 badkamer en 1 apart toilet
- Badkamervoorzieningen
- Douche en wastafel
- Aantal woonlagen
- 2 woonlagen
- Voorzieningen
- Glasvezelkabel, natuurlijke ventilatie, en TV kabel
- Gelegen op
- Begane grond
Energie
- Energielabel
- E
- Isolatie
- Dubbel glas
- Verwarming
- Cv-ketel
- Warm water
- Cv-ketel
- Cv-ketel
- Gas gestookt combiketel, eigendom
Kadastrale gegevens
- GOUDA A 7760
- Kadastrale kaart
- Eigendomssituatie
- Volle eigendom
Buitenruimte
- Ligging
- In woonwijk
- Tuin
- Achtertuin
- Achtertuin
- 17 m² (5,50 meter diep en 3,00 meter breed)
- Ligging tuin
- Gelegen op het noorden bereikbaar via achterom
Parkeergelegenheid
- Soort parkeergelegenheid
- Betaald parkeren, openbaar parkeren en parkeervergunningen
VvE checklist
- Inschrijving KvK
- Ja
- Jaarlijkse vergadering
- Ja
- Periodieke bijdrage
- Ja (€ 130,00 per maand)
- Reservefonds aanwezig
- Ja
- Onderhoudsplan
- Nee
- Opstalverzekering
- Ja
Foto's 28
© 2001-2025 funda



























