
Omschrijving
Wonen in een PENTHOUSE met riant dakterras, ruime garage en een fenomenaal uitzicht over de Reeuwijkse Plassen en heel Gouda, wie wil dat nou niet? Dit prachtige appartement met een woonoppervlakte van maar liefst 203 m² is onder andere voorzien van twee zeer ruime slaapkamers, een badkamer en-suite, een grote en lichte woonkamer en open keuken met kook- en spoeleiland.
Woonopp. ca. 203 m², buitenruimte ca. 45 m², garage met veel bergruimte ca. 35 m², bouwjaar 2001.
Bijzonderheden:
- Zeer ruim penthouse met groot, zonnig dakterras;
- Eigen ruime garage van 35 m²;
- 2 ruime slaapkamers met badkamer en-suite;
- Open keuken met kook- en spoeleiland;
- Energielabel A;
- Buitenkozijnen geschilderd in 2023;
- Voorzien van HR++ beglazing;
- Vrij uitzicht over de Reeuwijkse Plassen;
- Gelegen nabij alle nodige voorzieningen en uitvalswegen;
- Actieve Vereniging van Eigenaren, servicekosten bedragen ca. € 300,- per maand.
Indeling
Entree:
Via de afgesloten entree met bellen- en brievenbussenplateau betreed je de ruime hal met lift, er is een doorgang naar de bergingen en de trapopgang.
Woonverdieping:
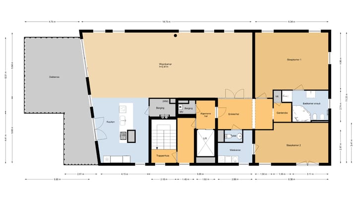
Het appartement is gesitueerd op de 5e verdieping. Entree in de ruime hal met videofoon, gaderobe en toilet met fontein. Via openslaande deuren toegang tot de zeer grote woonkamer met open keuken. De vele grote ramen in de woonkamer zorgen voor veel daglicht en een ruimtelijk gevoel. Deze ruimte is maar liefst 83 m²! In de kamer bevindt zich een elektrische kachel in een marmeren schouw, waardoor er een knusse zithoek ontstaat. Verderop in de ruimte is er plek voor een grote eettafel waar je met de hele familie kunt genieten van het samenzijn terwijl je uitzicht hebt over de Reeuwijkse Plassen en Gouda Noord. Via de schuifpui is er toegang tot het riante dakterras (45 m²). De open keuken is tevens ruim opgezet en voorzien van veel kastruimte, een natuurstenen aanrechtblad, een groot spoel- en kookeiland en verschillende inbouwapparatuur, zoals:
- Kookplaat met afzuigkap;
- Oven;
- Combimagnetron;
- Koelkast;
- Vriezer;
- Vaatwasser.
Vanuit de keuken is er via openslaande deuren toegang tot het dakterras en er is een deur richting de berging/wasruimte, hier bevindt zich een aansluiting voor de was-apparatuur en de meterkast.
Aan de andere zijde van het appartement bevinden zich de 2 ruime slaapkamers. De master-bedroom van 32 m² geniet van een badkamer en-suite. De badkamer is luxe uitgevoerd en voorzien van:
- Stoomcabine;
- Ligbad;
- Hangende wastafel;
- Bidet;
- Toilet;
- Handdoekradiator.
De tweede slaapkamer van 21 m² beschikt over een frans balkon en heeft directe toegang tot de waskamer, welke indien gewenst ook als badkamer kan worden ingericht. De waskamer beschikt over een pantry met wastafel, droger en wasmachine.
Dakterras:
Het dakterras van maar liefst 45 m² is gelegen op het oosten, maar door de vrije ligging heb je hier doorgaans de hele dag zon. Boven de schuifpui is er elektrische zonwering, waardoor je indien gewenst in de schaduw kunt zitten. Vanaf het dakterras heb je prachtig uitzicht over de Elfhoeven, 1 van de 13 Reeuwijkse Plassen.
Garage:
De garage op de begane grond van 35 m² beschikt over een elektrische garagedeur aan de ene zijde en openslaande deuren aan de andere zijde. De garage biedt ruimte voor twee auto's en daarnaast voldoende plek voor fietsen en veel bergruimte.
Afmetingen:
Woonkamer ca. 83 m²
Keuken ca. 24 m²
Badkamer en-suite ca. 4 m²
Slaapkamer 1 ca. 32 m²
Slaapkamer 2 ca. 21 m²
Inpandige berging ca. 2 m²
Dakterras ca. 45 m²
Garage ca. 35 m²
Interesse gekregen in dit prachtige penthouse? Neem contact op met Bij Viavesta Woningmakelaardij om een bezichtigingsafspraak in te plannen.
Kenmerken
Overdracht
- Laatste vraagprijs
- € 995.000 kosten koper
- Vraagprijs per m²
- € 4.901
- Status
- Verkocht
- Bijdrage VvE
- € 300,00 per maand
Bouw
- Soort appartement
- Penthouse (appartement)
- Soort bouw
- Bestaande bouw
- Bouwjaar
- 2001
- Soort dak
- Plat dak bedekt met bitumineuze dakbedekking
Oppervlakten en inhoud
- Gebruiksoppervlakten
- Wonen
- 203 m²
- Overige inpandige ruimte
- 1 m²
- Gebouwgebonden buitenruimte
- 45 m²
- Externe bergruimte
- 35 m²
- Inhoud
- 640 m³
Indeling
- Aantal kamers
- 3 kamers (2 slaapkamers)
- Aantal badkamers
- 1 badkamer en 1 apart toilet
- Badkamervoorzieningen
- Bidet, ligbad, stoomcabine, toilet, en wastafel
- Aantal woonlagen
- 1 woonlaag
- Voorzieningen
- Buitenzonwering, glasvezelkabel, lift, mechanische ventilatie, en schuifpui
- Gelegen op
- 5e woonlaag
Energie
- Energielabel
- Isolatie
- Dakisolatie, dubbel glas, HR-glas, muurisolatie, vloerisolatie en volledig geïsoleerd
- Verwarming
- Cv-ketel
- Warm water
- Cv-ketel
- Cv-ketel
- Nefit (gas gestookt combiketel uit 2016, eigendom)
Kadastrale gegevens
- GOUDA I 3565
- Kadastrale kaart
- Eigendomssituatie
- Volle eigendom
Buitenruimte
- Ligging
- Aan vaarwater, aan water en vrij uitzicht
- Tuin
- Zonneterras
- Zonneterras
- 45 m² (4,75 meter diep en 10,00 meter breed)
- Ligging tuin
- Gelegen op het oosten
Bergruimte
- Schuur/berging
- Inpandig
- Voorzieningen
- Elektra en stromend water
- Isolatie
- Volledig geïsoleerd
Garage
- Soort garage
- Inpandig
- Capaciteit
- 2 auto's
- Voorzieningen
- Elektrische deur en elektra
- Isolatie
- Volledig geïsoleerd
Parkeergelegenheid
- Soort parkeergelegenheid
- Op afgesloten terrein
VvE checklist
- Inschrijving KvK
- Ja
- Jaarlijkse vergadering
- Ja
- Periodieke bijdrage
- Ja (€ 300,00 per maand)
- Reservefonds aanwezig
- Ja
- Onderhoudsplan
- Ja
- Opstalverzekering
- Ja
Foto's 68
© 2001-2026 funda



































































