Dit huis op Funda: https://www.funda.nl/detail/koop/gouda/appartement-heuvellaan-43/43124820/

Omschrijving
Centraal gelegen 3-kamer appartement op de 3e verdieping met een balkon op het zuidoosten. Het complex beschikt over een afgesloten entree met intercominstallatie, trappenhuis, een lift en een eigen berging in de onderbouw. Dit appartement is gelegen nabij het Groenhovenpark waar u heerlijk kunt wandelen.
Indeling
Begane grond:
Centraal afgesloten entree met brievenbussen, bellenplateau, lift en trappenhuis.
In de onderbouw is de berging te vinden.
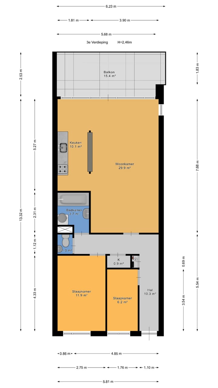
3e woonverdieping:
Via de entree komt u in de hal van waar uit alle ruimtes toegankelijk zijn. In de hal treft u de meterkast en een separate bergkast. De woonkamer is gelegen aan de achterzijde van de woning. Vanuit hier is het ruime balkon bereikbaar vanwaar u uitzicht heeft over groen. De keuken heeft een rechte opstelling voorzien van witte frontjes, 4 pits kookplaat en een rvs spoelbak met mengkraan. Beide slaapkamers bevinden zich aan de voorzijde van het appartement. De badkamer is gedeeltelijk betegeld en is voorzien van een ligbad, wastafel, wasmachineaansluiting en de (huur)boiler voor het warme water. Hiernaast is de separate toiletruimte gelegen, welke voorzien is van een toilet en een fonteintje.
Bijzonderheden:
- Gelegen nabij het Groenhovenpark;
- Energielabel C, geldig tot 2031;
- Actieve VVE, servicekosten circa € 171,74 per maand (woning) en € 4,65 (berging) per maand vanaf 2026 excl. voorschot stookkosten;
- Huurboiler circa € 18,97 per maand;
- Verwarming middels blokverwarming;
- Fijn (starters)appartement op een centrale locatie;
- Oplevering maximaal 3,5 maanden na overeenstemming;
- Asbest-, ouderdom- en niet-zelfbewoningsclausule van toepassing;
- Notariskeuze voorbehouden aan verkoper.
Deze informatie is door ons met de nodige zorgvuldigheid samengesteld. Onzerzijds wordt echter geen enkele aansprakelijkheid aanvaard voor enige onvolledigheid, onjuistheid of anderszins, dan wel de gevolgen daarvan. Alle opgegeven maten en oppervlakten zijn indicatief. Van toepassing zijn de NVM voorwaarden.
Toelichtingsclausule BBMI: het appartement is ingemeten conform de branchebrede meetinstructies (BBMI), afgeleid van de NEN 2580 normering. De Meetinstructie is bedoeld om een meer eenduidige manier van meten toe te passen voor het geven van een indicatie van de gebruiksoppervlakte. De Meetinstructie sluit verschillen in meetuitkomsten niet volledig uit, door bijvoorbeeld interpretatieverschillen, afrondingen of beperkingen bij het uitvoeren van de meting.
Kenmerken
Overdracht
- Laatste vraagprijs
- € 295.000 kosten koper
- Vraagprijs per m²
- € 3.831
- Status
- Verkocht
- Bijdrage VvE
- € 176,39 per maand
Bouw
- Soort appartement
- Galerijflat (appartement)
- Soort bouw
- Bestaande bouw
- Bouwjaar
- 1982
- Soort dak
- Plat dak bedekt met bitumineuze dakbedekking
- Toegankelijkheid
- Toegankelijk voor mensen met een beperking en toegankelijk voor ouderen
Oppervlakten en inhoud
- Gebruiksoppervlakten
- Wonen
- 77 m²
- Gebouwgebonden buitenruimte
- 15 m²
- Externe bergruimte
- 4 m²
- Inhoud
- 238 m³
Indeling
- Aantal kamers
- 3 kamers (2 slaapkamers)
- Aantal badkamers
- 1 badkamer en 1 apart toilet
- Badkamervoorzieningen
- Ligbad en wastafel
- Aantal woonlagen
- 1 woonlaag
- Voorzieningen
- Lift
- Gelegen op
- 3e woonlaag
Energie
- Energielabel
- Isolatie
- Gedeeltelijk dubbel glas en muurisolatie
- Verwarming
- Blokverwarming
- Warm water
- Gasboiler (huur)
Kadastrale gegevens
- GOUDA M 3260
- Kadastrale kaart
- Eigendomssituatie
- Volle eigendom
- GOUDA M 3260
- Kadastrale kaart
- Eigendomssituatie
- Volle eigendom
Buitenruimte
- Ligging
- In woonwijk
- Balkon/dakterras
- Balkon aanwezig
Bergruimte
- Schuur/berging
- Box
Parkeergelegenheid
- Soort parkeergelegenheid
- Openbaar parkeren
VvE checklist
- Inschrijving KvK
- Ja
- Jaarlijkse vergadering
- Ja
- Periodieke bijdrage
- Ja (€ 176,39 per maand)
- Reservefonds aanwezig
- Ja
- Onderhoudsplan
- Ja
- Opstalverzekering
- Ja
Foto's 33
© 2001-2026 funda
































