Dit huis op Funda: https://www.funda.nl/detail/koop/gouda/appartement-ruigenburg-59/43957391/

Omschrijving
Het appartement maakte jarenlang deel uit van een vriendelijke en behulpzame buurt, waar buren naar elkaar omkijken. Kom kijken bij deze ruime hoek-maisonnette, gelegen op de bovenste etage aan het einde van de galerij. De woning is voorzien van 3 (meer mogelijk) ruime slaapkamers, een open keuken met kookeiland en een ruim balkon op het westen.
De locatie is werkelijk ideaal: winkelcentrum Bloemendaal, het gezondheidscentrum en de bushalte liggen op loopafstand. Het Goudse Hout en de Reeuwijkse Plassen bereik je gemakkelijk per fiets, en ook diverse uitvalswegen zijn snel te bereiken. De combinatie van een groene, goed bereikbare omgeving met alle nodige voorzieningen én een prettige woonomgeving maakt dit tot dé ideale plek om te wonen!
Bijzonderheden:
- Hoek-maisonnette;
- Ruime woonkamer met veel natuurlijk lichtinval;
- Ruim balkon van ca. 14 m² op het westen;
- 3 slaapkamers (mogelijkheid tot creëren van meer kamers op de zolderverdieping);
- Eigen (fietsen)berging op de begane grond;
- Professionele en actieve VvE, maandelijkse bijdrage € 353,48 (excl. voorschot stookkosten ca. € 121,50);
- Vrij parkeren voor het complex.
Begane grond:
Overdekte entree met een bellentableau en intercom. Deze entree biedt toegang tot de centrale binnenhal met trappenhuis, lift, brievenbussen, deur naar de fietsenbergingen (tevens vanaf de buitenzijde bereikbaar).
4e verdieping:
Entree appartement via de galerij. De hal is voorzien van een ruime inpandige berging met aansluiting voor de was-apparatuur, de meterkast en de badkamer. De badkamer is voorzien van:
- douchecabine;
- wastafelmeubel;
- spiegelkast;
- hangende kast.
De ruime woonkamer is voorzien van veel lichtinval dankzij de grote ramen aan de balkonzijde. In de woonkamer is voldoende ruimte voor een grote zithoek en een eettafel.
De open keuken is opgesteld in een hoek en beschikt daarnaast over een praktisch kookeiland. De keuken is voorzien van inbouwapparatuur, zoals:
- koel-vriescombinatie;
- 5-pits gaskookplaat;
- afzuigkap;
- oven.
Het balkon is ca. 13 m² en deze is gelegen op het westen. Hier kun je in de avond nog heerlijk genieten van het zonnetje. Zit je liever in de schaduw? Dan kun je de elektrische zonwering gebruiken.
Vanuit de woonkamer is er toegang tot het separate toilet met fontein en de 2 slaapkamers. De slaapkamers zijn gelegen aan de galerijzijde en beschikken over een laminaatvloer en behang. Dankzij de grote ramen komt hier ook veel licht binnen.
5e verdieping:
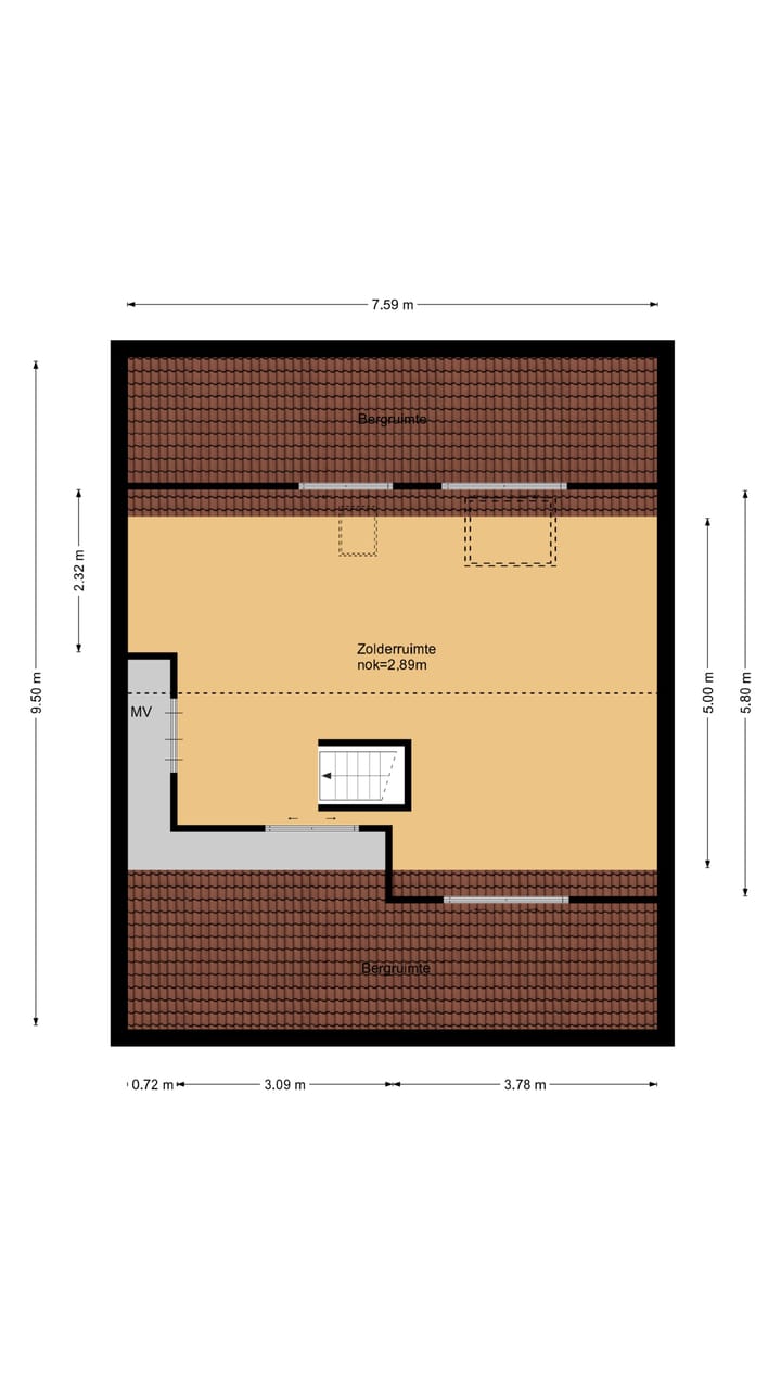
Via de vaste trap bereik je de zolderverdieping. De ruime open zolder biedt volop mogelijkheden en beschikt over 2 grote dakramen en een klein dakraam. Hier kunnen eenvoudig meerdere (slaap)kamers worden gerealiseerd. Er is reeds een vaste trap aanwezig, maar er bestaat ook de mogelijkheid om een idealere trap te plaatsen. Een voorbeeld van deze optie is opgenomen in de fotopresentatie. Daarnaast is er een aparte bergruimte met de aansluiting voor de cv-installatie. Dankzij de knieschotten is hier veel bergruimte.
Het appartementencomplex is door de actieve VvE keurig onderhouden. Er is een eigen (fietsen)berging in de onderbouw aanwezig en aan de voorzijde van het complex is er voldoende parkeergelegenheid.
Afmetingen:
Woonkamer + keuken ca. 38 m²
Balkon ca. 13 m²
Slaapkamer 1 ca. 12 m²
Slaapkamer 2 ca. 6 m²
Badkamer ca. 3 m²
Zolderruimte ca. 34 m²
Externe berging ca. 3,5 m²
Interesse gekregen in dit leuke appartement? Neem contact op met Bij Viavesta Woningmakelaardij om een bezichtiging te plannen.
Kenmerken
Overdracht
- Oorspronkelijke vraagprijs
- € 365.000 kosten koper
- Laatste vraagprijs
- € 350.000 kosten koper
- Vraagprijs per m²
- € 3.153
- Status
- Verkocht
- Bijdrage VvE
- € 353,48 per maand
Bouw
- Soort appartement
- Maisonnette
- Soort bouw
- Bestaande bouw
- Bouwjaar
- 1974
- Soort dak
- Zadeldak bedekt met pannen
- Toegankelijkheid
- Toegankelijk voor ouderen
Oppervlakten en inhoud
- Gebruiksoppervlakten
- Wonen
- 111 m²
- Gebouwgebonden buitenruimte
- 13 m²
- Externe bergruimte
- 3 m²
- Inhoud
- 254 m³
Indeling
- Aantal kamers
- 4 kamers (3 slaapkamers)
- Aantal badkamers
- 1 badkamer en 1 apart toilet
- Badkamervoorzieningen
- Douche en wastafelmeubel
- Aantal woonlagen
- 2 woonlagen
- Voorzieningen
- Buitenzonwering, glasvezelkabel, lift, mechanische ventilatie, en TV kabel
- Gelegen op
- 5e woonlaag
Energie
- Energielabel
- C
- Isolatie
- Dakisolatie en dubbel glas
- Verwarming
- Blokverwarming
- Warm water
- Centrale voorziening
Kadastrale gegevens
- GOUDA M 6076
- Kadastrale kaart
- Eigendomssituatie
- Volle eigendom
Buitenruimte
- Ligging
- Aan rustige weg, in woonwijk en vrij uitzicht
- Balkon/dakterras
- Balkon aanwezig
Bergruimte
- Schuur/berging
- Inpandig
Parkeergelegenheid
- Soort parkeergelegenheid
- Openbaar parkeren
VvE checklist
- Inschrijving KvK
- Ja
- Jaarlijkse vergadering
- Ja
- Periodieke bijdrage
- Ja (€ 353,48 per maand)
- Reservefonds aanwezig
- Ja
- Onderhoudsplan
- Ja
- Opstalverzekering
- Ja
Foto's 40
© 2001-2025 funda







































