Dit huis op Funda: https://www.funda.nl/detail/koop/gouda/huis-anna-hoeve-15/43628097/

Omschrijving
Makelaardij Henk van Wijngaarden biedt aan:
Na 44 jaar met plezier in deze mooie woning te hebben gewoond gaan huidige eigenaren verhuizen!
Deze woning is gelegen in de gewilde en ruim opgezette Hoevenbuurt en goed onderhouden met 4 slaapkamers, eigen parkeerplaatsen, sfeervolle woonkamer en achtertuin op het westen. Deze woning is bijzonder door zijn vrije ligging aan de achterzijde, aan de rand van de woonwijk.
Scholen, Winkelcentrum Bloemendaal, het Noorderhout, ov voorzieningen en speeltuinen zijn op loopafstand te vinden. Op korte fietsafstand van Gouda NS-station, centrum, sportaccommodaties, de Reeuwijkse plassen en A12 / A20 naar Den Haag, Amsterdam, Rotterdam en Utrecht.
Bijzonderheden:
- fraaie groene ligging aan de rand van de woonwijk
- 44 jaar in bezit geweest van verkoper
- 4 slaapkamers
- 2 parkeerplaatsen (gemakkelijk voor elektrisch laden)
- 2007 badkamer vernieuwd
- 2018 nieuwe dakpannen
- 2019 nieuwe goten
- 2021 buitenschilderwerk uitgevoerd
- 2022 nieuwe CV ketel
- 2021 schuur mos sedumdak (groen dak)
- gelegen in de geliefde Hoevenbuurt
- riante achtertuin op het westen met achterom
- kindvriendelijke en groene woonwijk
- oplevering: in overleg
Indeling
Begane grond:
Voortuin met twee parkeerplaatsen, entree, hal met meterkast, toiletruimte en toegangsdeur naar de woonkamer.
Sfeervolle, tuingerichte woonkamer met trapopgang naar de eerste verdieping en toegang tot de open keuken. De zonnige achtertuin is op het westen gelegen met berging en achterom. De woning ligt aan de rand van de woonwijk daardoor is er aan de achterzijde vrije groene ligging.
De open keuken is aan de voorzijde gesitueerd en beschikt over een 5 pits kookplaat, afzuigkap, spoelbak, oven, koelkast en vaatwasser.
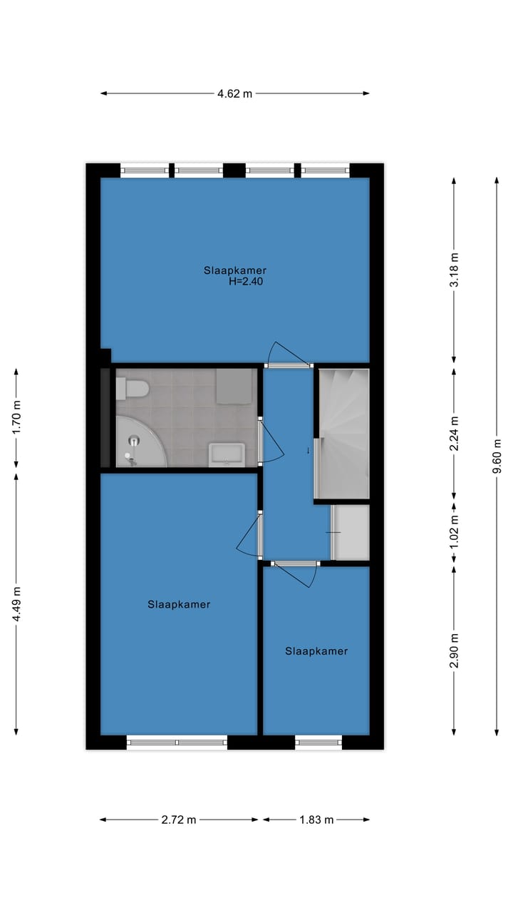
Eerste verdieping:
Overloop met toegang tot 3 slaapkamers, de badkamer en trapopgang naar de tweede verdieping.
De hoofdslaapkamer is gelegen aan de voorzijde en is bijzonder ruim en hoog. De tweede en derde slaapkamer zijn aan de achterzijde gelegen.
Keurige badkamer uit 2007, betegeld en voorzien van douchecabine, wastafelmeubel, 2e toilet en design radiator.
Tweede verdieping:
Overloop met toegangsdeur naar de ruime 4e slaapkamer. Naast de slaapkamer is de stookruimte met opstelplaats van de Intergas Cv-ketel (2022).
Wilt u deze woning bezichtigen, bel 0182 - 526373 of mail naar of via de site
Kenmerken
Overdracht
- Laatste vraagprijs
- € 385.000 kosten koper
- Vraagprijs per m²
- € 3.632
- Status
- Verkocht
Bouw
- Soort woonhuis
- Eengezinswoning, tussenwoning
- Soort bouw
- Bestaande bouw
- Bouwjaar
- 1974
- Soort dak
- Lessenaardak bedekt met pannen
Oppervlakten en inhoud
- Gebruiksoppervlakten
- Wonen
- 106 m²
- Gebouwgebonden buitenruimte
- 12 m²
- Externe bergruimte
- 6 m²
- Perceel
- 141 m²
- Inhoud
- 348 m³
Indeling
- Aantal kamers
- 5 kamers (4 slaapkamers)
- Aantal badkamers
- 1 badkamer en 1 apart toilet
- Badkamervoorzieningen
- Douche, toilet, en wastafel
- Aantal woonlagen
- 3 woonlagen
- Voorzieningen
- Glasvezelkabel, mechanische ventilatie, en natuurlijke ventilatie
Energie
- Energielabel
- C
- Isolatie
- Dubbel glas, gedeeltelijk dubbel glas en vloerisolatie
- Verwarming
- Cv-ketel
- Warm water
- Cv-ketel en elektrische boiler
- Cv-ketel
- Intergas HR (gas gestookt combiketel uit 2022, eigendom)
Kadastrale gegevens
- GOUDA M 1669
- Kadastrale kaart
- Oppervlakte
- 141 m²
- Eigendomssituatie
- Volle eigendom
Buitenruimte
- Ligging
- Aan rustige weg en in woonwijk
- Tuin
- Achtertuin en voortuin
- Achtertuin
- 51 m² (10,67 meter diep en 4,74 meter breed)
- Ligging tuin
- Gelegen op het westen bereikbaar via achterom
Bergruimte
- Schuur/berging
- Vrijstaande houten berging
- Voorzieningen
- Elektra
- Isolatie
- Geen isolatie
Parkeergelegenheid
- Soort parkeergelegenheid
- Openbaar parkeren
Foto's 58
© 2001-2025 funda

























































