Dit huis op Funda: https://www.funda.nl/detail/koop/gouda/huis-goudseweg-53/43802840/

Omschrijving
Heb jij 2 rechterhanden? Dan is deze woning met tuin en ruime berging misschien echt iets voor jou!
Deze knusse 2-onder-1-kapwoning is gelegen op een heel mooi plekje aan de rand van Gouda. Door de ligging woon je rustig, maar ben je toch met 5 minuten fietsen in de historische binnenstad van Gouda.
De woning is recentelijk voorzien van een nieuw, geïsoleerd dak, maar dient aan de binnenzijde volledig opgeknapt en afgewerkt te worden. De begane grond beschikt over een fijne woonkamer, half-open keuken en betegelde badkamer. Op de verdieping is door de huidige bewoner al e.e.a. gesloopt en opgeknapt, de indeling is nog zelf te bepalen.
De Goudseweg is een gezellige straat waar het landelijke gevoel je tegemoet komt. Door het vele groen en de loslopende kippen kom je hier heerlijk tot rust. Voor de kinderen is er een speeltuintje in de buurt. Ook liggen alle voorzieningen in de buurt, zo zijn naast de winkels in de binnenstad ook openbaar vervoer, scholen, sportaccommodaties en zorgvoorzieningen op fietsafstand gelegen. Uitvalswegen naar o.a. Rotterdam, Utrecht en Den Haag liggen in de directe nabijheid.
Bijzonderheden:
- Kluswoning op een landelijke locatie;
- Al deels opgeknapt door de huidige eigenaar;
- Het dak is volledig vernieuwd en geïsoleerd (2024);
- Dakgoten aan beide zijden zijn vervangen (2024);
- CV-ketel geplaatst in 2019;
- Buitenkozijnen in 2024 geschilderd;
- Grotendeels voorzien van dubbel glas;
- Nieuw kunststof kozijn geplaatst op de 1e verdieping;
- Gelegen in een gezellige wijk nabij alle nodige voorzieningen.
Indeling
Begane grond:
Afgesloten betegelde voortuin, gelegen op het zuidwesten. Dit is een heerlijke plek om van de rust en de zon te genieten, hier is voldoende ruimte voor een loungeset.
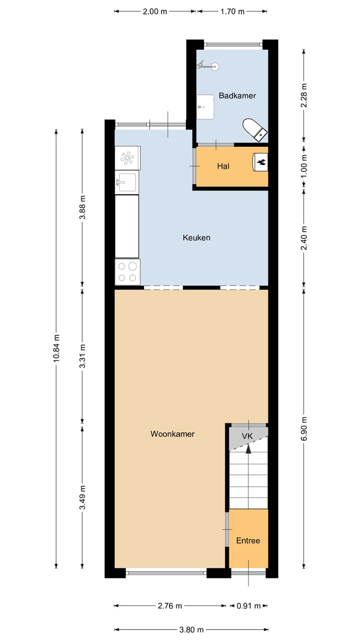
Entree met meterkast en trapopgang. Toegang tot de woonkamer met vaste trapkast. Door de lengte van de woonkamer is er meer dan genoeg ruimte voor een zithoek en een eetgedeelte.
Aan de achterzijde bevindt zich de half-open keuken. De keuken is gedateerd en beschikt over een gaskookplaat, een afzuigkap en een inbouwkoelkast. Via de keuken heb je toegang tot de bijkeuken waar de CV-ketel (Nefit Proline, 2019) en de wasmachineaansluiting zijn gesitueerd.
De volledig betegelde badkamer is vanuit hier toegankelijk, deze is voorzien van een grote douchecabine, wastafel, toilet en handdoekradiator. Een fijn detail is het brede raam, dat zorgt voor natuurlijk daglicht en ventilatie.
Vanuit de keuken is er toegang tot de achtertuin. De achtertuin is gedeeltelijk betegeld en hier bevindt zich een grote berging, van houtbouw met damwandplaten van metaal, van ca. 13 m². De achtertuin beschikt over een achterom.
Eerste verdieping:
Deze verdieping is nog volledig naar wens in te delen. Hier zou je bijvoorbeeld aan beide zijden een slaapkamer kunnen realiseren met op de overloop een wasruimte of berging. Ook is het mogelijk om de badkamer naar boven te verplaatsen, hiervoor moeten nog wel de leidingen worden verlegd. Aan de voorzijde en achterzijde van de verdieping is de woning voorzien van grote ramen waardoor er veel licht binnenkomt. Het kozijn aan de achterzijde is vervangen door een kunststof kozijn met dubbel glas.
Afmetingen:
Woonkamer ca. 22 m²
Keuken ca. 12 m²
Badkamer ca. 4 m²
Verdieping ca. 20 m²
Berging ca. 13 m²
Beginnen jouw handen te kriebelen bij het zien van dit leuke huis met veel potentie? Neem contact op met Bij Viavesta Woningmakelaardij om een afspraak te plannen.
Kenmerken
Overdracht
- Laatste vraagprijs
- € 295.000 kosten koper
- Vraagprijs per m²
- € 4.538
- Status
- Verkocht
Bouw
- Soort woonhuis
- Eengezinswoning, 2-onder-1-kapwoning
- Soort bouw
- Bestaande bouw
- Bouwjaar
- 1905
- Specifiek
- Kluswoning
- Soort dak
- Zadeldak bedekt met metaal
Oppervlakten en inhoud
- Gebruiksoppervlakten
- Wonen
- 65 m²
- Externe bergruimte
- 13 m²
- Perceel
- 124 m²
- Inhoud
- 145 m³
Indeling
- Aantal kamers
- 2 kamers (1 slaapkamer)
- Aantal badkamers
- 1 badkamer
- Badkamervoorzieningen
- Douche, toilet, en wastafel
- Aantal woonlagen
- 2 woonlagen
- Voorzieningen
- Natuurlijke ventilatie en TV kabel
Energie
- Energielabel
- Isolatie
- Dakisolatie en gedeeltelijk dubbel glas
- Verwarming
- Cv-ketel
- Warm water
- Cv-ketel
- Cv-ketel
- Nefit Proline (gas gestookt combiketel uit 2019, eigendom)
Kadastrale gegevens
- GOUDA L 294
- Kadastrale kaart
- Oppervlakte
- 124 m²
- Eigendomssituatie
- Volle eigendom
Buitenruimte
- Ligging
- Aan rustige weg en landelijk gelegen
- Tuin
- Achtertuin en voortuin
- Achtertuin
- 30 m² (10,50 meter diep en 4,00 meter breed)
- Ligging tuin
- Gelegen op het noordoosten bereikbaar via achterom
Bergruimte
- Schuur/berging
- Vrijstaande houten berging
- Voorzieningen
- Elektra
Parkeergelegenheid
- Soort parkeergelegenheid
- Openbaar parkeren
Foto's 35
© 2001-2026 funda


































